Osier Farm , Eastgate, Deeping St James, Market Deeping, PE6
- Bedrooms
- 3
- Bathrooms
- 2
Key Features
- Individual Single-Storey Barn Conversion
- Brand New Conversion
- High Specification
- Exclusive Development
Description
Situated in a small exclusive development of five executive homes, two barn conversions and a thatched farmhouse, this contemporary, single storey barn conversion has been built to an exceptionally high standard by Postland Developments, a well known and respected developer who are renowned for their luxury homes and excellent customer aftercare service. Featuring a lounge with high vaulted ceiling and feature bi-folding doors opening onto the rear garden, this home will have a luxury kitchen/dining room, impressive entrance hall with glazed ceiling and three good size bedrooms with the master having an en-suite. With a private enclosed garden leading to an open cart shed for parking, this individual quality home will be completed in early 2026 and at this early stage the lucky purchaser will have a choice of kitchen and bathroom fittings. This unique home will attract a great deal of interest, so book your viewing today.
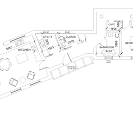
ENTRANCE
An impressive oak Pagoda leading to entrance door opening to
HALLWAY
A stunning entrance, with a part-glazed vaulted roof, this breathtaking entrance has built-in cupboard, built-in cloaks cupboard and access to principal rooms.
CLOAKROOM
Comprising low flush WC and wash-hand basin.
KITCHEN/DINING ROOM
19’6 x 16’9 (5.95m x 5.10m)
A stunning room with high vaulted ceiling, this room will have a high specification kitchen with dining area, family area, two windows to front elevation and door leading to
LIVING ROOM
19’6 x 16’5 (5.10m x 5.00m)
A stunning room with high vaulted ceiling with bi-folding doors opening onto the rear garden with feature glazing above.
UTILITY ROOM
8’6 x 6’3 (2.60m x 1.90m)
With a range of wall and base units.
MASTER BEDROOM
16’5 max x 10’ (5.00m x 3.04m)
With a range of quality built-in wardrobes and window to front elevation, this large master bedroom has access to
LUXURY EN-SUITE
A luxury en-suite to be installed.
BEDROOM TWO
12’9 x 9’6 (3.90m x 2.90m)
With built-in wardrobes and window to front elevation.
BEDROOM THREE
12’9 x 7’3 (3.90m x 2.20m)
With window to front elevation.
BATHROOM
A luxury suite with window to front elevation.
OUTSIDE
The property has off-road parking with open cart shed large enough for one vehicle and additional parking space.
The gardens will provide a high degree of privacy.
Property details
- Tenure
- Freehold
- Council Tax Band
- Ask Agent
- Date Posted
- 2026-01-29
Utilities & Restrictions
Utilities
- Electricity
- Ask Agent
- Water
- Ask Agent
- Heating
- Ask Agent
- Broadband
- Ask Agent
- Sewerage
- Ask Agent
Rights & Restrictions
- Public Rights of Way
- Ask Agent
- Private Rights of Way
- Ask Agent
- Listed Property
- Ask Agent
- Restrictions
- Ask Agent
Property Features
- Accessibility
- Ask Agent
- Parking
- Parking Available
- Garden
- Garden
Map Location
Thinking of selling?
Sell your property the smart way with free valuations, auction sales, and expert agent matching.
Important notice: Information, maps and tags on this page are supplied by the advertising agent or generated automatically. LandSale has not verified them. Relying on these details is at your own risk, always carry out independent checks before committing to a purchase.
LandSale full disclaimer
Marketing information only - not formal particulars. The details on this website are provided for general guidance and do not constitute an offer or contract. Neither LandSale nor the advertising estate/land agent accepts responsibility for any inaccuracy.
1. Source of information
- Agent-supplied content: Core description, asking price, tenure, measurements, photographs and planning history are uploaded by the appointed agent, who remains solely responsible for their accuracy.
- Automated tags & categorisation: Property type, land-use class, acreage bands and similar labels may be applied by machine-learning models. They are intended as a helpful guide only and may not reflect the property's legal status or permitted use.
- Third-party & enriched data layers: Maps, boundary outlines, planning designations, soil reports, broadband coverage and other environmental or location-based insights are licensed from external suppliers. Such data are supplied “as is", may be incomplete or out of date and are subject to change without notice.
2. Verification required
Prospective purchasers must verify critical matters, including but not limited to planning permission, title boundaries, public rights of way, environmental constraints, acreage, services, access and VAT status, through their own inspections, specialist surveys, legal advisers and the selling agent before relying on the information or entering into any contract.
3. No warranty or liability
LandSale gives no warranty, express or implied, as to the accuracy, completeness or fitness for any particular purpose of the information displayed. LandSale shall not be liable for any loss, damage, cost or expense arising directly or indirectly from any use of or reliance on such information, save where liability may not be excluded by law.
4. Updates & feedback
If you believe any detail on this listing is inaccurate, please let us know. We will investigate and, where appropriate, update the listing or notify the agent.
© LandSale | Version 1.2 - January 2026
Listing agent
Briggs Residential, Market Deeping
17 Market Place Market Deeping PE6 8EA