Plots 1 and 2, Ffordd Glan Mor, Talybont LL43 2AR
- Bedrooms
- 4
Key Features
- 2 Building Plots
- Planning Permission granted for a 4 bed dormer bungalow and 2 bed bungalow
- Planning Permission - NP5/58/636B
- Sea Views
- Popular Coastal Location
- Within a 10 minute walk to local sandy beach
Description
Planning reference: NP5/58/636B
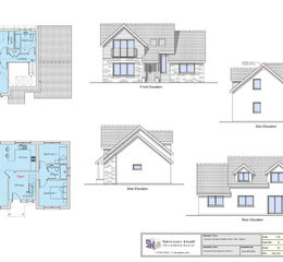
A rare opportunity to acquire a building plot with full planning permission for a detached four-bedroom dormer bungalow and a detached two-bedroom bungalow ideally positioned in a residential area of the popular coastal village of Talybont, enjoying sea views.
The plot occupies an elevated setting, offering stunning open views across surrounding fields and countryside towards the coastline. It also benefits from excellent access from the road, particularly useful for when building works begin, and is located less than a 10-minute walk from a beautiful sandy beach.
Please note: There are no restrictions on who may purchase the plot and carry out the build. However, once constructed, the property will be subject to the conditions of an Affordable Housing Section 106 Agreement. For further details regarding eligibility, please refer to the Tai Teg website.
Plot 1
Consent has been granted for a detached, two-storey dormer-style property featuring four bedrooms and private driveway parking. The ground floor layout includes an entrance hallway leading to an open-plan kitchen, dining, and living area, enhanced by full-height glazing to maximise natural light and provide access to the rear garden. Two bedrooms and a shower room are also located on this level. The first floor offers two additional bedrooms and a family bathroom.
Plot 2
The property comprises of an open plan kitchen and dining space, a separate living room space, a bathroom and two bedrooms.
For further details, please contact the selling agents.
Agents Note
Under Section 21 of the Estate Agents Act, we declare that the property owner has a family connection to a Director of the selling agents.
Location
Tal-y-bont is a small coastal village in Gwynedd, North Wales, located a few miles north of Barmouth and within Snowdonia National Park. It lies between the mountains of Snowdonia and the sandy coast of Cardigan Bay, making it a quiet base for walking and cycling.
The village itself is small but has useful amenities such as a railway station on the Cambrian Coast Line, a pub (the Ysgethin Inn).
Nearby is Benar Beach (Tal-y-bont Beach), known for its wide sands, sand dunes and good conditions for surfing and fishing, forming part of the Morfa Dyffryn dune system.
In short: Tal-y-bont is a small, scenic Welsh village near Barmouth, popular with visitors for its peaceful coastal setting, access to beaches, and proximity to the mountains of Snowdonia.
Tenure: Freehold
Property details
- Tenure
- Freehold
- Council Tax Band
- Ask Agent
- Date Posted
- 2026-04-15
Utilities & Restrictions
Utilities
- Electricity
- Ask Agent
- Water
- Ask Agent
- Heating
- Ask Agent
- Broadband
- Ask Agent
- Sewerage
- Ask Agent
Rights & Restrictions
- Public Rights of Way
- Ask Agent
- Private Rights of Way
- Ask Agent
- Listed Property
- Ask Agent
- Restrictions
- Ask Agent
Property Features
- Accessibility
- Ask Agent
- Parking
- Driveway
- Garden
- Front Garden, Rear Garden
Map Location
Important notice: Information, maps and tags on this page are supplied by the advertising agent or generated automatically. LandSale has not verified them. Relying on these details is at your own risk, always carry out independent checks before committing to a purchase.
LandSale full disclaimer
Marketing information only - not formal particulars. The details on this website are provided for general guidance and do not constitute an offer or contract. Neither LandSale nor the advertising estate/land agent accepts responsibility for any inaccuracy.
1. Source of information
- Agent-supplied content: Core description, asking price, tenure, measurements, photographs and planning history are uploaded by the appointed agent, who remains solely responsible for their accuracy.
- Automated tags & categorisation: Property type, land-use class, acreage bands and similar labels may be applied by machine-learning models. They are intended as a helpful guide only and may not reflect the property's legal status or permitted use.
- Third-party & enriched data layers: Maps, boundary outlines, planning designations, soil reports, broadband coverage and other environmental or location-based insights are licensed from external suppliers. Such data are supplied “as is", may be incomplete or out of date and are subject to change without notice.
2. Verification required
Prospective purchasers must verify critical matters, including but not limited to planning permission, title boundaries, public rights of way, environmental constraints, acreage, services, access and VAT status, through their own inspections, specialist surveys, legal advisers and the selling agent before relying on the information or entering into any contract.
3. No warranty or liability
LandSale gives no warranty, express or implied, as to the accuracy, completeness or fitness for any particular purpose of the information displayed. LandSale shall not be liable for any loss, damage, cost or expense arising directly or indirectly from any use of or reliance on such information, save where liability may not be excluded by law.
4. Updates & feedback
If you believe any detail on this listing is inaccurate, please let us know. We will investigate and, where appropriate, update the listing or notify the agent.
© LandSale | Version 1.2 - January 2026
Listing agent
Walter Lloyd Jones & Co., Dolgellau
Bridge Street, Dolgellau, LL40 1AS