High Street, Silverdale, ST5
Key Features
- PURCHASE PRICE IS SUBJECT TO 20% VAT
- Newcastle Borough Council Planning Reference: 25/00387/FUL
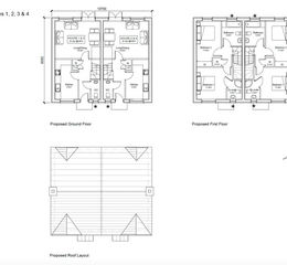
- Planning approved for 8 residential dwellings (mix of 2- & 3-bed units)
- Allocated parking for all homes
- Sought-after location close to Newcastle-under-Lyme and Keele University
- Established residential setting with strong local demand
- Accessible site with good transport links and local amenities nearby
- Ideal for developers, investors or joint-venture partners
Description
An exciting opportunity to acquire a prime residential development site with full planning consent for the construction of eight new dwellings comprising a mix of two- and three-bedroom homes, each benefitting from allocated parking.
Situated in a well-established residential area close to the amenities of Silverdale and Newcastle-under-Lyme town centre, the site offers excellent connectivity to Keele University, major road networks including the A34 and M6, and a range of local schools, shops and transport links.
The approved scheme has been thoughtfully designed to complement the surrounding area, offering a balanced mix of homes ideal for local buyers, first-time purchasers and downsizers alike. With strong demand for quality, energy-efficient housing across the region, this development represents a compelling opportunity for small to medium-sized builders or investors seeking a ready-to-go site with planning secured.
Don’t miss your chance to secure this sought-after opportunity.
House 1
2 Bedrooms GIA - 80m2 Garden - 67m2
House 2
2 Bedrooms GIA - 80m2 Garden 54m2
House 3
2 Bedrooms GIA - 80m2 Garden - 47m2
House 4
2 Bedrooms GIA - 80m2 Garden 57m2
House 5
3 Bedrooms GIA - 87m2 Garden 67m2
House 6
3 Bedrooms GIA - 87m2 Garden 78m2
House 7
3 Bedrooms GIA - 87m2 Garden 74m2
House 8
3 Bedrooms GIA - 87m2 Garden 76m2
Map Location
Property details
- Tenure
- Freehold
- Council Tax Band
- Ask Agent
- Date Posted
- 2026-03-11
Utilities & Restrictions
Utilities
- Electricity
- Ask Agent
- Water
- Ask Agent
- Heating
- Ask Agent
- Broadband
- Ask Agent
- Sewerage
- Ask Agent
Rights & Restrictions
- Public Rights of Way
- Ask Agent
- Private Rights of Way
- Ask Agent
- Listed Property
- Ask Agent
- Restrictions
- Ask Agent
Property Features
- Accessibility
- Ask Agent
- Parking
- Parking Available
- Garden
- Garden
Important notice: Information, maps and tags on this page are supplied by the advertising agent or generated automatically. LandSale has not verified them. Relying on these details is at your own risk, always carry out independent checks before committing to a purchase.
LandSale full disclaimer
Marketing information only - not formal particulars. The details on this website are provided for general guidance and do not constitute an offer or contract. Neither LandSale nor the advertising estate/land agent accepts responsibility for any inaccuracy.
1. Source of information
- Agent-supplied content: Core description, asking price, tenure, measurements, photographs and planning history are uploaded by the appointed agent, who remains solely responsible for their accuracy.
- Automated tags & categorisation: Property type, land-use class, acreage bands and similar labels may be applied by machine-learning models. They are intended as a helpful guide only and may not reflect the property's legal status or permitted use.
- Third-party & enriched data layers: Maps, boundary outlines, planning designations, soil reports, broadband coverage and other environmental or location-based insights are licensed from external suppliers. Such data are supplied “as is", may be incomplete or out of date and are subject to change without notice.
2. Verification required
Prospective purchasers must verify critical matters, including but not limited to planning permission, title boundaries, public rights of way, environmental constraints, acreage, services, access and VAT status, through their own inspections, specialist surveys, legal advisers and the selling agent before relying on the information or entering into any contract.
3. No warranty or liability
LandSale gives no warranty, express or implied, as to the accuracy, completeness or fitness for any particular purpose of the information displayed. LandSale shall not be liable for any loss, damage, cost or expense arising directly or indirectly from any use of or reliance on such information, save where liability may not be excluded by law.
4. Updates & feedback
If you believe any detail on this listing is inaccurate, please let us know. We will investigate and, where appropriate, update the listing or notify the agent.
© LandSale | Version 1.2 - January 2026
Listing agent
Heywoods, New Homes
The Estate Offices Blackfriars Road, Newcastle Under Lyme, ST5 2EB
Contact Heywoods, New Homes
The Estate Offices Blackfriars Road, Newcastle Under Lyme, ST5 2EB
View agent profile