Elmwood Road, Herne Hill SE24
- Bathrooms
- 1
Key Features
- Being Sold via Secure Sale online bidding. Terms & Conditions apply. Starting Bid £250,000
- Excellent transport links
- Quiet, tree lined street
- Property investment opportunity
- Close to Brockwell Park and Dulwich Park
- High Demand area for rental and resale
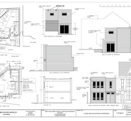
- Full Planning permission granted
- Charter School & Alleyn`s School nearby
Description
Being Sold via Secure Sale online bidding. Terms & Conditions apply. Starting Bid £250,000
Planning Permission has been granted for a two-storey dwelling house on Elmwood Road, set within the prestigious Dulwich Triangle - one of South London`s most desirable residential enclaves. This rare opportunity allows developers to create a bespoke residence that blends contemporary design with period charm in a location renowned for it`s character and market appeal. With plans optimised for space, natural light, and buyer interest, this site offers a compelling investment opportunity in a high-demand area for both rentals and resale.
Positioned moments from Dulwich village, Herne Hill, and East Dulwich, the property benefits from excellent transport links via North Dulwich and Herne Hill stations, offering easy access to London Bridge and Victoria. With it`s prime location, architectural potential, and granted planning permission, this plot represents an exceptional opportunity to build a truly unique house in a prestigious South London setting.
Please note - As stated above, planning has been granted for a residential property which may differ slightly to the plans shown
Notice
Please note we have not tested any apparatus, fixtures, fittings, or services. Interested parties must undertake their own investigation into the working order of these items. All measurements are approximate and photographs provided for guidance only.
Property details
- Tenure
- Freehold
- Council Tax Band
- Ask Agent
- Date Posted
- 2026-02-04
Utilities & Restrictions
Utilities
- Electricity
- Ask Agent
- Water
- Ask Agent
- Heating
- Ask Agent
- Broadband
- Ask Agent
- Sewerage
- Ask Agent
Rights & Restrictions
- Public Rights of Way
- Ask Agent
- Private Rights of Way
- Ask Agent
- Listed Property
- Ask Agent
- Restrictions
- Ask Agent
Property Features
- Accessibility
- Ask Agent
- Parking
- Ask Agent
- Garden
- Ask Agent
Important notice: Information, maps and tags on this page are supplied by the advertising agent or generated automatically. LandSale has not verified them. Relying on these details is at your own risk, always carry out independent checks before committing to a purchase.
LandSale full disclaimer
Marketing information only - not formal particulars. The details on this website are provided for general guidance and do not constitute an offer or contract. Neither LandSale nor the advertising estate/land agent accepts responsibility for any inaccuracy.
1. Source of information
- Agent-supplied content: Core description, asking price, tenure, measurements, photographs and planning history are uploaded by the appointed agent, who remains solely responsible for their accuracy.
- Automated tags & categorisation: Property type, land-use class, acreage bands and similar labels may be applied by machine-learning models. They are intended as a helpful guide only and may not reflect the property's legal status or permitted use.
- Third-party & enriched data layers: Maps, boundary outlines, planning designations, soil reports, broadband coverage and other environmental or location-based insights are licensed from external suppliers. Such data are supplied “as is", may be incomplete or out of date and are subject to change without notice.
2. Verification required
Prospective purchasers must verify critical matters, including but not limited to planning permission, title boundaries, public rights of way, environmental constraints, acreage, services, access and VAT status, through their own inspections, specialist surveys, legal advisers and the selling agent before relying on the information or entering into any contract.
3. No warranty or liability
LandSale gives no warranty, express or implied, as to the accuracy, completeness or fitness for any particular purpose of the information displayed. LandSale shall not be liable for any loss, damage, cost or expense arising directly or indirectly from any use of or reliance on such information, save where liability may not be excluded by law.
4. Updates & feedback
If you believe any detail on this listing is inaccurate, please let us know. We will investigate and, where appropriate, update the listing or notify the agent.
© LandSale | Version 1.2 - January 2026
Listing agent
Oliver Burn, Clapham
362 Clapham Road, London, SW9 9AR
Enquire about this property
Contact Oliver Burn, Clapham
362 Clapham Road, London, SW9 9AR
View agent profile