Building Plot, Mount Wise, Newquay
- Bedrooms
- 8
- Bathrooms
- 4
Key Features
- Building Plot
- Large Semi-Detached Family Homes
- South Facing Gardens
- Driveway Parking for Two Cars
- Full Planning Granted
- Stunning Sea Views
- Stones Throw Away From Town Centre
Description
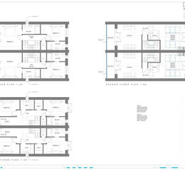
An exciting opportunity to purchase a plot with full planning consent for TWO, four bedroom semi-detached homes. Both properties benefit from sea views over the Newquay Bay, and two off-road parking spaces. Located just a stones throw away from Newquay's bustling town centre, with a range of shops, beaches and local amenities, this would make the ideal family home, or lucrative holiday let investment once fully built.
The Plot - Planning PA23/04779
- This idyllic site has full planning granted that will allow the new owner to construct two stunning semi-detached townhouses. The current plans allow for a pair of three-story, four-bedroom homes featuring stunning sea views from second floor, comprising the kitchen/dining and separate lounge. Externally the plot boasts parking for 2 cars per plot, and scope for a private landscaped south facing garden.
- we suggest all potential purchases look into the full online planning app before enquiring further.
Location - This stunning plot can be found on Mount Wise which is at the top of the town in Newquay. The town of Newquay benefits from a range of shopping and banking facilities as well as an array of fashionable bars and restaurants. The town also boasts an historic picturesque working fishing harbour and some of Europe's finest coastline. There is bus and rail service to outlying areas and Newquay Airport is approximately seven miles distance from the town.
Services - Services are connected with water and electric supply to the plot
Cil Payment - £35,000
Property details
- Tenure
- Freehold
- Council Tax Band
- TBC
- Date Posted
- 2026-01-29
Utilities & Restrictions
Utilities
- Electricity
- Mains
- Water
- Mains
- Heating
- Ask Agent
- Broadband
- Ask Agent
- Sewerage
- Mains
Rights & Restrictions
- Public Rights of Way
- Ask Agent
- Private Rights of Way
- Ask Agent
- Listed Property
- Ask Agent
- Restrictions
- Ask Agent
Property Features
- Accessibility
- Ask Agent
- Parking
- Driveway
- Garden
- Garden
Important notice: Information, maps and tags on this page are supplied by the advertising agent or generated automatically. LandSale has not verified them. Relying on these details is at your own risk, always carry out independent checks before committing to a purchase.
LandSale full disclaimer
Marketing information only - not formal particulars. The details on this website are provided for general guidance and do not constitute an offer or contract. Neither LandSale nor the advertising estate/land agent accepts responsibility for any inaccuracy.
1. Source of information
- Agent-supplied content: Core description, asking price, tenure, measurements, photographs and planning history are uploaded by the appointed agent, who remains solely responsible for their accuracy.
- Automated tags & categorisation: Property type, land-use class, acreage bands and similar labels may be applied by machine-learning models. They are intended as a helpful guide only and may not reflect the property's legal status or permitted use.
- Third-party & enriched data layers: Maps, boundary outlines, planning designations, soil reports, broadband coverage and other environmental or location-based insights are licensed from external suppliers. Such data are supplied “as is", may be incomplete or out of date and are subject to change without notice.
2. Verification required
Prospective purchasers must verify critical matters, including but not limited to planning permission, title boundaries, public rights of way, environmental constraints, acreage, services, access and VAT status, through their own inspections, specialist surveys, legal advisers and the selling agent before relying on the information or entering into any contract.
3. No warranty or liability
LandSale gives no warranty, express or implied, as to the accuracy, completeness or fitness for any particular purpose of the information displayed. LandSale shall not be liable for any loss, damage, cost or expense arising directly or indirectly from any use of or reliance on such information, save where liability may not be excluded by law.
4. Updates & feedback
If you believe any detail on this listing is inaccurate, please let us know. We will investigate and, where appropriate, update the listing or notify the agent.
© LandSale | Version 1.2 - January 2026
Listing agent
David Ball Agencies, Newquay
34 East Street, Newquay, TR7 1BH
Enquire about this property
Contact David Ball Agencies, Newquay
34 East Street, Newquay, TR7 1BH
View agent profile