Development Site, Toronto Road, Exeter
- Bedrooms
- 9
- Bathrooms
- 6
Key Features
- Development Site
- Planning Permission for 3 x Terraced Houses
- First Floor Balconies to Rear
- Cul-de-Sac Position
- Excellent Location for access to the City Centre
Description
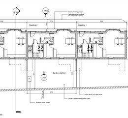
Development site with full planning permission granted for the demolition of existing garage block to construct 3 x three bedroom terraced dwellings (C3 Use Class) with external amenity space, first floor rear balconies, landscaping and associated works.
Toronto Road offers a cul-de-sac position within this highly sought-after and convenient location with great access to the City Centre, the University of Exeter and other local amenities.
Full planning information can be found on the Exeter City Council web site using application 23/0653/FUL.
Planning Documents - Full planning information can be found on the Exeter City Council web site using application 23/0653/FUL.
Further Information - Contact Naomi J Ryan Estate Agents on .
Referral Fee Disclosure - We recommend sellers and/or potential buyers use the services of The Mortgage Quarter. Should you decide to use the services of The Mortgage Quarter you should know that we would expect to receive a referral fee of £200 from them for recommending you to them. You are not under any obligation to use the services and can seek alternative providers of these services. Further information is available on our web site.
Agents Note - We hereby declare that the vendor of this property has an association with Naomi J Ryan Estate Agents.
Property details
- Tenure
- Freehold
- Council Tax Band
- Ask Agent
- Date Posted
- 2026-01-29
Utilities & Restrictions
Utilities
- Electricity
- Ask Agent
- Water
- Ask Agent
- Heating
- Ask Agent
- Broadband
- Ask Agent
- Sewerage
- Ask Agent
Rights & Restrictions
- Public Rights of Way
- Ask Agent
- Private Rights of Way
- Ask Agent
- Listed Property
- Ask Agent
- Restrictions
- Ask Agent
Property Features
- Accessibility
- Ask Agent
- Parking
- Parking Available
- Garden
- Ask Agent
Important notice: Information, maps and tags on this page are supplied by the advertising agent or generated automatically. LandSale has not verified them. Relying on these details is at your own risk, always carry out independent checks before committing to a purchase.
LandSale full disclaimer
Marketing information only - not formal particulars. The details on this website are provided for general guidance and do not constitute an offer or contract. Neither LandSale nor the advertising estate/land agent accepts responsibility for any inaccuracy.
1. Source of information
- Agent-supplied content: Core description, asking price, tenure, measurements, photographs and planning history are uploaded by the appointed agent, who remains solely responsible for their accuracy.
- Automated tags & categorisation: Property type, land-use class, acreage bands and similar labels may be applied by machine-learning models. They are intended as a helpful guide only and may not reflect the property's legal status or permitted use.
- Third-party & enriched data layers: Maps, boundary outlines, planning designations, soil reports, broadband coverage and other environmental or location-based insights are licensed from external suppliers. Such data are supplied “as is", may be incomplete or out of date and are subject to change without notice.
2. Verification required
Prospective purchasers must verify critical matters, including but not limited to planning permission, title boundaries, public rights of way, environmental constraints, acreage, services, access and VAT status, through their own inspections, specialist surveys, legal advisers and the selling agent before relying on the information or entering into any contract.
3. No warranty or liability
LandSale gives no warranty, express or implied, as to the accuracy, completeness or fitness for any particular purpose of the information displayed. LandSale shall not be liable for any loss, damage, cost or expense arising directly or indirectly from any use of or reliance on such information, save where liability may not be excluded by law.
4. Updates & feedback
If you believe any detail on this listing is inaccurate, please let us know. We will investigate and, where appropriate, update the listing or notify the agent.
© LandSale | Version 1.2 - January 2026
Listing agent
Naomi J Ryan, Exeter
18 Southernhay West Exeter EX1 1PJ
Enquire about this property
Contact Naomi J Ryan, Exeter
18 Southernhay West Exeter EX1 1PJ
View agent profile