The Street, Caston, Attleborough
- Bedrooms
- 3
Key Features
- Attractive Village Location
- Adjacent to Primary School
- Planning for 5 Dwellings
- Generous Plot Sizes
- For Sale by Private Treaty
Description
This site, in the attractive village of Caston, approximately 18 miles south west of Norwich and 7 miles north west of Attleborough has good access to the A11 tech corridor. The site is generally level and ready for development shortly, subject to the approval of all reserved matters. Offering planning for five dwellings on generous plot sizes, adjacent to the primary school and for sale by private treaty.
Description - The subject property is a well proportioned development site with access straight from the street. It is laid to grass, and is level
Planning - Reserved matters were approved on 28th September 2022 (3PL/2021/0223/D)
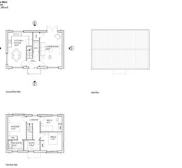
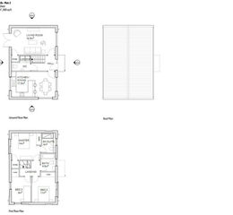
The original consent was for the development of 5 detached dwellings.
It also incorporates the development of a car park for use by the primary school on land to the front. The intention is that the primary school will take over the maintenance of the car park.
Accomodation - We understand the residential units will have approximate gross internal areas between 990SqFt and 1485SqFt.
Services - Although initial investigations were undertaken during the planning application process, prospective purchasers are advised to ensure the availability of adequate services at the site by contacting the relevant utility providers.
Terms - The freehold interest in the property is available for sale with offers in the region o £525,000 exclusive
Legal Costs - Each party is to bear their own costs
Vat - Our client reserves the right to charge VAT in line with current legislation
Property details
- Tenure
- Freehold
- Council Tax Band
- Ask Agent
- Date Posted
- 2026-01-29
Utilities & Restrictions
Utilities
- Electricity
- Ask Agent
- Water
- Ask Agent
- Heating
- Ask Agent
- Broadband
- Ask Agent
- Sewerage
- Ask Agent
Rights & Restrictions
- Public Rights of Way
- Ask Agent
- Private Rights of Way
- Ask Agent
- Listed Property
- Ask Agent
- Restrictions
- Ask Agent
Property Features
- Accessibility
- Ask Agent
- Parking
- Parking Available
- Garden
- Ask Agent
Important notice: Information, maps and tags on this page are supplied by the advertising agent or generated automatically. LandSale has not verified them. Relying on these details is at your own risk, always carry out independent checks before committing to a purchase.
LandSale full disclaimer
Marketing information only - not formal particulars. The details on this website are provided for general guidance and do not constitute an offer or contract. Neither LandSale nor the advertising estate/land agent accepts responsibility for any inaccuracy.
1. Source of information
- Agent-supplied content: Core description, asking price, tenure, measurements, photographs and planning history are uploaded by the appointed agent, who remains solely responsible for their accuracy.
- Automated tags & categorisation: Property type, land-use class, acreage bands and similar labels may be applied by machine-learning models. They are intended as a helpful guide only and may not reflect the property's legal status or permitted use.
- Third-party & enriched data layers: Maps, boundary outlines, planning designations, soil reports, broadband coverage and other environmental or location-based insights are licensed from external suppliers. Such data are supplied “as is", may be incomplete or out of date and are subject to change without notice.
2. Verification required
Prospective purchasers must verify critical matters, including but not limited to planning permission, title boundaries, public rights of way, environmental constraints, acreage, services, access and VAT status, through their own inspections, specialist surveys, legal advisers and the selling agent before relying on the information or entering into any contract.
3. No warranty or liability
LandSale gives no warranty, express or implied, as to the accuracy, completeness or fitness for any particular purpose of the information displayed. LandSale shall not be liable for any loss, damage, cost or expense arising directly or indirectly from any use of or reliance on such information, save where liability may not be excluded by law.
4. Updates & feedback
If you believe any detail on this listing is inaccurate, please let us know. We will investigate and, where appropriate, update the listing or notify the agent.
© LandSale | Version 1.2 - January 2026
Listing agent
Arnolds Keys, Norwich
25 King Street Norwich NR1 1PD
Enquire about this property
Contact Arnolds Keys, Norwich
25 King Street Norwich NR1 1PD
View agent profile