Intwood Lane, Swardeston
- Land size
- 0.22 acres
- Bedrooms
- 4
- Bathrooms
- 3
Key Features
- A Rare Opportunity to Build Your Dream Home
- Desirable Village Location
- Close To Amenities
- A Plot Of Approx 0.22 Acres (stms)
- Field Views To The Front & Rear
- Planning Approved (Ref: 2024/1677)
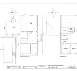
- A Unique Opportunity To Create A 4 Bedroom Detached Residence With A Double Garage
- Approx. 3000 Sq Ft Design
- Contact Us Today To Arrange A Site Visit Or For More Information
Description
Situated in the desirable village of Swardeston, just four miles South of Norwich, this exceptional building plot offers a unique opportunity to create a stunning and spacious four bedroom detached residence with a detached double garage. With full planning permission granted (application no. 2024/1677), the proposed home extends to approximately 3,000 square feet and has been thoughtfully designed to take advantage of the far reaching open field views to both the front and back.
This is a superb chance to create a bespoke home in an enviable location. Contact us today to arrange a site visit or for more information.
Location
Excellent amenities are nearby, including a large Tesco supermarket on the A140 and a Waitrose in the neighbouring village of Eaton. Additional facilities such as pubs, takeaways, and local shops can be found within easy reach. Schooling options include Mulbarton for primary education and various private schools in Norwich.
The area benefits from convenient transport links with regular bus services to Norwich and fast train connections to London Liverpool Street from Norwich`s Thorpe Station, with journey times from just 1 hour and 30 minutes.
Notice
Please note that we have not tested any apparatus, equipment, fixtures, fittings or services and as so cannot verify that they are in working order or fit for their purpose. Pymm & Co cannot guarantee the accuracy of the information provided. This is provided as a guide to the property and an inspection of the property is recommended.
Property details
- Tenure
- Freehold
- Council Tax Band
- Ask Agent
- Date Posted
- 2026-01-29
Utilities & Restrictions
Utilities
- Electricity
- Ask Agent
- Water
- Ask Agent
- Heating
- Ask Agent
- Broadband
- Ask Agent
- Sewerage
- Ask Agent
Rights & Restrictions
- Public Rights of Way
- Ask Agent
- Private Rights of Way
- Ask Agent
- Listed Property
- Ask Agent
- Restrictions
- Ask Agent
Property Features
- Accessibility
- Ask Agent
- Parking
- Parking Available
- Garden
- Ask Agent
Important notice: Information, maps and tags on this page are supplied by the advertising agent or generated automatically. LandSale has not verified them. Relying on these details is at your own risk, always carry out independent checks before committing to a purchase.
LandSale full disclaimer
Marketing information only - not formal particulars. The details on this website are provided for general guidance and do not constitute an offer or contract. Neither LandSale nor the advertising estate/land agent accepts responsibility for any inaccuracy.
1. Source of information
- Agent-supplied content: Core description, asking price, tenure, measurements, photographs and planning history are uploaded by the appointed agent, who remains solely responsible for their accuracy.
- Automated tags & categorisation: Property type, land-use class, acreage bands and similar labels may be applied by machine-learning models. They are intended as a helpful guide only and may not reflect the property's legal status or permitted use.
- Third-party & enriched data layers: Maps, boundary outlines, planning designations, soil reports, broadband coverage and other environmental or location-based insights are licensed from external suppliers. Such data are supplied “as is", may be incomplete or out of date and are subject to change without notice.
2. Verification required
Prospective purchasers must verify critical matters, including but not limited to planning permission, title boundaries, public rights of way, environmental constraints, acreage, services, access and VAT status, through their own inspections, specialist surveys, legal advisers and the selling agent before relying on the information or entering into any contract.
3. No warranty or liability
LandSale gives no warranty, express or implied, as to the accuracy, completeness or fitness for any particular purpose of the information displayed. LandSale shall not be liable for any loss, damage, cost or expense arising directly or indirectly from any use of or reliance on such information, save where liability may not be excluded by law.
4. Updates & feedback
If you believe any detail on this listing is inaccurate, please let us know. We will investigate and, where appropriate, update the listing or notify the agent.
© LandSale | Version 1.2 - January 2026
Listing agent
Pymm & Co, Norwich
4 Ber Street Norwich NR1 3EJ
Enquire about this property
Contact Pymm & Co, Norwich
4 Ber Street Norwich NR1 3EJ
View agent profile