Manchester Road, Macclesfield, SK10
- Land size
- 0.27 acres
Description
Land to the Rear of 63 Manchester Road, Tytherington.
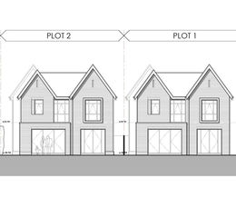
Residential development opportunity benefiting from approved planning permission for the construction of 2 detached house of 2475sqft standing in a plot of 0.27acre(0.109ha).
The planning permission has been granted on 12TH September 2024 application number 23/4431m for the construction of 2 detached houses subject to conditions. A variation of condition 2 on approval 23/4431M: Proposed entrance gate layout amended due to neighbouring tree removal. 25/1124/VOC was granted on 30th May 2025.
the accommodation of each property is as follows:
Ground Floor; Entrance Hall, living room, wc, utility room, open plan kitchen living dining room and an integral garage. To the first floor the accommodation comprises of landing, master bedroom suite with dressing area and ensuite, a second bedroom with ensuite and two further double bedrooms with a family bathroom. Externally the garden would be westerly facing and there would be a shared gated driveway to the front.
This site offers a unique opportunity for developers and self-build enthusiasts alike. Full plans and conditions are available for viewing at our office.
Viewing strictly by appointment only.
Property details
- Tenure
- Freehold
- Council Tax Band
- Ask Agent
- Date Posted
- 2026-01-29
Utilities & Restrictions
Utilities
- Electricity
- Ask Agent
- Water
- Ask Agent
- Heating
- Ask Agent
- Broadband
- Ask Agent
- Sewerage
- Ask Agent
Rights & Restrictions
- Public Rights of Way
- Ask Agent
- Private Rights of Way
- Ask Agent
- Listed Property
- Ask Agent
- Restrictions
- Ask Agent
Property Features
- Accessibility
- Ask Agent
- Parking
- Parking Available
- Garden
- Garden
Important notice: Information, maps and tags on this page are supplied by the advertising agent or generated automatically. LandSale has not verified them. Relying on these details is at your own risk, always carry out independent checks before committing to a purchase.
LandSale full disclaimer
Marketing information only - not formal particulars. The details on this website are provided for general guidance and do not constitute an offer or contract. Neither LandSale nor the advertising estate/land agent accepts responsibility for any inaccuracy.
1. Source of information
- Agent-supplied content: Core description, asking price, tenure, measurements, photographs and planning history are uploaded by the appointed agent, who remains solely responsible for their accuracy.
- Automated tags & categorisation: Property type, land-use class, acreage bands and similar labels may be applied by machine-learning models. They are intended as a helpful guide only and may not reflect the property's legal status or permitted use.
- Third-party & enriched data layers: Maps, boundary outlines, planning designations, soil reports, broadband coverage and other environmental or location-based insights are licensed from external suppliers. Such data are supplied “as is", may be incomplete or out of date and are subject to change without notice.
2. Verification required
Prospective purchasers must verify critical matters, including but not limited to planning permission, title boundaries, public rights of way, environmental constraints, acreage, services, access and VAT status, through their own inspections, specialist surveys, legal advisers and the selling agent before relying on the information or entering into any contract.
3. No warranty or liability
LandSale gives no warranty, express or implied, as to the accuracy, completeness or fitness for any particular purpose of the information displayed. LandSale shall not be liable for any loss, damage, cost or expense arising directly or indirectly from any use of or reliance on such information, save where liability may not be excluded by law.
4. Updates & feedback
If you believe any detail on this listing is inaccurate, please let us know. We will investigate and, where appropriate, update the listing or notify the agent.
© LandSale | Version 1.2 - January 2026
Listing agent
Michael J Chapman, Alderley Edge
79 London Road Alderley Edge Cheshire SK9 7DY
Enquire about this property
Contact Michael J Chapman, Alderley Edge
79 London Road Alderley Edge Cheshire SK9 7DY
View agent profile