Hall Street, Penycae
- Land size
- 0.5 acres
Key Features
- Residential development site
- Outline planning consent for 8 dwellings
- Village location with semi rural views
- Cleared site
- 2 existing vehicular entrance points
- Planning ref – P/2020/0787
- Various reports available
Description
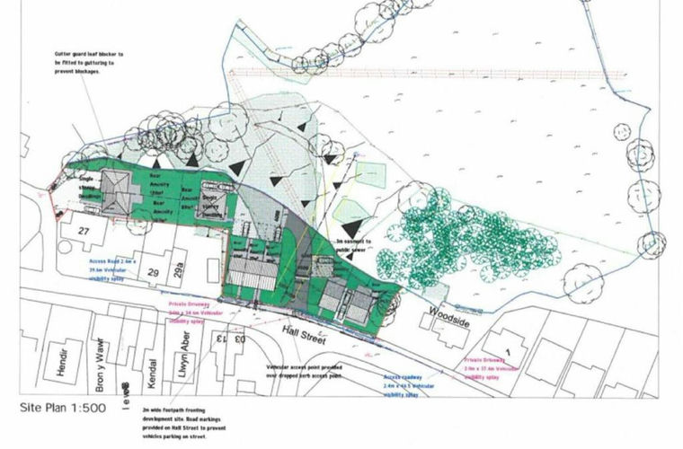
An excellent opportunity to purchase a parcel of residential development land extending to approx. 0.5 acres having the benefit of outline planning permission granted 23rd March 2020 for the erection of 8 dwellings. This cleared site benefits from 2 vehicular access points off Hall Street and a pleasant semi rural tree lined aspect across open fields to the rear. Services are available either on site or close by. The Architects, Blueprint, ) advised the vendor and obtained the planning consent. Various reports are available online via and upon request from Wingetts including the Ecology Report, Bat Report, Planning Certificate and Drainage Report. The current scheme includes 3 detached dwellings, a row of 3 mews houses and a pair of semi detached dwellings.
Location - The village of Penyace is located approximately 5 miles from Wrexham city centre and enjoys good road links to the A485 by pass that provides access to Wrexham, Chester and Shropshire. The village offers a convenient range of shopping facilities and social amenities including a primary school. A wider choice is available within the adjoining villages of Rhosllanerchrugog and Ruabon.
Directions - Take the exit off the A483 by pass signposted Ruabon and Llangollen and follow the signs for Llangollen passing Aldi supermarket on the right. Take the 3rd exit at this roundabout and thereafter take the next right turn signposted Penycae. Continue for approx. 1 mile along Plas Bennion Road , Copperas Hill and into Hall Street. The development site will be observed on the right just after Penycae School.
The Architects, Blueprint, ) advised the vendor and obtained the planning consent. Various reports are available online via and upon request from Wingetts including the Ecology Report, Bat Report, Planning Certificate and Drainage Report. The current scheme includes 3 detached dwellings, a row of 3 mews houses and a pair of semi detached dwellings.
Property details
- Tenure
- Freehold
- Council Tax Band
- Ask Agent
- Date Posted
- 2026-01-29
Utilities & Restrictions
Utilities
- Electricity
- Ask Agent
- Water
- Ask Agent
- Heating
- Ask Agent
- Broadband
- Ask Agent
- Sewerage
- Ask Agent
Rights & Restrictions
- Public Rights of Way
- Ask Agent
- Private Rights of Way
- Ask Agent
- Listed Property
- Ask Agent
- Restrictions
- Ask Agent
Property Features
- Accessibility
- Ask Agent
- Parking
- Ask Agent
- Garden
- Ask Agent
Important notice: Information, maps and tags on this page are supplied by the advertising agent or generated automatically. LandSale has not verified them. Relying on these details is at your own risk, always carry out independent checks before committing to a purchase.
LandSale full disclaimer
Marketing information only - not formal particulars. The details on this website are provided for general guidance and do not constitute an offer or contract. Neither LandSale nor the advertising estate/land agent accepts responsibility for any inaccuracy.
1. Source of information
- Agent-supplied content: Core description, asking price, tenure, measurements, photographs and planning history are uploaded by the appointed agent, who remains solely responsible for their accuracy.
- Automated tags & categorisation: Property type, land-use class, acreage bands and similar labels may be applied by machine-learning models. They are intended as a helpful guide only and may not reflect the property's legal status or permitted use.
- Third-party & enriched data layers: Maps, boundary outlines, planning designations, soil reports, broadband coverage and other environmental or location-based insights are licensed from external suppliers. Such data are supplied “as is", may be incomplete or out of date and are subject to change without notice.
2. Verification required
Prospective purchasers must verify critical matters, including but not limited to planning permission, title boundaries, public rights of way, environmental constraints, acreage, services, access and VAT status, through their own inspections, specialist surveys, legal advisers and the selling agent before relying on the information or entering into any contract.
3. No warranty or liability
LandSale gives no warranty, express or implied, as to the accuracy, completeness or fitness for any particular purpose of the information displayed. LandSale shall not be liable for any loss, damage, cost or expense arising directly or indirectly from any use of or reliance on such information, save where liability may not be excluded by law.
4. Updates & feedback
If you believe any detail on this listing is inaccurate, please let us know. We will investigate and, where appropriate, update the listing or notify the agent.
© LandSale | Version 1.2 - January 2026
Listing agent
Wingetts, Wrexham
29 Holt Street, Wrexham, LL13 8DH
Enquire about this property
Contact Wingetts, Wrexham
29 Holt Street, Wrexham, LL13 8DH
View agent profile