Llanfair Dyffryn Clwyd, Rhuthun
- Land size
- 0.17 acres
Key Features
- Large Freehold Building Plot About 0.17 Acre
- Detailed Planning Consent For 1 Large 3 Bedroom Detached Bungalow
- Standing In A Lovely Setting
- Near To Popular Village
- Around 2 Miles From Ruthin
- Garden Area To Front
- Designated Parking Area
Description
A LARGE FREEHOLD BUILDING PLOT OF ABOUT 0.17 ACRE BENEFITTING FROM DETAILED PLANNING CONSENT FOR ONE LARGE 3 BEDROOM DETACHED BUNGALOW STANDING IN A LOVELY SETTING WITH A WIDE FRONTAGE ONTO A VILLAGE ROAD NEAR TO THE CENTRE OF THIS POPULAR VILLAGE SOME 2 MILES FROM RUTHIN.
Forming part of the large gardens to the front of Clover Bank with a new shared double width entrance in the sale presents a rare opportunity to develop a very spacious bungalow. The approved plans are for a very spacious home affording canopy entrance, central hall, large L'shaped kitchen/dining and family room, lounge, utility, bedroom 1 with en-suite, 2 bedrooms and bathroom.
Garden area to front with designated parking area.
Location - Llanfair Dyffryn Clwyd is a small rural village standing on the A525(T) Wrexham Road some 2 miles from Ruthin. There is a Primary School, Inn and Church to its centre, whilst the nearby market town provides an ideal range of facilities to include secondary schools and leisure facilities.
Planning Permission - Detailed planning permission has been approved by Denbighshire County Council under Application No. 20/2022/0996 NMA and application No. 20/2021/0637 for a detached 3 bedroom bungalow on land at Clover Bank, Llanfair D.C.
Dated 30th. March 2023.
A copy of the approval and plans are available for inspection on the Council Planning Portal or the agents Ruthin office.
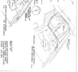
Proposed Development Plans - The approved plans permit the development of a large detached single storey bungalow as per the sketch plans included. The proposed accommodation will provide:
Deep canopy entrance.
Large central reception hall with cloaks cupboard.
Large L'shaped kitchen/Dining room 6.2 metres x 4.5 metres plus adjoining Family room 3.6 metres x 3.3 metres.
Lounge 6'1 metres x 3.8 metres.
Study 3.5 m x 2.4m.
Bedroom 1 5m max x 3.7m average.
En-Suite shower room
Bedroom 2. 4m x 3m
Bedroom 3. 3.15m x 2.66m
Bathroom 3m x 2.4 m
Utility Room.
Services - We understand mains water, electricity and drainage are available for connection within the area, but prospective buyers should make their own enquiries to confirm with the Utility companies.
Directions - From the Agent's Ruthin Office proceed down Well Street and on reaching the junction with Station Road bear right. Follow the road out of town for some miles and on entering the village of Llanfair DC continue to the White Horse Inn and turn immediately right signposted Pwllglas. Continue past the primary school and the plot will be found on the left.
Tenure - Understood to be Freehold.
Viewing - By appointment through the Agent's Ruthin office .
FLOOR PLANS - included for identification purposes only, not to scale.
ESJ/HME
Anti Money Laundering Regulations - Intending purchasers will be asked to produce identification documentation before we can confirm the sale in writing. There is an administration charge of £30.00 per person payable by buyers and sellers, as we must electronically verify the identity of all in order to satisfy Government requirements regarding customer due diligence. We would ask for your co-operation in order that there will be no delay in agreeing the sale.
Extra Services - Mortgage referrals, conveyancing referral and surveying referrals will be offered by Cavendish Estate Agents. If a buyer or seller should proceed with any of these services then a commission fee will be paid to Cavendish Estate Agents Ltd upon completion.
Alternatively, a copy can be requested from our office which will be sent via email.
Property details
- Tenure
- Freehold
- Council Tax Band
- Ask Agent
- Date Posted
- 2026-01-29
Utilities & Restrictions
Utilities
- Electricity
- Ask Agent
- Water
- Ask Agent
- Heating
- Ask Agent
- Broadband
- Ask Agent
- Sewerage
- Ask Agent
Rights & Restrictions
- Public Rights of Way
- Ask Agent
- Private Rights of Way
- Ask Agent
- Listed Property
- Ask Agent
- Restrictions
- Ask Agent
Property Features
- Accessibility
- Ask Agent
- Parking
- Parking Available
- Garden
- Garden
Important notice: Information, maps and tags on this page are supplied by the advertising agent or generated automatically. LandSale has not verified them. Relying on these details is at your own risk, always carry out independent checks before committing to a purchase.
LandSale full disclaimer
Marketing information only - not formal particulars. The details on this website are provided for general guidance and do not constitute an offer or contract. Neither LandSale nor the advertising estate/land agent accepts responsibility for any inaccuracy.
1. Source of information
- Agent-supplied content: Core description, asking price, tenure, measurements, photographs and planning history are uploaded by the appointed agent, who remains solely responsible for their accuracy.
- Automated tags & categorisation: Property type, land-use class, acreage bands and similar labels may be applied by machine-learning models. They are intended as a helpful guide only and may not reflect the property's legal status or permitted use.
- Third-party & enriched data layers: Maps, boundary outlines, planning designations, soil reports, broadband coverage and other environmental or location-based insights are licensed from external suppliers. Such data are supplied “as is", may be incomplete or out of date and are subject to change without notice.
2. Verification required
Prospective purchasers must verify critical matters, including but not limited to planning permission, title boundaries, public rights of way, environmental constraints, acreage, services, access and VAT status, through their own inspections, specialist surveys, legal advisers and the selling agent before relying on the information or entering into any contract.
3. No warranty or liability
LandSale gives no warranty, express or implied, as to the accuracy, completeness or fitness for any particular purpose of the information displayed. LandSale shall not be liable for any loss, damage, cost or expense arising directly or indirectly from any use of or reliance on such information, save where liability may not be excluded by law.
4. Updates & feedback
If you believe any detail on this listing is inaccurate, please let us know. We will investigate and, where appropriate, update the listing or notify the agent.
© LandSale | Version 1.2 - January 2026
Listing agent
Cavendish Estate Agents, Ruthin
St Peters Square Well Street, Ruthin, LL15 1AE
Enquire about this property
Contact Cavendish Estate Agents, Ruthin
St Peters Square Well Street, Ruthin, LL15 1AE
View agent profile