Moor Lane, Gotham, NG11
- Land size
- 0.44 acres
- Bedrooms
- 4
- Bathrooms
- 4
Key Features
- FULL Planning permission 24/01400/FUL
- Open plan kitchen and dining area
- Garden Room
- All Bedrooms Ensuite
- Newly constructed Parking Barn
- Approximately 3500 square feet
- Excellent Communication Links
- Spacious plot measuring 0.44Acres
- Delightful rural Setting
- Grand design opportunity
Description
The Orchard Red Roofs, Moor Lane
Exceptional Self-Build Opportunity with Full Planning Permission in an Idyllic Village Setting
Property Overview
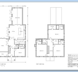
The Orchard adjacent to Red Roofs, Moor Lane, presents an outstanding and rare opportunity to acquire a substantial building plot with full planning permission for a stylish, individually designed dwelling. Occupying approximately 0.44 acres, this site offers the discerning buyer the chance to create a bespoke home of around 3,500 square feet in a sought-after rural location on the edge of the village.
The proposed dwelling is an impressive four-bedroom, three-bathroom detached residence designed to offer spacious and versatile living across a generous plot. The heart of the home is a stunning open-plan kitchen and dining area, complete with an integrated kitchen island that is perfect for hosting family meals or entertaining guests. With three well-proportioned reception rooms, this property provides ample space for both relaxation and more formal gatherings. The layout incorporates multiple en-suite bathrooms, ensuring privacy and convenience for residents and guests alike. A dedicated study room provides an ideal environment for home working or creative pursuits, catering to modern lifestyles.
Plot Details
The plot is generously proportioned at 0.44 acres, providing ample space for a substantial family residence whilst maintaining privacy and a sense of openness. Full planning consent has been granted for a dramatic, architect-designed dwelling that seamlessly blends traditional and contemporary styles. The proposed property will be thoughtfully positioned within the plot to maximise both natural light and the far-reaching views across open fields, ensuring a tranquil and picturesque living environment.
Location and Connectivity
Set on the periphery of the village, The plot enjoys an enviable setting with uninterrupted views over adjacent open countryside. The location offers excellent communication links, being within easy reach of Nottingham and the major road networks of the M1 and M42. For those requiring frequent travel, East Midlands and Birmingham airports are accessible, while the nearby Parkway railway station offers a direct service to London is just 10 minutes away, making this an ideal base for commuters and international travellers alike.
Existing Structures
A significant feature of this site is the existing newly constructed oak garage barn, built at an approximate cost of £100,000. This quality structure provides semi covered garaging for two vehicles and includes practical ground floor rooms, lending versatility for storage, workshop use, or potential office. The barn adds immediate utility and value to the plot while complementing the proposed new dwelling.
Self-Build Opportunity
Opportunities of this calibre are seldom available. The current owner is willing to oversee the construction process, supporting purchasers through the self-build journey to ensure quality and continuity. This level of assistance, coupled with the rarity of a plot with such comprehensive permission and readiness, enhances the appeal for those seeking to realise their dream home with professional guidance.
Neighbourhood and Surroundings
The Orchard ,Red Roofs is situated on the edge of the village, enjoying a peaceful setting bordered by open fields and neighbouring single-storey dwellings. The locality is characterised by a harmonious blend of traditional homes and striking contemporary properties. The plot’s proposed design ensures wonderful vistas and an abundance of natural light.
Design and Planning
Current planning consent allows for a home that harmoniously marries traditional elements with contemporary design flair. The plans allow the use of high-quality materials throughout, promising a visually dramatic and enduring property in a truly enviable location. The balance of classic and modern aesthetics will create a distinctive home tailored to 21st-century living. Planning permission 24/01400/FUL
Rushcliffe Borough Council
Conclusion
The Orchard Red Roofs, Moor Lane, represents a truly unique and exciting self-build opportunity in a prestigious village setting. With full planning permission, existing quality structures, and the option of owner support throughout the build, this is a chance to create a bespoke home of distinction. Early viewing is strongly recommended to appreciate the full potential of this exceptional plot.
Parking - Garage
Parking - Driveway
Property details
- Tenure
- Freehold
- Council Tax Band
- Ask Agent
- Date Posted
- 2026-04-19
Utilities & Restrictions
Utilities
- Electricity
- Ask Agent
- Water
- Ask Agent
- Heating
- Ask Agent
- Broadband
- Ask Agent
- Sewerage
- Ask Agent
Rights & Restrictions
- Public Rights of Way
- Ask Agent
- Private Rights of Way
- Ask Agent
- Listed Property
- Ask Agent
- Restrictions
- Ask Agent
Property Features
- Accessibility
- Ask Agent
- Parking
- Garage, Driveway
- Garden
- Private Garden
Map Location
Thinking of selling?
Sell your property the smart way with free valuations, auction sales, and expert agent matching.
Important notice: Information, maps and tags on this page are supplied by the advertising agent or generated automatically. LandSale has not verified them. Relying on these details is at your own risk, always carry out independent checks before committing to a purchase.
LandSale full disclaimer
Marketing information only - not formal particulars. The details on this website are provided for general guidance and do not constitute an offer or contract. Neither LandSale nor the advertising estate/land agent accepts responsibility for any inaccuracy.
1. Source of information
- Agent-supplied content: Core description, asking price, tenure, measurements, photographs and planning history are uploaded by the appointed agent, who remains solely responsible for their accuracy.
- Automated tags & categorisation: Property type, land-use class, acreage bands and similar labels may be applied by machine-learning models. They are intended as a helpful guide only and may not reflect the property's legal status or permitted use.
- Third-party & enriched data layers: Maps, boundary outlines, planning designations, soil reports, broadband coverage and other environmental or location-based insights are licensed from external suppliers. Such data are supplied “as is", may be incomplete or out of date and are subject to change without notice.
2. Verification required
Prospective purchasers must verify critical matters, including but not limited to planning permission, title boundaries, public rights of way, environmental constraints, acreage, services, access and VAT status, through their own inspections, specialist surveys, legal advisers and the selling agent before relying on the information or entering into any contract.
3. No warranty or liability
LandSale gives no warranty, express or implied, as to the accuracy, completeness or fitness for any particular purpose of the information displayed. LandSale shall not be liable for any loss, damage, cost or expense arising directly or indirectly from any use of or reliance on such information, save where liability may not be excluded by law.
4. Updates & feedback
If you believe any detail on this listing is inaccurate, please let us know. We will investigate and, where appropriate, update the listing or notify the agent.
© LandSale | Version 1.2 - January 2026
Listing agent
Newton Fallowell, Loughborough
3 Swan Street, Loughborough, LE11 5BJ