Trigg Road, Heapey, Chorley, Lancashire
- Land size
- 1.16 acres
Description
DEVELOPMENT SITE WITH PLANNING CONSENT FOR 4 EXECUTIVE HOMES.
Residential development site, extending to 1.1 acres with planning consent to create four detached executive homes. The property lies in an elevated idyllic rural location and forms part of a small cluster of other similar residences. It is surrounded by open countryside and lies 25 miles to the north of Manchester and 12.5 miles to the south of Preston, with the market town of Chorley only 3.4 miles away.
Planning Application 23/00038
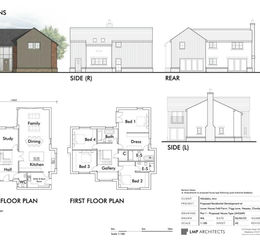
Proposed Residential Development (four new units).
Development site area: 1.16 acres (0.47ha).
Plot One – House Type 4H2609 - Ground floor: Open-plan kitchen / family room and utility, study, lounge, hallway and WC –1,328 sq.ft. (123.34 sq.m.)
First floor: Principal bedroom with dressing room and en suite, bedroom 2 with en suite, bedrooms 3 and 4 and family bathroom – 1,281 sq.ft. (119.02 sq.m.)
Total floor area: 2,609 sq.ft. (242.36 sq.m) plus detached garage
Plot Two – House Type 4H2548 - Ground floor: Open-plan kitchen / family room and utility, lounge, study hallway and WC –1,329 sq.ft. (123.46 sq.m.)
First floor: Principal bedroom with dressing room and en suite, bedroom 2 with en suite, bedrooms 3 and 4 and family bathroom – 1,219 sq.ft. (119.02 sq.m.)
Total floor area: 2,548 sq.ft. (113.23 sq.m) plus detached garage
Plot Three – House Type 4H2627 - Ground floor: Kitchen / family room and utility, study, lounge, hallway and WC –1,135 sq.ft. (105.48 sq.m.)
First floor: Principal bedroom with en suite, bedroom 2 with en suite, bedrooms 3 and 4, study and family bathroom – 1,492 sq.ft. (138.62 sq.m.)
Total floor area: 2,627 sq.ft. (244.10 sq.m) plus detached garage
Plot Four – House Type 4H2176 - Ground floor: Kitchen / family room and utility, study, lounge, hallway and WC –1,151sq.ft. (106.98 sq.m.)
First floor: Principal bedroom with dressing room and en suite, bedroom 2 with en suite, bedrooms 3 and 4 and family bathroom – 1,025.00sq.ft. (95.19 sq.m.)
Total floor area: 2,176 sq.ft. (202.17 sq.m) plus detached garage
Property details
- Tenure
- Freehold
- Council Tax Band
- Ask Agent
- Date Posted
- 2026-04-17
Utilities & Restrictions
Utilities
- Electricity
- Ask Agent
- Water
- Ask Agent
- Heating
- Ask Agent
- Broadband
- Ask Agent
- Sewerage
- Ask Agent
Rights & Restrictions
- Public Rights of Way
- Ask Agent
- Private Rights of Way
- Ask Agent
- Listed Property
- Ask Agent
- Restrictions
- Ask Agent
Property Features
- Accessibility
- Ask Agent
- Parking
- Parking Available
- Garden
- Ask Agent
Map Location
Market Value Analysis
Based on land listings in North West England (1+ acres).
Important notice: Information, maps and tags on this page are supplied by the advertising agent or generated automatically. LandSale has not verified them. Relying on these details is at your own risk, always carry out independent checks before committing to a purchase.
LandSale full disclaimer
Marketing information only - not formal particulars. The details on this website are provided for general guidance and do not constitute an offer or contract. Neither LandSale nor the advertising estate/land agent accepts responsibility for any inaccuracy.
1. Source of information
- Agent-supplied content: Core description, asking price, tenure, measurements, photographs and planning history are uploaded by the appointed agent, who remains solely responsible for their accuracy.
- Automated tags & categorisation: Property type, land-use class, acreage bands and similar labels may be applied by machine-learning models. They are intended as a helpful guide only and may not reflect the property's legal status or permitted use.
- Third-party & enriched data layers: Maps, boundary outlines, planning designations, soil reports, broadband coverage and other environmental or location-based insights are licensed from external suppliers. Such data are supplied “as is", may be incomplete or out of date and are subject to change without notice.
2. Verification required
Prospective purchasers must verify critical matters, including but not limited to planning permission, title boundaries, public rights of way, environmental constraints, acreage, services, access and VAT status, through their own inspections, specialist surveys, legal advisers and the selling agent before relying on the information or entering into any contract.
3. No warranty or liability
LandSale gives no warranty, express or implied, as to the accuracy, completeness or fitness for any particular purpose of the information displayed. LandSale shall not be liable for any loss, damage, cost or expense arising directly or indirectly from any use of or reliance on such information, save where liability may not be excluded by law.
4. Updates & feedback
If you believe any detail on this listing is inaccurate, please let us know. We will investigate and, where appropriate, update the listing or notify the agent.
© LandSale | Version 1.2 - January 2026
Listing agent
Athertons, Property & Land
53 King Street, Whalley, BB7 9SP