New Employment/Warehouse Development, Tollgate Road, Burscough, L40
- Land size
- 2.3 acres
Key Features
- New Employment Development
- Warehouse / Industrial / Business / Office / Trade / Hybrid Units
- Freehold / Long Leasehold / Leasehold Design & Build Opportunities(subject to planning)
- Approx. 256,000 sq ft (23,780 m) total floorspace
- Mix of large units and small business / trade units
- Established industrial location
- Excellent connectivity
Description
Preliminary Particulars - Expressions of Interest Sought
Ringtail Business Park forms part of a high-quality employment-led development within the wider regeneration of the former Royal Naval Air Station (HMS Ringtail).
Phase 1 will deliver a modern mixed industrial scheme, providing a combination of mid-box warehouse units and smaller terrace units, suitable for a wide range of occupiers including manufacturing, logistics, storage & distribution, trade counter and business uses.
Phase 1 delivers:
20,194 m (approx. 217,300 sq ft) of new employment floorspace
450 parking spaces, including EV charging
Cycle parking and modern service yards
3,550 m attenuation pond and enhanced landscaping
Phase 2 - Outline Opportunities
Design & build units from 5,000 sq ft up to c. 100,000 sq ft
Serviced plots available by agreement
Full estate road access established from Phase 1
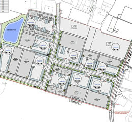
107-SITE-L05 Phase 2 Outline
The outline plan (L05) illustrates significant development capacity with the ability to accommodate a second phase of modern employment/industrial space to suit larger requirements
The development can accommodate a broad spectrum of occupiers requiring:
Light industrial / general industrial
Storage & distribution
Trade counter / hybrid workspace
High-spec business space
Bespoke design & build facilities (freehold or leasehold)
At this stage, the scheme layout allows flexibility and units or plots may be adapted to suit specific operational needs.
Expressions of Interest
Parties are now invited to register interest across:
Phase 1 proposed units (sizes from 2,000-32,000+ sq ft)
Phase 2 design & build opportunities up to 100,000 sq Serviced plot sales (by agreement)
Freehold / Long Leasehold / Leasehold options
Property details
- Tenure
- Ask Agent
- Council Tax Band
- Ask Agent
- Date Posted
- 2026-04-16
Utilities & Restrictions
Utilities
- Electricity
- Ask Agent
- Water
- Ask Agent
- Heating
- Ask Agent
- Broadband
- Ask Agent
- Sewerage
- Ask Agent
Rights & Restrictions
- Public Rights of Way
- Ask Agent
- Private Rights of Way
- Ask Agent
- Listed Property
- Ask Agent
- Restrictions
- Ask Agent
Property Features
- Accessibility
- Ask Agent
- Parking
- Parking Available
- Garden
- Garden
Map Location
Important notice: Information, maps and tags on this page are supplied by the advertising agent or generated automatically. LandSale has not verified them. Relying on these details is at your own risk, always carry out independent checks before committing to a purchase.
LandSale full disclaimer
Marketing information only - not formal particulars. The details on this website are provided for general guidance and do not constitute an offer or contract. Neither LandSale nor the advertising estate/land agent accepts responsibility for any inaccuracy.
1. Source of information
- Agent-supplied content: Core description, asking price, tenure, measurements, photographs and planning history are uploaded by the appointed agent, who remains solely responsible for their accuracy.
- Automated tags & categorisation: Property type, land-use class, acreage bands and similar labels may be applied by machine-learning models. They are intended as a helpful guide only and may not reflect the property's legal status or permitted use.
- Third-party & enriched data layers: Maps, boundary outlines, planning designations, soil reports, broadband coverage and other environmental or location-based insights are licensed from external suppliers. Such data are supplied “as is", may be incomplete or out of date and are subject to change without notice.
2. Verification required
Prospective purchasers must verify critical matters, including but not limited to planning permission, title boundaries, public rights of way, environmental constraints, acreage, services, access and VAT status, through their own inspections, specialist surveys, legal advisers and the selling agent before relying on the information or entering into any contract.
3. No warranty or liability
LandSale gives no warranty, express or implied, as to the accuracy, completeness or fitness for any particular purpose of the information displayed. LandSale shall not be liable for any loss, damage, cost or expense arising directly or indirectly from any use of or reliance on such information, save where liability may not be excluded by law.
4. Updates & feedback
If you believe any detail on this listing is inaccurate, please let us know. We will investigate and, where appropriate, update the listing or notify the agent.
© LandSale | Version 1.2 - January 2026
Listing agent
Fitton Estates, Merseyside/Lancashire
47 Hoghton Street, Southport, PR9 0PG
Contact Fitton Estates, Merseyside/Lancashire
47 Hoghton Street, Southport, PR9 0PG
View agent profile