Old Gloucester Road, Ross-on-Wye
Key Features
- Close to popular market towns
- Plot of land with detailed planning permission
- Planning ref P191464/F at Herefordshire Council
- Close to many reputable riverside pubs and restaurants
- Within catchment area of 'Outstanding' graded primary school
Description
Rear of Albion Chambers
Gloucester Road Ross-on-Wye Herefordshire
£145,000
Planning Ref: P191464/F
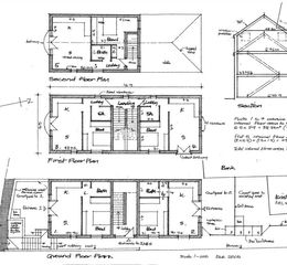
Development Land to Build 5 One Bed Apartments on 3 Floors
With Planning Permission in a sought after market town.
Full description
Tenure: Freehold
An exciting development/investment opportunity in a well sought after area of Herefordshire. This prime development land is set in the heart of the market town Ross-on-Wye. The planning permission is for 5 attractive, self-contained, one bedroomed apartment spanning over three floors. The attractive design incorporates two with balconies with two courtyards for the two ground floor units.
Flat walk into the centre of Ross-on-Wye and easy access to A40 & M50.
The proposed building is constructed in red face-brickwork with feature blue brick sill and heads to azure/blue, colour coated aluminium double-glazed windows and doors under a slate tiled roof.
Bin store and cycle cover have also been designed.
For full details of the project, please go to the Herefordshire planning website.
Please note the vendor is renewing the planning application for a sale to proceed.
Locations
Ross-on-Wye offers an assortment of shops, supermarkets, independently-owned boutiques, a range of restaurants, welcoming pubs and various leisure facilities. There are four schools dotted around the town - three primaries and one secondary - all of which carry 'Good' Ofsted ratings.Ross also houses two GP surgeries and both of these, plus the local community hospital, are all a short walk. There are also numerous spectacular woodland, riverside and country hikes nearby, including the Town and Country Trail, Chase Woods and the John Kyrle circular walk, taking in fields and the River Wye. The Rope Walk - a lovely level route taking visitors on a stroll alongside the River Wye is also just a few minutes' walk away.
Ross is also within easy access of major road networks. The A40 is around a mile away and the east-bound road provides a direct route to Gloucester, Cheltenham and the Cotswolds. Meanwhile, motorists heading in the opposite direction can journey towards the M4 at Newport, giving access to Cardiff and London. In addition, the M50 motorway is around two miles away and this gives good access to the M5 - leading to Birmingham to the north and Bristol to the south.
Directions
As you travel along Old Gloucester Road, you will see the property shop on your right. The plot is to the rear.
Distances
Monmouth 12 miles - Ross-on-Wye 1 mile - Hereford 16 miles - Gloucester 19 miles -Cheltenham 22 miles - Bristol 57 miles -
(All distances are approximate)
Property details
- Tenure
- Freehold
- Council Tax Band
- Ask Agent
- Date Posted
- 2026-01-29
Utilities & Restrictions
Utilities
- Electricity
- Ask Agent
- Water
- Ask Agent
- Heating
- Ask Agent
- Broadband
- Ask Agent
- Sewerage
- Ask Agent
Rights & Restrictions
- Public Rights of Way
- Ask Agent
- Private Rights of Way
- Ask Agent
- Listed Property
- Ask Agent
- Restrictions
- Ask Agent
Property Features
- Accessibility
- Ask Agent
- Parking
- Ask Agent
- Garden
- Ask Agent
Important notice: Information, maps and tags on this page are supplied by the advertising agent or generated automatically. LandSale has not verified them. Relying on these details is at your own risk, always carry out independent checks before committing to a purchase.
LandSale full disclaimer
Marketing information only - not formal particulars. The details on this website are provided for general guidance and do not constitute an offer or contract. Neither LandSale nor the advertising estate/land agent accepts responsibility for any inaccuracy.
1. Source of information
- Agent-supplied content: Core description, asking price, tenure, measurements, photographs and planning history are uploaded by the appointed agent, who remains solely responsible for their accuracy.
- Automated tags & categorisation: Property type, land-use class, acreage bands and similar labels may be applied by machine-learning models. They are intended as a helpful guide only and may not reflect the property's legal status or permitted use.
- Third-party & enriched data layers: Maps, boundary outlines, planning designations, soil reports, broadband coverage and other environmental or location-based insights are licensed from external suppliers. Such data are supplied “as is", may be incomplete or out of date and are subject to change without notice.
2. Verification required
Prospective purchasers must verify critical matters, including but not limited to planning permission, title boundaries, public rights of way, environmental constraints, acreage, services, access and VAT status, through their own inspections, specialist surveys, legal advisers and the selling agent before relying on the information or entering into any contract.
3. No warranty or liability
LandSale gives no warranty, express or implied, as to the accuracy, completeness or fitness for any particular purpose of the information displayed. LandSale shall not be liable for any loss, damage, cost or expense arising directly or indirectly from any use of or reliance on such information, save where liability may not be excluded by law.
4. Updates & feedback
If you believe any detail on this listing is inaccurate, please let us know. We will investigate and, where appropriate, update the listing or notify the agent.
© LandSale | Version 1.2 - January 2026
Listing agent
Hamilton Stiller, Ross-On-Wye
New Address: 55 Broad Street Ross on Wye Herefordshire HR9 7DY
Enquire about this property
Contact Hamilton Stiller, Ross-On-Wye
New Address: 55 Broad Street Ross on Wye Herefordshire HR9 7DY
View agent profile