Rear of 2 Station Cottages, Station Road, Derwydd, Ammanford, Carmarthenshire.
Key Features
- Freehold Individual Building Plot With Detailed Planning Consent
- For a Detached Executive House & Garage
- Highly convenient to Llandeilo, Llandybie & Ammanford
- Planning Application number: E/35803
- Opportunity for a self- build or development project
- Good Sized Plot
- Village Location with countryside surroundings
- Building Control Approval has been received
Description
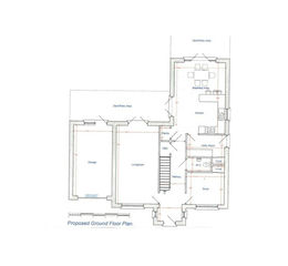
An excellent opportunity to purchase a good sized plot with detailed planning permission for a spacious family home comprising Hall, Study, Cloakroom, Utility Room, Kitchen/Breakfast Room, Lounge and Cloakroom on the ground floor and 4 bedrooms, ensuite and family bathroom at first floor. Externally garden and garage. The accommodation offers comfortable proportioned rooms including patio doors from both the kitchen/breakfast room and lounge with a juliette balcony from the master bedroom.
The plot is conveniently located within the village of Derwydd, providing a peaceful countryside environment while remaining within easy reach of nearby towns and transport links. The setting offers an attractive balance of rural living with accessibilty
The area is a well known tourist destination with popular attractions of Dinefwr, Carreg Cennen and Dryslwyn Castles, Aberglasney Gardens and The Botanical Gardens of Wales are all within a short drive away.
PLANS ARE AVAILABLE AT OUR LLANDEILO OFFICE FOR INSPECTION. Building Control Approval has been received and the development is deemed to have commenced for planning purposes.
CTFDL
Agents Note
Please note that the vendor of this property is related to an employee of Clee Tompkinson & Francis.
Services
Available nearby for connection.
Local Authority
Carmarthenshire County Council, 3 Spilman St, Carmarthen. Tel:
Viewing
By appointment with selling agents on
Property details
- Tenure
- Freehold
- Council Tax Band
- TBC
- Date Posted
- 2026-01-29
Utilities & Restrictions
Utilities
- Electricity
- Ask Agent
- Water
- Ask Agent
- Heating
- Ask Agent
- Broadband
- Ask Agent
- Sewerage
- Ask Agent
Rights & Restrictions
- Public Rights of Way
- Ask Agent
- Private Rights of Way
- Ask Agent
- Listed Property
- Ask Agent
- Restrictions
- Ask Agent
Property Features
- Accessibility
- Ask Agent
- Parking
- Parking Available
- Garden
- Garden
Important notice: Information, maps and tags on this page are supplied by the advertising agent or generated automatically. LandSale has not verified them. Relying on these details is at your own risk, always carry out independent checks before committing to a purchase.
LandSale full disclaimer
Marketing information only - not formal particulars. The details on this website are provided for general guidance and do not constitute an offer or contract. Neither LandSale nor the advertising estate/land agent accepts responsibility for any inaccuracy.
1. Source of information
- Agent-supplied content: Core description, asking price, tenure, measurements, photographs and planning history are uploaded by the appointed agent, who remains solely responsible for their accuracy.
- Automated tags & categorisation: Property type, land-use class, acreage bands and similar labels may be applied by machine-learning models. They are intended as a helpful guide only and may not reflect the property's legal status or permitted use.
- Third-party & enriched data layers: Maps, boundary outlines, planning designations, soil reports, broadband coverage and other environmental or location-based insights are licensed from external suppliers. Such data are supplied “as is", may be incomplete or out of date and are subject to change without notice.
2. Verification required
Prospective purchasers must verify critical matters, including but not limited to planning permission, title boundaries, public rights of way, environmental constraints, acreage, services, access and VAT status, through their own inspections, specialist surveys, legal advisers and the selling agent before relying on the information or entering into any contract.
3. No warranty or liability
LandSale gives no warranty, express or implied, as to the accuracy, completeness or fitness for any particular purpose of the information displayed. LandSale shall not be liable for any loss, damage, cost or expense arising directly or indirectly from any use of or reliance on such information, save where liability may not be excluded by law.
4. Updates & feedback
If you believe any detail on this listing is inaccurate, please let us know. We will investigate and, where appropriate, update the listing or notify the agent.
© LandSale | Version 1.2 - January 2026
Listing agent
Clee Tompkinson & Francis, Llandeilo
111 Rhosmaen Street, Llandeilo, SA19 6EN
Enquire about this property
Contact Clee Tompkinson & Francis, Llandeilo
111 Rhosmaen Street, Llandeilo, SA19 6EN
View agent profile