Lincoln Road, Dunholme
Description
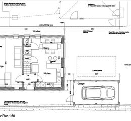
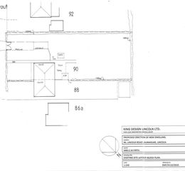
An excellent opportunity to acquire this Residential Building Plot within the ever popular village of Dunholme. Offered for sale with the benefit of Outline Planning Permission for the erection of a proposed Three Bedroom Detached Family Home.
LOCATION The popular village of Dunholme is located to the North of the historic Cathedral and University City of Lincoln. The village, along with the neighbouring village of Welton, offers a good range of amenities including primary and secondary schooling, a Co-op, post office, public houses and leisure facilities. Dunholme is well positioned for access to the A46 and has a direct bus route into Lincoln.
SERVICES All mains services are understood to be available within Lincoln Road. EPC Rating - Not applicable.
DESCRIPTION We are delighted to offer for sale this exceptional Development Opportunity to acquire a Building Plot with Outline Planning Consent for a Three Bedroom Detached House with garage, situated within the popular village of Dunholme near Lincoln. Planning Consent was granted on 20th November 2024 by West Lindsey District Council, Planning Application Number: WL/2024/00954. Further details available upon request.
Property details
- Tenure
- Freehold
- Council Tax Band
- Ask Agent
- Date Posted
- 2026-01-29
Utilities & Restrictions
Utilities
- Electricity
- Ask Agent
- Water
- Ask Agent
- Heating
- Ask Agent
- Broadband
- Ask Agent
- Sewerage
- Ask Agent
Rights & Restrictions
- Public Rights of Way
- Ask Agent
- Private Rights of Way
- Ask Agent
- Listed Property
- Ask Agent
- Restrictions
- Ask Agent
Property Features
- Accessibility
- Ask Agent
- Parking
- Ask Agent
- Garden
- Ask Agent
Important notice: Information, maps and tags on this page are supplied by the advertising agent or generated automatically. LandSale has not verified them. Relying on these details is at your own risk, always carry out independent checks before committing to a purchase.
LandSale full disclaimer
Marketing information only - not formal particulars. The details on this website are provided for general guidance and do not constitute an offer or contract. Neither LandSale nor the advertising estate/land agent accepts responsibility for any inaccuracy.
1. Source of information
- Agent-supplied content: Core description, asking price, tenure, measurements, photographs and planning history are uploaded by the appointed agent, who remains solely responsible for their accuracy.
- Automated tags & categorisation: Property type, land-use class, acreage bands and similar labels may be applied by machine-learning models. They are intended as a helpful guide only and may not reflect the property's legal status or permitted use.
- Third-party & enriched data layers: Maps, boundary outlines, planning designations, soil reports, broadband coverage and other environmental or location-based insights are licensed from external suppliers. Such data are supplied “as is", may be incomplete or out of date and are subject to change without notice.
2. Verification required
Prospective purchasers must verify critical matters, including but not limited to planning permission, title boundaries, public rights of way, environmental constraints, acreage, services, access and VAT status, through their own inspections, specialist surveys, legal advisers and the selling agent before relying on the information or entering into any contract.
3. No warranty or liability
LandSale gives no warranty, express or implied, as to the accuracy, completeness or fitness for any particular purpose of the information displayed. LandSale shall not be liable for any loss, damage, cost or expense arising directly or indirectly from any use of or reliance on such information, save where liability may not be excluded by law.
4. Updates & feedback
If you believe any detail on this listing is inaccurate, please let us know. We will investigate and, where appropriate, update the listing or notify the agent.
© LandSale | Version 1.2 - January 2026
Listing agent
Mundys, Lincoln
29 Silver Street, Lincoln, LN2 1AS
Enquire about this property
Contact Mundys, Lincoln
29 Silver Street, Lincoln, LN2 1AS
View agent profile