Glebe Road, Beith
- Bedrooms
- 3
Key Features
- Investment Opportunity
- Large Plot
- Approved Planning
- Sought after location
- Village
Description
Introducing an exceptional opportunity to invest in a large plot of land situated in the sought-after Glebe Road, Beith KA15. This prime location boasts planning permission for an impressive development comprising of 5x 5 Bedroom Detached Villas and 2X 3 Bedroom Detached Villas. There is an opportunity to change the plans to suit the purchaser.
Description - Introducing an exceptional opportunity to invest in a large plot of land with planning approved, situated in the sought-after Glebe Road, Beith KA15. This prime location boasts planning permission for an impressive development comprising of 5x 5 Bedroom Detached Villas and 4x 3 Bedroom Detached Villas.
Nestled within the charming Garnock Valley in North Ayrshire, the ever-popular town of Beith offers a delightful blend of tranquility and convenience. With excellent transport links to Glasgow, which can be reached within a mere 35-minute drive, this location effortlessly combines the best of both worlds.
This location presents an array of amenities just a stone's throw away. Families will appreciate the proximity to well-regarded schools, ensuring an excellent education for their children. For your everyday needs, a variety of shops are within easy reach, making errands a breeze. Nature enthusiasts will relish the nearby parks, providing serene green spaces to unwind and enjoy leisurely strolls. Additionally, an assortment of bars and restaurants are at your disposal, perfect for socializing with friends.
This exceptional development opportunity is not only a wise investment but also promises to attract a high level of interest upon completion. With the potential to create a stunning collection of homes, this project offers endless possibilities for homeowners and investors alike.
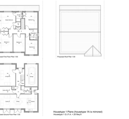
Please see Floorplans for further details. Updated plan overcomes connection to culvert.
Don't miss out on the chance to make your mark in the thriving town of Beith. Contact Oakhouse Premier Sales & Lets today for further information.
Property details
- Tenure
- Freehold
- Council Tax Band
- Ask Agent
- Date Posted
- 2026-01-28
Utilities & Restrictions
Utilities
- Electricity
- Ask Agent
- Water
- Ask Agent
- Heating
- Ask Agent
- Broadband
- Ask Agent
- Sewerage
- Ask Agent
Rights & Restrictions
- Public Rights of Way
- Ask Agent
- Private Rights of Way
- Ask Agent
- Listed Property
- Ask Agent
- Restrictions
- Ask Agent
Property Features
- Accessibility
- Ask Agent
- Parking
- Garage, Driveway
- Garden
- Ask Agent
Important notice: Information, maps and tags on this page are supplied by the advertising agent or generated automatically. LandSale has not verified them. Relying on these details is at your own risk, always carry out independent checks before committing to a purchase.
LandSale full disclaimer
Marketing information only - not formal particulars. The details on this website are provided for general guidance and do not constitute an offer or contract. Neither LandSale nor the advertising estate/land agent accepts responsibility for any inaccuracy.
1. Source of information
- Agent-supplied content: Core description, asking price, tenure, measurements, photographs and planning history are uploaded by the appointed agent, who remains solely responsible for their accuracy.
- Automated tags & categorisation: Property type, land-use class, acreage bands and similar labels may be applied by machine-learning models. They are intended as a helpful guide only and may not reflect the property's legal status or permitted use.
- Third-party & enriched data layers: Maps, boundary outlines, planning designations, soil reports, broadband coverage and other environmental or location-based insights are licensed from external suppliers. Such data are supplied “as is", may be incomplete or out of date and are subject to change without notice.
2. Verification required
Prospective purchasers must verify critical matters, including but not limited to planning permission, title boundaries, public rights of way, environmental constraints, acreage, services, access and VAT status, through their own inspections, specialist surveys, legal advisers and the selling agent before relying on the information or entering into any contract.
3. No warranty or liability
LandSale gives no warranty, express or implied, as to the accuracy, completeness or fitness for any particular purpose of the information displayed. LandSale shall not be liable for any loss, damage, cost or expense arising directly or indirectly from any use of or reliance on such information, save where liability may not be excluded by law.
4. Updates & feedback
If you believe any detail on this listing is inaccurate, please let us know. We will investigate and, where appropriate, update the listing or notify the agent.
© LandSale | Version 1.2 - January 2026
Listing agent
Oakhouse Premier Sales & Lets, Cumnock
38 Townhead Street, Cumnock, KA18 1LD
Enquire about this property
Contact Oakhouse Premier Sales & Lets, Cumnock
38 Townhead Street, Cumnock, KA18 1LD
View agent profile