Former Sorting Office Development, Chulmleigh
- Bedrooms
- 1
- Bathrooms
- 1
Key Features
- Development Opportunity
- To convert to a 1 bed apartment
- Located in Heart of Chulmleigh
- 999 Year Lease
Description
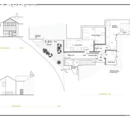
Change of use from commercial Royal Mail Sorting Office to single residence was granted in January 2024 for full conversion.
A development/conversion opportunity to acquire a former Sorting Office with planning consent to convert into a ground floor leasehold town central apartment. A brand new 999 year lease to be granted with a peppercorn ground rent.
Planning Details:-
THE AREA
Chulmleigh is a traditional town with a thriving community, providing an excellent range of everyday amenities including shops, post office, health centre, dentist, pubs and restaurants, a church, a community sports centre and the Chulmleigh Academy Trust with primary schooling and community college.
SERVICES & OUTGOINGS
We understand that the property is connected to mains water, electricity and drainage.
Tenure: Leasehold (999 years)
Property details
- Tenure
- Leasehold
- Council Tax Band
- Ask Agent
- Date Posted
- 2026-01-28
Leasehold Information
- Length of Lease
- 999 years remaining
Utilities & Restrictions
Utilities
- Electricity
- Mains
- Water
- Mains
- Heating
- Ask Agent
- Broadband
- Ask Agent
- Sewerage
- Mains
Rights & Restrictions
- Public Rights of Way
- Ask Agent
- Private Rights of Way
- Ask Agent
- Listed Property
- Ask Agent
- Restrictions
- Ask Agent
Property Features
- Accessibility
- Ask Agent
- Parking
- Ask Agent
- Garden
- Ask Agent
Important notice: Information, maps and tags on this page are supplied by the advertising agent or generated automatically. LandSale has not verified them. Relying on these details is at your own risk, always carry out independent checks before committing to a purchase.
LandSale full disclaimer
Marketing information only - not formal particulars. The details on this website are provided for general guidance and do not constitute an offer or contract. Neither LandSale nor the advertising estate/land agent accepts responsibility for any inaccuracy.
1. Source of information
- Agent-supplied content: Core description, asking price, tenure, measurements, photographs and planning history are uploaded by the appointed agent, who remains solely responsible for their accuracy.
- Automated tags & categorisation: Property type, land-use class, acreage bands and similar labels may be applied by machine-learning models. They are intended as a helpful guide only and may not reflect the property's legal status or permitted use.
- Third-party & enriched data layers: Maps, boundary outlines, planning designations, soil reports, broadband coverage and other environmental or location-based insights are licensed from external suppliers. Such data are supplied “as is", may be incomplete or out of date and are subject to change without notice.
2. Verification required
Prospective purchasers must verify critical matters, including but not limited to planning permission, title boundaries, public rights of way, environmental constraints, acreage, services, access and VAT status, through their own inspections, specialist surveys, legal advisers and the selling agent before relying on the information or entering into any contract.
3. No warranty or liability
LandSale gives no warranty, express or implied, as to the accuracy, completeness or fitness for any particular purpose of the information displayed. LandSale shall not be liable for any loss, damage, cost or expense arising directly or indirectly from any use of or reliance on such information, save where liability may not be excluded by law.
4. Updates & feedback
If you believe any detail on this listing is inaccurate, please let us know. We will investigate and, where appropriate, update the listing or notify the agent.
© LandSale | Version 1.2 - January 2026
Listing agent
Michael Adey Property, South Molton
106 East Street, South Molton, EX36 3DB
Enquire about this property
Contact Michael Adey Property, South Molton
106 East Street, South Molton, EX36 3DB
View agent profile