Helston Road, Germoe
Key Features
- BUILDING PLOT
- PLANNING CONSENT FOR A FOUR BEDROOM DETACHED DWELLING
- SUPERB LOCATION CLOSE TO PRAA SANDS
- EXCELLENT OPPORTUNITY FOR DEVELOPERS OR A CHANCE TO CREATE YOUR DREAM HOME
- COUNCIL TAX BAND NOT YET ALLOCATED
Description
A fantastic opportunity for developers and self build clients alike this generous plot comes with full
planning permission to construct a substantial four bedroom detached home. Situated close to Praa Sands with its long stretch of sandy beach and also offering excellent access to the nearby
countryside as well as the major towns of Penzance and Helston as well as nearby Porthleven. Opportunities such as this in this location are a rare find! View the full details on the
online planning register under reference PA22/06941.
LOCATION
Praa Sands is situated approximately midway between the towns of Helston and Penzance. It is
famous for its long sandy beach which is a favourite of both tourists and locals alike. The
amenities in the village include a public house with restaurant as well as a beachside cafe and bar. There is a well regarded primary school at Germoe, a short distance from the property. The nearby market towns of Helston and Penzance provide more comprehensive amenities including national stores, restaurants and leisure centres with indoor swimming pools along with secondary schools and colleges. Penzance also benefits from mainline rail links to London Paddington and beyond from its train station.
DRAWINGS PLANS AND IMAGES
Any images, plans and photographs are for identification purposes only and can be subject to
change. Prospective purchasers are advised to visit the plot to satisfy themselves prior to purchase. Stock shots provided to give a feel for the surrounding area.
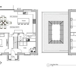
PLANNING CONSENT
Full planning can be viewed on the online planning register under reference PA22/06941. Plans provide for a generous dwelling with the ground floor to offer accommodation including an open plan kitchen/dining room, a separate lounge study and cloakroom and utility. The first floor provides for four double bedrooms with a family bathroom and master en-suite.
AGENTS NOTE
Please note the plan on our marketing differs slightly from the plan on the online planning register. The plan on our marketing correctly denotes the area of land for sale that will be conveyed. We understand from the planning consultant that the purchaser can continue to build the property as per the plans but if they wished to construct a garage this would need to be re-sited and a variation of condition would need to be applied for with Cornwall County Council Planning Department.
MOBILE AND BROADBAND
For more information on mobile and broadband services please see attached property brochure.
SERVICES
The plot is un-serviced - it will be the buyers responsibility to arrange for connection of services.
PROOF OF FINANCE - PURCHASERS
Prior to agreeing a sale, we will require proof of financial ability to purchase which will include an
agreement in principle for a mortgage and/or proof of cash funds.
Property details
- Tenure
- Freehold
- Council Tax Band
- Ask Agent
- Date Posted
- 2026-01-29
Utilities & Restrictions
Utilities
- Electricity
- Ask Agent
- Water
- Ask Agent
- Heating
- Ask Agent
- Broadband
- Ask Agent
- Sewerage
- Ask Agent
Rights & Restrictions
- Public Rights of Way
- Ask Agent
- Private Rights of Way
- Ask Agent
- Listed Property
- Ask Agent
- Restrictions
- Ask Agent
Property Features
- Accessibility
- Ask Agent
- Parking
- Parking Available
- Garden
- Ask Agent
Important notice: Information, maps and tags on this page are supplied by the advertising agent or generated automatically. LandSale has not verified them. Relying on these details is at your own risk, always carry out independent checks before committing to a purchase.
LandSale full disclaimer
Marketing information only - not formal particulars. The details on this website are provided for general guidance and do not constitute an offer or contract. Neither LandSale nor the advertising estate/land agent accepts responsibility for any inaccuracy.
1. Source of information
- Agent-supplied content: Core description, asking price, tenure, measurements, photographs and planning history are uploaded by the appointed agent, who remains solely responsible for their accuracy.
- Automated tags & categorisation: Property type, land-use class, acreage bands and similar labels may be applied by machine-learning models. They are intended as a helpful guide only and may not reflect the property's legal status or permitted use.
- Third-party & enriched data layers: Maps, boundary outlines, planning designations, soil reports, broadband coverage and other environmental or location-based insights are licensed from external suppliers. Such data are supplied “as is", may be incomplete or out of date and are subject to change without notice.
2. Verification required
Prospective purchasers must verify critical matters, including but not limited to planning permission, title boundaries, public rights of way, environmental constraints, acreage, services, access and VAT status, through their own inspections, specialist surveys, legal advisers and the selling agent before relying on the information or entering into any contract.
3. No warranty or liability
LandSale gives no warranty, express or implied, as to the accuracy, completeness or fitness for any particular purpose of the information displayed. LandSale shall not be liable for any loss, damage, cost or expense arising directly or indirectly from any use of or reliance on such information, save where liability may not be excluded by law.
4. Updates & feedback
If you believe any detail on this listing is inaccurate, please let us know. We will investigate and, where appropriate, update the listing or notify the agent.
© LandSale | Version 1.2 - January 2026
Listing agent
Christophers, Helston
5 Wendron Street, Helston, TR13 8PT
Enquire about this property
Contact Christophers, Helston
5 Wendron Street, Helston, TR13 8PT
View agent profile