Gilgarran, Workington
- Bedrooms
- 4
- Bathrooms
- 2
Key Features
- Building Plot
- Full planning permission for 4/5 bed dwelling
- Plot etxends to approx 513 sqm
- Two story build approved, approx 196 sqm
- Foundations laid
- All services readily available to site
- Central village location
- Close proximity to National Park
- Workington, Whitehaven and Cockermouth within 5 to 7 miles
Description
FINAL PLOT AVAILABLE — ACT FAST!
This is your chance to secure the last remaining plot in the charming and highly sought-after village of Gilgarran — and bring your dream home to life.
With full planning permission already granted and foundations laid, you can hit the ground running and save thousands in upfront costs. The approved plans allow for a spacious 4/5-bedroom home, and there’s still flexibility to adapt the design to perfectly suit your lifestyle.
Part exchange considered — contact us today to discuss options!
Opportunities like this are rare. Don’t miss out on building a substantial, bespoke home in one of the area’s most desirable locations. Enquire now and start planning your future.
Gilgarran is a quiet, pretty village surrounded by open countryside and glimpses of Lakeland Fell views and sits between the Cumbrian West Coast towns and the Lake District National Park. Workington, Whitehaven and Cockermouth are between 5 and 7 miles away and here you will find a wide range of local and high street shops, bars and restaurants. Head inland to the east and you come to the National Park with the Lakes of Loweswater and Ennerdale being the most readily accessed.
Great road and rail connections are readily accessible with the A595 and Harrington rail station connecting the area to the rest of Cumbria. There are a couple of primary schools at nearby Dean and Distington, and excellent secondary schools at Cockermouth and Keswick. The highly rated Energy Coast UTC secondary school at Lillyhall is just 2 miles away which specialises in engineering education and training.
The M6 is an accessible 40-minute drive away, and provides direct access to the rest of the country.
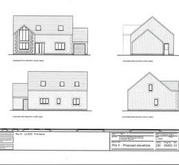
The Plot - Gilgarran Park was the site of a former Shooting Estate until the mid-20th century and the plot backs onto the historic woodlands. Plot 3 extends to approximately 513 sqm with a central village location. Full planning permission is granted for a four/five bedroomed detached property and garden, and with foundations already in place for the creation of a generous 150 sqm of living space. This represents a significant invested cost and it is still possible at this stage to alter the layout of the living space to create for example, a further bedroom or family kitchen/diner should you wish; any alteration to the existing foundations “footprint” could be discussed with the local planning authority with the added benefit of no time constraints on any planning amendments.
With future changes expected for the minimum efficiency levels of UK properties and the additional costs this will bring for house owners, this a great opportunity to build your own, high efficiency new home and invest in a modern home for your future.
Mains water/ wastewater/ electricity/telephone/broadband connection is readily available next to/onsite with the reassurance and cost saving benefit that the vendor owns the village roadway in order to complete straightforward and economical service connections.
The plot fronts on to a well-maintained village roadway with peaceful woodland views to the rear. Further detailed plans and drawings can be made available to prospective buyers.
Planning - Full planning permission is in place as is building regulations approval for the foundation plans dated March 2022.The details can be found on the Copeland /Cumberland Planning Department website using the reference 4/20/2260/0R1
Directions - Approaching from the A595 between Great Clifton and Whitehaven, take the exit at the roundabout next to the Toyota dealership which leads into Distington, then take the left-hand turn after less than half a mile when signposted for Pica and Gilgarran. Follow the road past the crematorium and then travel further up the hill, go past the “Gilgarran” left sign post, past the “Pica” right sign post, and when you see the sign for “Leading to Gilgarran Park” turn left onto this roadway. The plots numbered 3 & 4 are located further along this road and are shortly after the central "roundabout" and are on the left-hand side in an open cleared area with a metal gate.
What3words - remarks.interests.dock
Aml Disclosure - Agents are required by law to conduct Anti-Money Laundering checks on all those buying a property. Hunters charge £30 (including VAT) for an AML check per buyer. This is a non-refundable fee. The charges cover the cost of obtaining relevant data, any manual checks that are required, and ongoing monitoring. This fee is payable in advance prior to the issuing of a memorandum of sale on the property you are seeking to buy.
Property details
- Tenure
- Freehold
- Council Tax Band
- Ask Agent
- Date Posted
- 2026-01-29
Utilities & Restrictions
Utilities
- Electricity
- Ask Agent
- Water
- Ask Agent
- Heating
- Ask Agent
- Broadband
- Ask Agent
- Sewerage
- Ask Agent
Rights & Restrictions
- Public Rights of Way
- Ask Agent
- Private Rights of Way
- Ask Agent
- Listed Property
- Ask Agent
- Restrictions
- Ask Agent
Property Features
- Accessibility
- Ask Agent
- Parking
- Ask Agent
- Garden
- Garden
Important notice: Information, maps and tags on this page are supplied by the advertising agent or generated automatically. LandSale has not verified them. Relying on these details is at your own risk, always carry out independent checks before committing to a purchase.
LandSale full disclaimer
Marketing information only - not formal particulars. The details on this website are provided for general guidance and do not constitute an offer or contract. Neither LandSale nor the advertising estate/land agent accepts responsibility for any inaccuracy.
1. Source of information
- Agent-supplied content: Core description, asking price, tenure, measurements, photographs and planning history are uploaded by the appointed agent, who remains solely responsible for their accuracy.
- Automated tags & categorisation: Property type, land-use class, acreage bands and similar labels may be applied by machine-learning models. They are intended as a helpful guide only and may not reflect the property's legal status or permitted use.
- Third-party & enriched data layers: Maps, boundary outlines, planning designations, soil reports, broadband coverage and other environmental or location-based insights are licensed from external suppliers. Such data are supplied “as is", may be incomplete or out of date and are subject to change without notice.
2. Verification required
Prospective purchasers must verify critical matters, including but not limited to planning permission, title boundaries, public rights of way, environmental constraints, acreage, services, access and VAT status, through their own inspections, specialist surveys, legal advisers and the selling agent before relying on the information or entering into any contract.
3. No warranty or liability
LandSale gives no warranty, express or implied, as to the accuracy, completeness or fitness for any particular purpose of the information displayed. LandSale shall not be liable for any loss, damage, cost or expense arising directly or indirectly from any use of or reliance on such information, save where liability may not be excluded by law.
4. Updates & feedback
If you believe any detail on this listing is inaccurate, please let us know. We will investigate and, where appropriate, update the listing or notify the agent.
© LandSale | Version 1.2 - January 2026
Listing agent
Hunters, Carlisle
56 Warwick Road, Carlisle, Cumbria, CA1 1DR
Enquire about this property
Contact Hunters, Carlisle
56 Warwick Road, Carlisle, Cumbria, CA1 1DR
View agent profile