Malting Lane, Kirby-le-soken
Key Features
- BUILDING PLOT
- PERMISSION FOR 3/4 BEDROOMS
- STUDY/BEDROOM 4
- TWO ENSUITES
- EXISTING WORKSHOP
Description
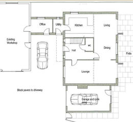
We are pleased to offer this building plot with planning permission for a four-bedroom family home, which also includes the existing workshop/office, situated in the very picturesque semi-rural village of Kirby-le-Soken. The building plot is close to all local amenities including shops, schools, bus and rail services and just a short walk to the very popular Walton Backwaters. For further information please contact ROUSE ESTATE AGENTS – . PREVIOUS PLANNING NUMBER 21/01804/FUL
* BUILDING PLOT
* PERMISSION FOR 3/4 BEDROOMS
* STUDY/BEDROOM 4
* TWO EN SUITES
* EXISTING WORKSHOP
Money Laundering Regulations 2017 - Rouse Estate Agents are required by law to conduct anti-money laundering checks on all clients selling and prospective purchasers buying a property. Whilst we retain responsibility for ensuring checks and any ongoing monitoring are carried out correctly, the initial checks are carried out on our behalf by Lifetime Legal. The cost of these checks is £48 (incl. VAT), which covers the cost of obtaining relevant data and any manual checks and monitoring which might be required. This fee will need to be paid by you in advance of us publishing your property (in the case of a vendor) or issuing a memorandum of sale (in the case of a buyer), directly to Lifetime Legal, and is non-refundable.
Property details
- Tenure
- Freehold
- Council Tax Band
- Ask Agent
- Date Posted
- 2026-01-29
Utilities & Restrictions
Utilities
- Electricity
- Ask Agent
- Water
- Ask Agent
- Heating
- Ask Agent
- Broadband
- Ask Agent
- Sewerage
- Ask Agent
Rights & Restrictions
- Public Rights of Way
- Ask Agent
- Private Rights of Way
- Ask Agent
- Listed Property
- Ask Agent
- Restrictions
- Ask Agent
Property Features
- Accessibility
- Ask Agent
- Parking
- Ask Agent
- Garden
- Ask Agent
Map Location
Important notice: Information, maps and tags on this page are supplied by the advertising agent or generated automatically. LandSale has not verified them. Relying on these details is at your own risk, always carry out independent checks before committing to a purchase.
LandSale full disclaimer
Marketing information only - not formal particulars. The details on this website are provided for general guidance and do not constitute an offer or contract. Neither LandSale nor the advertising estate/land agent accepts responsibility for any inaccuracy.
1. Source of information
- Agent-supplied content: Core description, asking price, tenure, measurements, photographs and planning history are uploaded by the appointed agent, who remains solely responsible for their accuracy.
- Automated tags & categorisation: Property type, land-use class, acreage bands and similar labels may be applied by machine-learning models. They are intended as a helpful guide only and may not reflect the property's legal status or permitted use.
- Third-party & enriched data layers: Maps, boundary outlines, planning designations, soil reports, broadband coverage and other environmental or location-based insights are licensed from external suppliers. Such data are supplied “as is", may be incomplete or out of date and are subject to change without notice.
2. Verification required
Prospective purchasers must verify critical matters, including but not limited to planning permission, title boundaries, public rights of way, environmental constraints, acreage, services, access and VAT status, through their own inspections, specialist surveys, legal advisers and the selling agent before relying on the information or entering into any contract.
3. No warranty or liability
LandSale gives no warranty, express or implied, as to the accuracy, completeness or fitness for any particular purpose of the information displayed. LandSale shall not be liable for any loss, damage, cost or expense arising directly or indirectly from any use of or reliance on such information, save where liability may not be excluded by law.
4. Updates & feedback
If you believe any detail on this listing is inaccurate, please let us know. We will investigate and, where appropriate, update the listing or notify the agent.
© LandSale | Version 1.2 - January 2026
Listing agent
Rouse Estate Agents, Frinton on Sea
41 Connaught Avenue, Frinton-On-Sea, CO13 9PN
Contact Rouse Estate Agents, Frinton on Sea
41 Connaught Avenue, Frinton-On-Sea, CO13 9PN
View agent profile