Bawtry Road, Doncaster
Description
***GUIDE PRICE £300,000 - £325,000***
BEAUTIFUL POSITION SET BACK OFF BAWTRY ROAD / SITE LIES TO THE REAR OF 103 / LONG DRIVEWAY & GATED ACCESS / FULL PLANNING GRANTED 07/03104/FUL & STILL CURRENT / 4 BEDROOM DETACHED DWELLING WITHIN MATURE GARDENS / VIEWING STRICTLY BY APPOINTMENT VIA SOLE AGENTS //
The building plot is former garden land to the rear of 103 Bawtry Road, it is set well back off the road and is approached via a gated access between 103 & 105. It is a sizeable, level plot which measures approx 18.7m frontage and a 43.6m depth. Full planning permission was granted in 2007 Ref. 07/03104/FUL, and more recent correspondence December 2023 with the City of Doncaster Council confirms this permission is still current.
For more detailed information please contact the sole selling agents horton knights Estate Agents or refer to City of Doncaster Planning Portal.
Location - Bessacarr is a sought after residential district located on the South East side of Doncaster. It enjoys excellent links to the M18 & A1 Motorway networks making ideal for commuters. There are plenty of local amenities nearby including access to Lakeside retail and leisure complex plus within easy reach of Doncaster City Centre.
Agents Notes: - IMAGERY - The artists impression has been produced by AI, and therefore is only a visual idea of how such a property may look. There is no reference to the exact building materials, or finishes. Buyers are asked to refer to the planning permission and Doncaster City Council to seek their own understanding and guidance, prior to agreeing a sale.
TENURE - FREEHOLD.
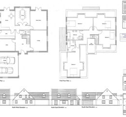
MEASUREMENTS - Please note all measurements are approximate and for guidance purposes only. Therefore please do NOT rely upon them for carpet measurements, furniture and the like. Similarly, the floor plan is designed as a visual reference and is NOT a scale drawing.
PROPERTY PARTICULARS - We endeavour to make our property particulars accurate and reliable, however if there is a point that is especially important to you, please contact ourselves prior to exchange of contracts, so that we may further clarify that point. We DO NOT give any warranty to the suitability of any part, including fixtures and fittings of this property, prospective buyers are kindly asked to take specific advice from their professional advisors.
OPENING HOURS - Monday - Friday 9:00 - 5:30 Saturday 9:00 - 3:00 Sunday
Property details
- Tenure
- Freehold
- Council Tax Band
- Ask Agent
- Date Posted
- 2026-01-29
Utilities & Restrictions
Utilities
- Electricity
- Ask Agent
- Water
- Ask Agent
- Heating
- Ask Agent
- Broadband
- Ask Agent
- Sewerage
- Ask Agent
Rights & Restrictions
- Public Rights of Way
- Ask Agent
- Private Rights of Way
- Ask Agent
- Listed Property
- Ask Agent
- Restrictions
- Ask Agent
Property Features
- Accessibility
- Ask Agent
- Parking
- Parking Available
- Garden
- Garden
Important notice: Information, maps and tags on this page are supplied by the advertising agent or generated automatically. LandSale has not verified them. Relying on these details is at your own risk, always carry out independent checks before committing to a purchase.
LandSale full disclaimer
Marketing information only - not formal particulars. The details on this website are provided for general guidance and do not constitute an offer or contract. Neither LandSale nor the advertising estate/land agent accepts responsibility for any inaccuracy.
1. Source of information
- Agent-supplied content: Core description, asking price, tenure, measurements, photographs and planning history are uploaded by the appointed agent, who remains solely responsible for their accuracy.
- Automated tags & categorisation: Property type, land-use class, acreage bands and similar labels may be applied by machine-learning models. They are intended as a helpful guide only and may not reflect the property's legal status or permitted use.
- Third-party & enriched data layers: Maps, boundary outlines, planning designations, soil reports, broadband coverage and other environmental or location-based insights are licensed from external suppliers. Such data are supplied “as is", may be incomplete or out of date and are subject to change without notice.
2. Verification required
Prospective purchasers must verify critical matters, including but not limited to planning permission, title boundaries, public rights of way, environmental constraints, acreage, services, access and VAT status, through their own inspections, specialist surveys, legal advisers and the selling agent before relying on the information or entering into any contract.
3. No warranty or liability
LandSale gives no warranty, express or implied, as to the accuracy, completeness or fitness for any particular purpose of the information displayed. LandSale shall not be liable for any loss, damage, cost or expense arising directly or indirectly from any use of or reliance on such information, save where liability may not be excluded by law.
4. Updates & feedback
If you believe any detail on this listing is inaccurate, please let us know. We will investigate and, where appropriate, update the listing or notify the agent.
© LandSale | Version 1.2 - January 2026
Listing agent
Horton Knights, Doncaster
39-45 Printing Office Street, Doncaster, DN1 1TP
Enquire about this property
Contact Horton Knights, Doncaster
39-45 Printing Office Street, Doncaster, DN1 1TP
View agent profile