Old Road, BRAUNSTON, Northamptonshire, NN11
- Land size
- 0.25 acres
Key Features
- Building Plot
- Four Bed Executive Home
- Plot Purchase Only
- Plot Purchase and Build Option
- No 'CIL' Payment Requirement
- Enquire For Further Details
Description
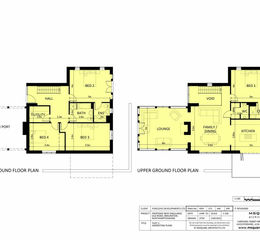
Located in the HIGHLY DESIRABLE Northamptonshire Village of Braunston and close to local amenities and giving easy access to the GRAND UNION CANAL is this BUILDING PLOT on 1/4 OF AN ACRE with PLANNING APPROVED for an EXECUTIVE DETACHED two storey home of 2354 Sq ft/219 Sqm
Designs - The current planning permission is to create a 2 storey property with open plan kitchen/living/dining room, dual aspect lounge, family room, cloakroom, four bedrooms, two ensuites and family bathroom.
Option 1: Plot purchase only
Option 2: Plot purchase and build by Developer if required - Please enquire for further details.
The Plot is not subect to Community Infrastructure Levy.
Planning
Planning Links
Planning Decisions / References Full planning: DA/2015/0072 Decision date: 22nd May 2015 Two amendments: DA/2018/0680 Decision date: 19th November 2018 DA/2018/1075 Decision date: 25th April 2019
Property details
- Tenure
- Freehold
- Council Tax Band
- TBC
- Date Posted
- 2026-01-29
Utilities & Restrictions
Utilities
- Electricity
- Ask Agent
- Water
- Ask Agent
- Heating
- Ask Agent
- Broadband
- Ask Agent
- Sewerage
- Ask Agent
Rights & Restrictions
- Public Rights of Way
- Ask Agent
- Private Rights of Way
- Ask Agent
- Listed Property
- Ask Agent
- Restrictions
- Ask Agent
Property Features
- Accessibility
- Ask Agent
- Parking
- Ask Agent
- Garden
- Ask Agent
Important notice: Information, maps and tags on this page are supplied by the advertising agent or generated automatically. LandSale has not verified them. Relying on these details is at your own risk, always carry out independent checks before committing to a purchase.
LandSale full disclaimer
Marketing information only - not formal particulars. The details on this website are provided for general guidance and do not constitute an offer or contract. Neither LandSale nor the advertising estate/land agent accepts responsibility for any inaccuracy.
1. Source of information
- Agent-supplied content: Core description, asking price, tenure, measurements, photographs and planning history are uploaded by the appointed agent, who remains solely responsible for their accuracy.
- Automated tags & categorisation: Property type, land-use class, acreage bands and similar labels may be applied by machine-learning models. They are intended as a helpful guide only and may not reflect the property's legal status or permitted use.
- Third-party & enriched data layers: Maps, boundary outlines, planning designations, soil reports, broadband coverage and other environmental or location-based insights are licensed from external suppliers. Such data are supplied “as is", may be incomplete or out of date and are subject to change without notice.
2. Verification required
Prospective purchasers must verify critical matters, including but not limited to planning permission, title boundaries, public rights of way, environmental constraints, acreage, services, access and VAT status, through their own inspections, specialist surveys, legal advisers and the selling agent before relying on the information or entering into any contract.
3. No warranty or liability
LandSale gives no warranty, express or implied, as to the accuracy, completeness or fitness for any particular purpose of the information displayed. LandSale shall not be liable for any loss, damage, cost or expense arising directly or indirectly from any use of or reliance on such information, save where liability may not be excluded by law.
4. Updates & feedback
If you believe any detail on this listing is inaccurate, please let us know. We will investigate and, where appropriate, update the listing or notify the agent.
© LandSale | Version 1.2 - January 2026
Listing agent
Laurence Tremayne Estate Agents, Daventry
10-12 Oxford Street, Daventry, NN11 4AD
Enquire about this property
Contact Laurence Tremayne Estate Agents, Daventry
10-12 Oxford Street, Daventry, NN11 4AD
View agent profile