North End, Calne
Key Features
- Approved Planning With Conditions
- Two One Bedroom Apartments
- Open Plan Living
- Bedroom With Fitted Wardrobes
- Private Gardens
- Allocated Parking
- EV Charging Points
- Walking Distance To The Town And Surrounding Amenities.
Description
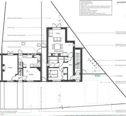
A building plot with approved planning permission with conditions for two new one bedroom apartments. These properties will offer open plan living dining kitchen, one double bedroom, allocated parking and a private garden for each property. There will be a double bedroom with two double built in wardrobes, a bathroom and ample storage. In the ground floor apartment the open plan living dining kitchen has patio doors out to the rear garden, the first floor apartment having it own garden to the side of the properties. The plot also includes allocated parking for both the properties, EV Charging points and solar panels. Application number PL/2025/04025
LOCATION The plot is placed within level walking distance of the town centre and local surrounding amenities.
AREAS CLOSE BY The town of Calne is surrounded by some of the most beautiful countryside Wiltshire has to offer. There are also local historic sites Avebury, Bowood House and the surrounding towns include Marlborough, Devizes with the Caen Hill Locks and canal, Chippenham and Royal Wootten Bassett both providing easy access to the M4.
ADJACENT HOME The plot was formally part of the neighbouring semi detached property.
If you have any questions or require further information do please get in touch.
Property details
- Tenure
- Ask Agent
- Council Tax Band
- Ask Agent
- Date Posted
- 2026-01-29
Utilities & Restrictions
Utilities
- Electricity
- Ask Agent
- Water
- Ask Agent
- Heating
- Ask Agent
- Broadband
- Ask Agent
- Sewerage
- Ask Agent
Rights & Restrictions
- Public Rights of Way
- Ask Agent
- Private Rights of Way
- Ask Agent
- Listed Property
- Ask Agent
- Restrictions
- Ask Agent
Property Features
- Accessibility
- Ask Agent
- Parking
- Parking Available
- Garden
- Garden
Important notice: Information, maps and tags on this page are supplied by the advertising agent or generated automatically. LandSale has not verified them. Relying on these details is at your own risk, always carry out independent checks before committing to a purchase.
LandSale full disclaimer
Marketing information only - not formal particulars. The details on this website are provided for general guidance and do not constitute an offer or contract. Neither LandSale nor the advertising estate/land agent accepts responsibility for any inaccuracy.
1. Source of information
- Agent-supplied content: Core description, asking price, tenure, measurements, photographs and planning history are uploaded by the appointed agent, who remains solely responsible for their accuracy.
- Automated tags & categorisation: Property type, land-use class, acreage bands and similar labels may be applied by machine-learning models. They are intended as a helpful guide only and may not reflect the property's legal status or permitted use.
- Third-party & enriched data layers: Maps, boundary outlines, planning designations, soil reports, broadband coverage and other environmental or location-based insights are licensed from external suppliers. Such data are supplied “as is", may be incomplete or out of date and are subject to change without notice.
2. Verification required
Prospective purchasers must verify critical matters, including but not limited to planning permission, title boundaries, public rights of way, environmental constraints, acreage, services, access and VAT status, through their own inspections, specialist surveys, legal advisers and the selling agent before relying on the information or entering into any contract.
3. No warranty or liability
LandSale gives no warranty, express or implied, as to the accuracy, completeness or fitness for any particular purpose of the information displayed. LandSale shall not be liable for any loss, damage, cost or expense arising directly or indirectly from any use of or reliance on such information, save where liability may not be excluded by law.
4. Updates & feedback
If you believe any detail on this listing is inaccurate, please let us know. We will investigate and, where appropriate, update the listing or notify the agent.
© LandSale | Version 1.2 - January 2026
Listing agent
Charles Faye Estate Agents, Calne
25 High Street, Calne, SN11 0BS
Enquire about this property
Contact Charles Faye Estate Agents, Calne
25 High Street, Calne, SN11 0BS
View agent profile