Ber Street, Norwich, NR1 3EY
- Land size
- 0.11 acres
Key Features
- Implemented Planning Permission for development of five dwellings
- Close to city centre
- Footings dug
Description
CITY CENTRE DEVELOPMENT OPPORTUNITY
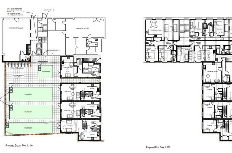
The site has an implemented planning permission ref. 16/01266/F for 'conversion of first floor existing two storey building fronting Ber Street to 3 no. flats. Demolition of warehouse and retail units to rear of site accessed off Scotts Yard with the erection of 5 no. dwellings and associated works. Provision of 1 no. retail units facing on to Ber Street by infilling the warehouse access'.
The three first floor flats have been converted so the site for sale has implemented planning for 5 dwellings as detailed on the attached plans. Units 4 & 5 are 1 bed flats of 50 m sq (538 sq ft) and 38 sq m (409 sq ft) and units 6, 7 & 8 are 2 bed houses of 71 m sq (674 sq ft).
Acreage - 0.108 acres (stms)
The site is situated on Ber Street in the centre of Norwich behind an existing retail and residential frontage. It is rectangular in shape and extends to approximately 0.044 hectares (0.108 acres)
With regard to planning conditions , condition 3 relating to materials, condition 5 relating to landscaping and 10 relating to energy efficiency have been approved and condition 6 relation to archaeology have been discharged.
The CIL has been paid on the development.
Strictly by appointment with the sole selling agent.
No. 113-119 Ber Street will be seen around halfway up Ber Street heading out of Norwich from Rose Lane on the right-hand side. There are time limited parking spaces on Ber Street. A Brown&Co LLP for sale board will be up at the property.
AGENT'S NOTES:
(1) The photographs shown in this brochure have been taken with a camera using a wide angle lens and therefore interested parties are advised to check the measurements prior to arranging a viewing.
(2) Intending buyers will be asked to produce original Identity Documentation and Proof of Address before solicitors are instructed.
CITY CENTRE DEVELOPMENT OPPORTUNITY
Property details
- Tenure
- Ask Agent
- Council Tax Band
- Ask Agent
- Date Posted
- 2026-01-28
Utilities & Restrictions
Utilities
- Electricity
- Ask Agent
- Water
- Ask Agent
- Heating
- Ask Agent
- Broadband
- Ask Agent
- Sewerage
- Ask Agent
Rights & Restrictions
- Public Rights of Way
- Ask Agent
- Private Rights of Way
- Ask Agent
- Listed Property
- Ask Agent
- Restrictions
- Ask Agent
Property Features
- Accessibility
- Ask Agent
- Parking
- Parking Available
- Garden
- Garden
Important notice: Information, maps and tags on this page are supplied by the advertising agent or generated automatically. LandSale has not verified them. Relying on these details is at your own risk, always carry out independent checks before committing to a purchase.
LandSale full disclaimer
Marketing information only - not formal particulars. The details on this website are provided for general guidance and do not constitute an offer or contract. Neither LandSale nor the advertising estate/land agent accepts responsibility for any inaccuracy.
1. Source of information
- Agent-supplied content: Core description, asking price, tenure, measurements, photographs and planning history are uploaded by the appointed agent, who remains solely responsible for their accuracy.
- Automated tags & categorisation: Property type, land-use class, acreage bands and similar labels may be applied by machine-learning models. They are intended as a helpful guide only and may not reflect the property's legal status or permitted use.
- Third-party & enriched data layers: Maps, boundary outlines, planning designations, soil reports, broadband coverage and other environmental or location-based insights are licensed from external suppliers. Such data are supplied “as is", may be incomplete or out of date and are subject to change without notice.
2. Verification required
Prospective purchasers must verify critical matters, including but not limited to planning permission, title boundaries, public rights of way, environmental constraints, acreage, services, access and VAT status, through their own inspections, specialist surveys, legal advisers and the selling agent before relying on the information or entering into any contract.
3. No warranty or liability
LandSale gives no warranty, express or implied, as to the accuracy, completeness or fitness for any particular purpose of the information displayed. LandSale shall not be liable for any loss, damage, cost or expense arising directly or indirectly from any use of or reliance on such information, save where liability may not be excluded by law.
4. Updates & feedback
If you believe any detail on this listing is inaccurate, please let us know. We will investigate and, where appropriate, update the listing or notify the agent.
© LandSale | Version 1.2 - January 2026
Listing agent
Brown & Co, Norwich
The Atrium St. Georges Street, Norwich, NR3 1AB
Enquire about this property
Contact Brown & Co, Norwich
The Atrium St. Georges Street, Norwich, NR3 1AB
View agent profile