Church Lane, Ardingly, RH17
Key Features
- Plot of land
- planning permission for a four bedroom three storey dwelling house
Description
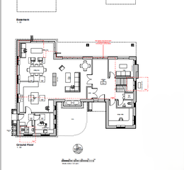
Planning permission granted ref: DM/232282 for a detached four bedroom, three storey dwelling house (plus a basement) together with a detached two storey garage. (Garage below ground level) with home office over. Landscaping, pool and greenhouse.
Outside
Directions: Continue to the very end of Church Lane, Ardingly on to the uneven road, the entrance is on the left
Situation
Set in a stunning and hugely popular location between Ardingly and Lindfield and 3.9 miles from Haywards Heath Station. Ardingly has a village shop and an excellent bakery and Lindfield, in addition to excellent small shops also offers an extensive range of local facilities including a chemist, church, public houses, health centre and a supermarket. A wider range of facilities including a mainline station with fast and regular services to London (Victoria/London Bridge accessible within 45 mins) can be found in Haywards Heath. The M23 is just 8 miles away with access to the M25 and the rest of the motorway network, and airports at Gatwick and Heathrow.
Property Ref Number:
HAM-61433Additional Information
Agents Note: There are restrictive covenants on the land, please contact Hamptons for details.
Property details
- Tenure
- Freehold
- Council Tax Band
- TBC
- Date Posted
- 2026-01-29
Utilities & Restrictions
Utilities
- Electricity
- Ask Agent
- Water
- Ask Agent
- Heating
- Ask Agent
- Broadband
- Ask Agent
- Sewerage
- Ask Agent
Rights & Restrictions
- Public Rights of Way
- Ask Agent
- Private Rights of Way
- Ask Agent
- Listed Property
- Ask Agent
- Restrictions
- Ask Agent
Property Features
- Accessibility
- Ask Agent
- Parking
- Parking Available
- Garden
- Private Garden
Important notice: Information, maps and tags on this page are supplied by the advertising agent or generated automatically. LandSale has not verified them. Relying on these details is at your own risk, always carry out independent checks before committing to a purchase.
LandSale full disclaimer
Marketing information only - not formal particulars. The details on this website are provided for general guidance and do not constitute an offer or contract. Neither LandSale nor the advertising estate/land agent accepts responsibility for any inaccuracy.
1. Source of information
- Agent-supplied content: Core description, asking price, tenure, measurements, photographs and planning history are uploaded by the appointed agent, who remains solely responsible for their accuracy.
- Automated tags & categorisation: Property type, land-use class, acreage bands and similar labels may be applied by machine-learning models. They are intended as a helpful guide only and may not reflect the property's legal status or permitted use.
- Third-party & enriched data layers: Maps, boundary outlines, planning designations, soil reports, broadband coverage and other environmental or location-based insights are licensed from external suppliers. Such data are supplied “as is", may be incomplete or out of date and are subject to change without notice.
2. Verification required
Prospective purchasers must verify critical matters, including but not limited to planning permission, title boundaries, public rights of way, environmental constraints, acreage, services, access and VAT status, through their own inspections, specialist surveys, legal advisers and the selling agent before relying on the information or entering into any contract.
3. No warranty or liability
LandSale gives no warranty, express or implied, as to the accuracy, completeness or fitness for any particular purpose of the information displayed. LandSale shall not be liable for any loss, damage, cost or expense arising directly or indirectly from any use of or reliance on such information, save where liability may not be excluded by law.
4. Updates & feedback
If you believe any detail on this listing is inaccurate, please let us know. We will investigate and, where appropriate, update the listing or notify the agent.
© LandSale | Version 1.2 - January 2026
Listing agent
Hamptons, Haywards Heath
28 The Broadway, Haywards Heath, RH16 3AL
Enquire about this property
Contact Hamptons, Haywards Heath
28 The Broadway, Haywards Heath, RH16 3AL
View agent profile