Botwnnog, Pwllheli LL53
- Bedrooms
- 3
- Bathrooms
- 1
Key Features
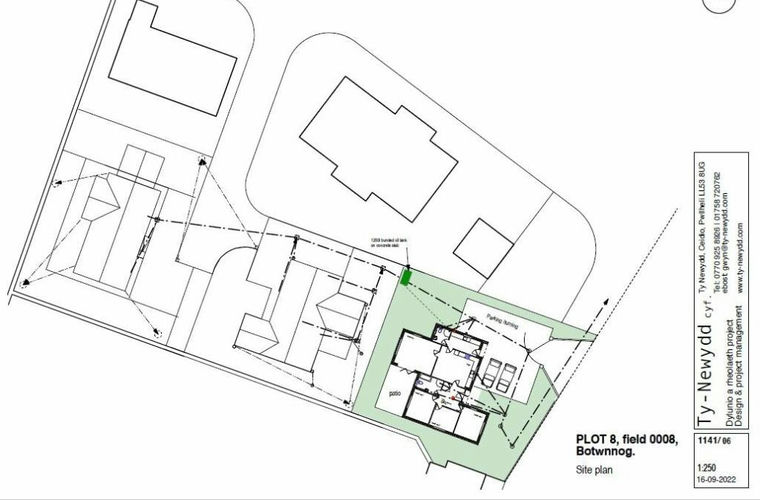
- Chaniatâd cynllunio C22/0635/32/AC am fyngalo 3 llofft
- Lle parcio
- Building plot C22/0635/32/AC
- Lle parcio
- Permission for a 3 bedroom bungalow
Description
CRYNODEB | SUMMARY:
Eisiau adeiladu eich cartref newydd? Efallai mai y plot yma rydych yn edrych am.
Would you like building your new home? This will be a 3 bed detached bungalow conveniently placed for the amenities offered by this village within the heart of the Peninsula.
CROESO | WELCOME:
Serviced building plot - C22/0635/32/AC
Some facilities nearby: The village has primary and secondary schools, health centre/surgery, bus routes plus an enterprise centre Congl Meinciau with café.
Sarn - (about 2 miles) A store, small petrol station with convenience store, family butchers, community centre, 2 public houses and a pottery.
Abersoch (about 6 miles) - A very popular and fashionable seaside resort, golf course, excellent sailing/boating facilities, bistros and more.
Aberdaron (about 8 miles) - Aberdaron is an old whitewashed fishing village and is a very busy place during the summer months. Primary school, bakery, cafes, hotels, beautiful beach, shop and more.
Morfa Nefyn (about 9 miles) - World famous Porthdinllaen - An old fishing village perched on the end of a thin ribbon of land stretching into the Irish Sea, Nefyn & District Golf Club, Siop & Garej Morfa.
Pwllheli (about 9 miles) - Nearest town with fine beaches, sailing academy, marina, train station, bus station, leisure centre and Neuadd Dwyfor which stages a wide range of entertainments including films, touring company productions, opera, drama and ballet. Supermarkets, big named multi purpose shops and an interesting array of smaller independent shops and much, much more.
PERCHNOGAETH | TENURE: Freehold.
TRETH CYNGOR | COUNCIL TAX BAND: Expected to be D - TBC
TYSTYSGRIF YNNI | ENERGY PERFORMANCE CERTIFICATE / SAP: TBC
GWASANAETHAU | SERVICES (NOT TESTED):
We believe that mains water, electric and drainage are connected.
CYFARWYDDIADAU | DIRECTIONS:
From Pwllheli proceed along Yr Ala towards Llanbedrog/Abersoch (A499). In the village of Llanbedrog turn right onto B4413. Stay on this road through Mynytho. In the village of Botwnnog pass the docot's surgery on your right and as you approach a right turning for Ysgol Botwnnog, turn left signposted as a No Through Road. You will find the plot on your right hand side after the cul-de-sac. Map coordinates: 52.848484 -4.585264
Property details
- Tenure
- Freehold
- Council Tax Band
- Ask Agent
- Date Posted
- 2026-01-29
Utilities & Restrictions
Utilities
- Electricity
- Ask Agent
- Water
- Ask Agent
- Heating
- Double Glazing, Oil Heating
- Broadband
- Ask Agent
- Sewerage
- Ask Agent
Rights & Restrictions
- Public Rights of Way
- Ask Agent
- Private Rights of Way
- Ask Agent
- Listed Property
- Ask Agent
- Restrictions
- Ask Agent
Property Features
- Accessibility
- Ask Agent
- Parking
- Ask Agent
- Garden
- Ask Agent
Important notice: Information, maps and tags on this page are supplied by the advertising agent or generated automatically. LandSale has not verified them. Relying on these details is at your own risk, always carry out independent checks before committing to a purchase.
LandSale full disclaimer
Marketing information only - not formal particulars. The details on this website are provided for general guidance and do not constitute an offer or contract. Neither LandSale nor the advertising estate/land agent accepts responsibility for any inaccuracy.
1. Source of information
- Agent-supplied content: Core description, asking price, tenure, measurements, photographs and planning history are uploaded by the appointed agent, who remains solely responsible for their accuracy.
- Automated tags & categorisation: Property type, land-use class, acreage bands and similar labels may be applied by machine-learning models. They are intended as a helpful guide only and may not reflect the property's legal status or permitted use.
- Third-party & enriched data layers: Maps, boundary outlines, planning designations, soil reports, broadband coverage and other environmental or location-based insights are licensed from external suppliers. Such data are supplied “as is", may be incomplete or out of date and are subject to change without notice.
2. Verification required
Prospective purchasers must verify critical matters, including but not limited to planning permission, title boundaries, public rights of way, environmental constraints, acreage, services, access and VAT status, through their own inspections, specialist surveys, legal advisers and the selling agent before relying on the information or entering into any contract.
3. No warranty or liability
LandSale gives no warranty, express or implied, as to the accuracy, completeness or fitness for any particular purpose of the information displayed. LandSale shall not be liable for any loss, damage, cost or expense arising directly or indirectly from any use of or reliance on such information, save where liability may not be excluded by law.
4. Updates & feedback
If you believe any detail on this listing is inaccurate, please let us know. We will investigate and, where appropriate, update the listing or notify the agent.
© LandSale | Version 1.2 - January 2026
Listing agent
Eiddo Susan Jones Properties, Pwllheli
Penbrynhuddig, Abererch, Pwllheli, LL53 6BZ
Enquire about this property
Contact Eiddo Susan Jones Properties, Pwllheli
Penbrynhuddig, Abererch, Pwllheli, LL53 6BZ
View agent profile