Building plot with full planning permission, for a 4 bedroom home
- Bedrooms
- 4
Key Features
- Kings Lynn & West Norfolk – Planning Reference 25/00147/F
- Full Planning Permission Granted For a Detached Four-Bedroom Self/Custom-Build Home
- Shovel-Ready Site Following Demolition of Existing Workshop
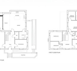
- Contemporary Layout Including Open-Plan Living, Study, and En-Suite Principal Bedroom
- Private Parking and Garden Space Included in Approved Plans
- Self-Build Exemption From Biodiversity Net Gain Requirements
- All key Reports in Place, Including Flood Risk, Ecology, and Noise Assessments
- Existing Workshop Offering Potential Temporary Storage on Site
Description
This is a Prime Self-Build Plot with Full Planning in Terrington St Clement; Ideal for builders or developers seeking a ready-to-go project in West Norfolk
An excellent opportunity to acquire a fully consented building plot in the sought-after village of Terrington St Clement.
With planning permission granted for a stylish four-bedroom detached home, the plot benefits from a generous layout, private garden space, and parking.
The design allows for flexible modern living with open-plan ground floor accommodation and en-suite master bedroom.
Ideal for a self-builder or developer looking for a shovel-ready site, the project falls under self/custom build exemptions.
Located within easy reach of King’s Lynn and local amenities, this is a rare chance to deliver a bespoke home in a popular well-connected setting.
THE AREA
Claimed to be the largest village in the county, Terrington St. Clement backs onto the marshland of West Norfolk, where King John’s crown jewels were said to have been lost back in 1216.
Boasting various shops, two doctors’ surgeries, two pubs, and two excellent schools—one primary and one secondary. The Church of St Clement, known as the Cathedral of the Fens, stands prominently.
There is a half-hourly bus service to the historic market town of King’s Lynn, approximately five miles away, offering a good range of shops and superstores. For keen golfers, courses are available at King’s Lynn, Middleton Tydd St Giles, and slightly further afield are the challenging links courses of Hunstanton and the Royal West Norfolk at Brancaster.
With Cambridge, Peterborough, and Norwich all within an hour’s drive, and a direct rail line to London King’s Cross taking just 1 hour and 40 minutes, King’s Lynn continues to attract a growing number of professionals seeking an easy commuter route. The central location appeals with a selection of high street retailers and independent restaurants in the town’s Vancouver Centre. The Majestic Cinema and King’s Lynn Alive Corn Exchange are popular spots for catching a film or show, while St George’s Guildhall, the UK’s largest surviving medieval guildhall, is now a vibrant arts centre.
LOCATION
What3words:/// cyclones.payback.senses
AGENTS NOTE
Planning permission has been granted for a detached home.
Planning Reference - Planning Reference 25/00147/F (Kings Lynn & West Norfolk)
Three-phase electricity to site
Property details
- Tenure
- Freehold
- Council Tax Band
- C
- Date Posted
- 2026-01-29
Utilities & Restrictions
Utilities
- Electricity
- Ask Agent
- Water
- Ask Agent
- Heating
- Ask Agent
- Broadband
- Ask Agent
- Sewerage
- Ask Agent
Rights & Restrictions
- Public Rights of Way
- Ask Agent
- Private Rights of Way
- Ask Agent
- Listed Property
- Ask Agent
- Restrictions
- Ask Agent
Property Features
- Accessibility
- Ask Agent
- Parking
- Parking Available
- Garden
- Garden
Important notice: Information, maps and tags on this page are supplied by the advertising agent or generated automatically. LandSale has not verified them. Relying on these details is at your own risk, always carry out independent checks before committing to a purchase.
LandSale full disclaimer
Marketing information only - not formal particulars. The details on this website are provided for general guidance and do not constitute an offer or contract. Neither LandSale nor the advertising estate/land agent accepts responsibility for any inaccuracy.
1. Source of information
- Agent-supplied content: Core description, asking price, tenure, measurements, photographs and planning history are uploaded by the appointed agent, who remains solely responsible for their accuracy.
- Automated tags & categorisation: Property type, land-use class, acreage bands and similar labels may be applied by machine-learning models. They are intended as a helpful guide only and may not reflect the property's legal status or permitted use.
- Third-party & enriched data layers: Maps, boundary outlines, planning designations, soil reports, broadband coverage and other environmental or location-based insights are licensed from external suppliers. Such data are supplied “as is", may be incomplete or out of date and are subject to change without notice.
2. Verification required
Prospective purchasers must verify critical matters, including but not limited to planning permission, title boundaries, public rights of way, environmental constraints, acreage, services, access and VAT status, through their own inspections, specialist surveys, legal advisers and the selling agent before relying on the information or entering into any contract.
3. No warranty or liability
LandSale gives no warranty, express or implied, as to the accuracy, completeness or fitness for any particular purpose of the information displayed. LandSale shall not be liable for any loss, damage, cost or expense arising directly or indirectly from any use of or reliance on such information, save where liability may not be excluded by law.
4. Updates & feedback
If you believe any detail on this listing is inaccurate, please let us know. We will investigate and, where appropriate, update the listing or notify the agent.
© LandSale | Version 1.2 - January 2026
Listing agent
Sowerbys, King's Lynn
23 Tuesday Market Place King's Lynn Norfolk PE30 1JJ
Enquire about this property
Contact Sowerbys, King's Lynn
23 Tuesday Market Place King's Lynn Norfolk PE30 1JJ
View agent profile