Queensway, Whitchurch, SY13
Key Features
- Building Plot For Detached House
- Subject To Demolition Of Existing House/Shop
- 2 Reception Rooms & 4 Bedrooms (1 En-Suite)
- Not Overlooked From Rear
- Backs Onto Queensway Playing Fields & Pool
- Convenient For Town Centre Access
Description
Call us 9AM - 9PM -7 days a week, 365 days a year!
Do you have 'Grand Designs' to build your dream home?
If so, this could be the ideal opportunity. It is a generous plot and has planning consent approval (granted 16th August 2024, with conditions) for the demolition of an existing dwelling/store and replacement of a new detached dwelling on site.
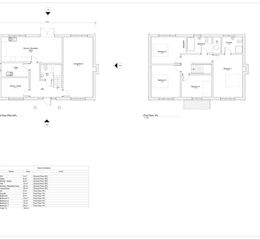
The new house will provide 2 separate reception rooms, plus a spacious kitchen/breakfast room, a downstairs cloakroom/WC and utility room, whilst upstairs there will be 4 bedrooms (1 en-suite) and a family bathroom.
It occupies a good-sized plot and backs onto Queensway playing fields with views over the pond; a bit like an extension of your own garden - delightful! It is well placed for access into Whitchurch with its wide variety of shops, restaurants, pubs, doctors, dentists, sporting amenities, schools, cottage hospital and a railway station.
EPC Rating: D
Planning Permission
PERMISSION subject to the conditions listed below....
The description of development reads as follows: -
Application Number: 24/01946/FUL
Proposal: Demolition of existing dwelling and replacement with new dwelling on site.
Site address: 22 Queensway, Whitchurch, Shropshire, SY13 1HA.
Date of Decision: 16th August 2024
Local Authority
Shropshire Council, Abbey Foregate, Shrewsbury, Shropshire, SY2 6ND
Boundaries, Roads and Fences
The purchaser(s) shall be deemed to have full knowledge of the boundaries and neither the vendor nor the Agent will be responsible for defining the ownership of the boundary fences and hedges.
Wayleaves & Easements
The site will be sold subject to and with the benefit of all wayleaves, easements and rights of way as may exist, whether mentioned in these details or not.
Community Infrastructure Levy (CIL)
The new property may be liable for a (nominal) CIL payment to the Local Authority upon commencement of development. Buyers are advised to seek clarification via Shropshire Council.
Services
We understand that mains water, gas, electricity and drainage are available, but this is to be verified by the purchaser in their enquiries and searches.
Anti-Money Laundering & ID Checks
Once an offer is accepted on a property marketed by Dourish & Day estate agents we are required to complete ID verification checks on all buyers and to apply ongoing monitoring until the transaction ends. Whilst this is the responsibility of Dourish & Day we may use the services of MoveButler or Guild365, to verify Clients’ identity. This is not a credit check and therefore will have no effect on your credit history. You agree for us to complete these checks, and the cost of these checks is £30.00 inc. VAT per buyer. This is paid in advance, when an offer is agreed and prior to a sales memorandum being issued. This charge is non-refundable.
Map Location
Property details
- Tenure
- Freehold
- Council Tax Band
- E
- Date Posted
- 2026-04-23
Utilities & Restrictions
Utilities
- Electricity
- Ask Agent
- Water
- Ask Agent
- Heating
- Ask Agent
- Broadband
- Ask Agent
- Sewerage
- Ask Agent
Rights & Restrictions
- Public Rights of Way
- Ask Agent
- Private Rights of Way
- Ask Agent
- Listed Property
- Ask Agent
- Restrictions
- Ask Agent
Property Features
- Accessibility
- Ask Agent
- Parking
- Ask Agent
- Garden
- Garden
Important notice: Information, maps and tags on this page are supplied by the advertising agent or generated automatically. LandSale has not verified them. Relying on these details is at your own risk, always carry out independent checks before committing to a purchase.
LandSale full disclaimer
Marketing information only - not formal particulars. The details on this website are provided for general guidance and do not constitute an offer or contract. Neither LandSale nor the advertising estate/land agent accepts responsibility for any inaccuracy.
1. Source of information
- Agent-supplied content: Core description, asking price, tenure, measurements, photographs and planning history are uploaded by the appointed agent, who remains solely responsible for their accuracy.
- Automated tags & categorisation: Property type, land-use class, acreage bands and similar labels may be applied by machine-learning models. They are intended as a helpful guide only and may not reflect the property's legal status or permitted use.
- Third-party & enriched data layers: Maps, boundary outlines, planning designations, soil reports, broadband coverage and other environmental or location-based insights are licensed from external suppliers. Such data are supplied “as is", may be incomplete or out of date and are subject to change without notice.
2. Verification required
Prospective purchasers must verify critical matters, including but not limited to planning permission, title boundaries, public rights of way, environmental constraints, acreage, services, access and VAT status, through their own inspections, specialist surveys, legal advisers and the selling agent before relying on the information or entering into any contract.
3. No warranty or liability
LandSale gives no warranty, express or implied, as to the accuracy, completeness or fitness for any particular purpose of the information displayed. LandSale shall not be liable for any loss, damage, cost or expense arising directly or indirectly from any use of or reliance on such information, save where liability may not be excluded by law.
4. Updates & feedback
If you believe any detail on this listing is inaccurate, please let us know. We will investigate and, where appropriate, update the listing or notify the agent.
© LandSale | Version 1.2 - January 2026
Listing agent
Dourish & Day, Whitchurch
23 Green End, Whitchurch, SY13 1AD