School Road, Kelvedon Hatch, Brentwood
Key Features
- Planning Permission Granted
- Detached Family Home
- Sought After Location
Description
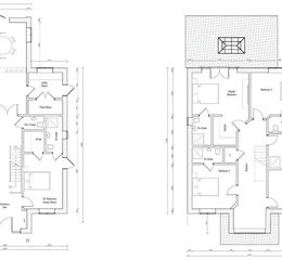
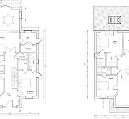
Plot 2 is Nestled in the desirable area of School Road, Kelvedon Hatch, Brentwood, this exceptional plot of land presents a rare opportunity for those looking to invest in a prime location. The land comes with planning permission already granted 25/00420/FUL 'detached two storey dwelling'
Kelvedon Hatch is known for its charming village atmosphere, offering a peaceful retreat while still being conveniently located near essential amenities. The area boasts excellent transport links, providing easy access to nearby towns and cities, making it perfect for families and commuters alike.
This plot of land is not only a sound investment but also a chance to contribute to the community by creating modern family homes in a sought-after location. With the planning permission in place, the groundwork is laid for a project that can cater to the needs of future residents, ensuring a blend of comfort and contemporary living.
Do not miss this unique opportunity to secure a piece of land in a thriving area, where you can bring your vision to life and create homes that will be cherished for years to come.
Map Location
Property details
- Tenure
- Freehold
- Council Tax Band
- Ask Agent
- Date Posted
- 2026-03-17
Utilities & Restrictions
Utilities
- Electricity
- Ask Agent
- Water
- Ask Agent
- Heating
- Ask Agent
- Broadband
- Ask Agent
- Sewerage
- Ask Agent
Rights & Restrictions
- Public Rights of Way
- Ask Agent
- Private Rights of Way
- Ask Agent
- Listed Property
- Ask Agent
- Restrictions
- Ask Agent
Property Features
- Accessibility
- Ask Agent
- Parking
- Ask Agent
- Garden
- Ask Agent
Important notice: Information, maps and tags on this page are supplied by the advertising agent or generated automatically. LandSale has not verified them. Relying on these details is at your own risk, always carry out independent checks before committing to a purchase.
LandSale full disclaimer
Marketing information only - not formal particulars. The details on this website are provided for general guidance and do not constitute an offer or contract. Neither LandSale nor the advertising estate/land agent accepts responsibility for any inaccuracy.
1. Source of information
- Agent-supplied content: Core description, asking price, tenure, measurements, photographs and planning history are uploaded by the appointed agent, who remains solely responsible for their accuracy.
- Automated tags & categorisation: Property type, land-use class, acreage bands and similar labels may be applied by machine-learning models. They are intended as a helpful guide only and may not reflect the property's legal status or permitted use.
- Third-party & enriched data layers: Maps, boundary outlines, planning designations, soil reports, broadband coverage and other environmental or location-based insights are licensed from external suppliers. Such data are supplied “as is", may be incomplete or out of date and are subject to change without notice.
2. Verification required
Prospective purchasers must verify critical matters, including but not limited to planning permission, title boundaries, public rights of way, environmental constraints, acreage, services, access and VAT status, through their own inspections, specialist surveys, legal advisers and the selling agent before relying on the information or entering into any contract.
3. No warranty or liability
LandSale gives no warranty, express or implied, as to the accuracy, completeness or fitness for any particular purpose of the information displayed. LandSale shall not be liable for any loss, damage, cost or expense arising directly or indirectly from any use of or reliance on such information, save where liability may not be excluded by law.
4. Updates & feedback
If you believe any detail on this listing is inaccurate, please let us know. We will investigate and, where appropriate, update the listing or notify the agent.
© LandSale | Version 1.2 - January 2026
Listing agent
Kiln and Lodge Estates, Chelmsford
Saxon House, Vision Offices, 27 Duke Street, Chelmsford, CM1 1HT
Contact Kiln and Lodge Estates, Chelmsford
Saxon House, Vision Offices, 27 Duke Street, Chelmsford, CM1 1HT
View agent profile