Plot for sale, 35 Muir Road, Townhill, KY12 0EG
- Bedrooms
- 4
- Bathrooms
- 2
Key Features
- Garage
- Garden
- No Onward Chain
- Off-street parking
Description
ABBEY FORTH PRESENTS TO MARKET THIS WONDERFUL OPPORTUNITY TO PURCHASE A GENEROUSLY SIZED SEMI-RURAL PLOT TO THE SOUTH-SIDE OF TOWNHILL VILLAGE.
The plot situated at no.35 boasts over 1300 sqm of land with views southwards and the previous dwelling has been demolished and cleared.
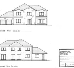
With lapsed planning, which has been approved twice before, the previously successful application gives consent for the development of a 2 storey, 4 bedroom Dwelling House at 35 Muir Road Townhill.
The total site, measuring approximately 1,341m2 offers the potential to be split into 2 separate plots with the larger plot of 845m2 - SUBJECT TO FURTHER INVESTIGATION WITH FIFE PLANNING.
The site previously housed a bungalow, which was demolished in preparation for the new dwelling house. The vast site has been stripped and cleared with all utilities and services capped.
The house was designed to best take advantage of the opportunities provided by the site. It has an appropriate frontage to Muir Road with adequate parking and garden grounds, with a modern feel to the elevation treatment.
The rear of the project has views to Dunfermline and will benefit from solar gains.
The materials proposed on previous successful application are as follows;
Walls - Reclaimed Scottish Sandstone. Smooth White Render. Cedar cladding.
Roof - Scotch Slate, selected to be as close to the local colour as possible.
Windows & Doors -
Roof - Scotch Slate, selected to be as close to the local colour as possible.
Windows & Doors - Composite aluminium/timber.
Referring to previous application - The house will be constructed using a highly thermally efficient and draught free SIPS wall and roof system. This together with generous levels of insulation in the floor slab will ensure that the house comfortably exceeds current 'U' values. In addition to this, the house will incorporate the following technologies;
* Ground source heat pump.
* Solar photovoltaic panels.
* Wind Turbine
* Solar hot water panels.
* Triple glazing.
* Grey water recycling.
KEY INFORMATION
PLOT FOR SALE - New Build Detached Villa
4 Bedrooms, 2 Reception Rooms, 2 Bathroom. Flexible accommodation.
With previously approved planning - Ref. 17/00766/FULL.
Large outdoor space with views.
LOCATION
The property is located on a quiet street to the south side of Townhill Village and is within walking distance of Townhill Loch & Townhill Public Park. Local amenities include a well-renowned primary school, a pub, shops, café, and general store - all within easy reach. There are good connections to Dunfermline city centre and Queen Margaret train station with its regular connections to and from Edinburgh. Dunfermline City-Centre is a 5-10-minute drive from the property and is an ideal commuter base for ease of travelling to north and south of the Forth Bridges by road or rail. The area is hugely popular with families given the broad range of amenities that Dunfermline offers. Edinburgh is easily accessible via the M90 motorway which is less than 10 minutes' drive from the property and the four local railway stations/halts 5-15 minutes' drive. Dunfermline is a highly desirable location given its proximity to Edinburgh and Edinburgh Airport and with easy access to Scotland's motorway network (M90/M8) and for commuters Edinburgh and Gyle Business Centre is easily accessible via Fife Circle train service. The Kingsgate shopping centre offers a range of shops, high street brands including an M&S and leads out to Dunfermline High Street with a further choice of shopping, restaurants and cafes leading down to Bridge Street and beyond. For entertainment, there is Carnegie Leisure Centre as well as Carnegie Hall and Alhambra Theatres. In addition, there is Pittencrieff Park (The Glen) and the Public Park which leads to Dunfermline City train station. Moreover, further entertainment options including cinema complex is situated to the east of Dunfermline at Fife Leisure Park. Dunfermline offers four high schools and a wide selection of primary schooling. There is also Carnegie College Campus to the east of Dunfermline.
VIEWING
By Appointment, contact Abbey Forth Property - Sales Team.
Tenure: Freehold
Property details
- Tenure
- Freehold
- Council Tax Band
- Ask Agent
- Date Posted
- 2026-02-11
Utilities & Restrictions
Utilities
- Electricity
- Ask Agent
- Water
- Ask Agent
- Heating
- Ask Agent
- Broadband
- Ask Agent
- Sewerage
- Ask Agent
Rights & Restrictions
- Public Rights of Way
- Ask Agent
- Private Rights of Way
- Ask Agent
- Listed Property
- Ask Agent
- Restrictions
- Ask Agent
Property Features
- Accessibility
- Ask Agent
- Parking
- Garage, Driveway
- Garden
- Private Garden
Important notice: Information, maps and tags on this page are supplied by the advertising agent or generated automatically. LandSale has not verified them. Relying on these details is at your own risk, always carry out independent checks before committing to a purchase.
LandSale full disclaimer
Marketing information only - not formal particulars. The details on this website are provided for general guidance and do not constitute an offer or contract. Neither LandSale nor the advertising estate/land agent accepts responsibility for any inaccuracy.
1. Source of information
- Agent-supplied content: Core description, asking price, tenure, measurements, photographs and planning history are uploaded by the appointed agent, who remains solely responsible for their accuracy.
- Automated tags & categorisation: Property type, land-use class, acreage bands and similar labels may be applied by machine-learning models. They are intended as a helpful guide only and may not reflect the property's legal status or permitted use.
- Third-party & enriched data layers: Maps, boundary outlines, planning designations, soil reports, broadband coverage and other environmental or location-based insights are licensed from external suppliers. Such data are supplied “as is", may be incomplete or out of date and are subject to change without notice.
2. Verification required
Prospective purchasers must verify critical matters, including but not limited to planning permission, title boundaries, public rights of way, environmental constraints, acreage, services, access and VAT status, through their own inspections, specialist surveys, legal advisers and the selling agent before relying on the information or entering into any contract.
3. No warranty or liability
LandSale gives no warranty, express or implied, as to the accuracy, completeness or fitness for any particular purpose of the information displayed. LandSale shall not be liable for any loss, damage, cost or expense arising directly or indirectly from any use of or reliance on such information, save where liability may not be excluded by law.
4. Updates & feedback
If you believe any detail on this listing is inaccurate, please let us know. We will investigate and, where appropriate, update the listing or notify the agent.
© LandSale | Version 1.2 - January 2026
Listing agent
Abbey Forth Sales & Lettings, Dunfermline
Laich House 5 Castle Court Carnegie Campus Dunfermline KY11 8PB
Enquire about this property
Contact Abbey Forth Sales & Lettings, Dunfermline
Laich House 5 Castle Court Carnegie Campus Dunfermline KY11 8PB
View agent profile