Heronway, Hutton Mount, Brentwood
- Land size
- 0.25 acres
Key Features
- Prime South West Facing 0.25 Acre Plot on Hutton Mount
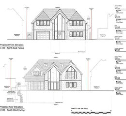
- Full planning permission granted (REF 24/00246/FUL)
- Approved scheme for 4,779 sq ft of high end accommodation arranged over three levels
- Rare opportunity to build a bespoke home in a prestigious setting
- Ideally located 0.9 miles from Shenfield Broadway, mainline station and Crossrail terminus
- Excellent local schooling nearby, including the highly regarded St Martin’s School
Description
A rare opportunity to acquire a prime cleared building plot on Hutton Mount, positioned at the very heart of this prestigious private residential estate. This exceptional 0.25 acre south west facing plot presents a unique chance to construct a substantial luxury home arranged over three levels. Designed by a local architect, full planning permission has been approved (Ref: 24/00246/FUL) for a beautifully proportioned residence extending to approximately 4,779 sq ft. The approved scheme delivers an elegant and contemporary family home, thoughtfully arranged to maximise light, space and modern living. The design includes an impressive basement level featuring a cinema room, gym and bar, creating outstanding accommodation for both family life and entertaining.
Ideally located just 0.9 miles from Shenfield Broadway, the property benefits from convenient access to the mainline railway station and Crossrail (Elizabeth Line) terminus, offering excellent links into London. A range of highly regarded local schools are within easy reach, including the much sought after St Martin’s School.
Set within one of the area’s most exclusive and most desirable residential locations, this is a truly exceptional opportunity to build a landmark home in Hutton Mount.
For more detail, please contact our sales office.
All CGIs are based on the original bespoke designs for the current owner and are for illustrative purposes only
Property details
- Tenure
- Freehold
- Council Tax Band
- Ask Agent
- Date Posted
- 2026-02-04
Utilities & Restrictions
Utilities
- Electricity
- Ask Agent
- Water
- Ask Agent
- Heating
- Ask Agent
- Broadband
- Ask Agent
- Sewerage
- Ask Agent
Rights & Restrictions
- Public Rights of Way
- Ask Agent
- Private Rights of Way
- Ask Agent
- Listed Property
- Ask Agent
- Restrictions
- Ask Agent
Property Features
- Accessibility
- Ask Agent
- Parking
- Ask Agent
- Garden
- Ask Agent
Important notice: Information, maps and tags on this page are supplied by the advertising agent or generated automatically. LandSale has not verified them. Relying on these details is at your own risk, always carry out independent checks before committing to a purchase.
LandSale full disclaimer
Marketing information only - not formal particulars. The details on this website are provided for general guidance and do not constitute an offer or contract. Neither LandSale nor the advertising estate/land agent accepts responsibility for any inaccuracy.
1. Source of information
- Agent-supplied content: Core description, asking price, tenure, measurements, photographs and planning history are uploaded by the appointed agent, who remains solely responsible for their accuracy.
- Automated tags & categorisation: Property type, land-use class, acreage bands and similar labels may be applied by machine-learning models. They are intended as a helpful guide only and may not reflect the property's legal status or permitted use.
- Third-party & enriched data layers: Maps, boundary outlines, planning designations, soil reports, broadband coverage and other environmental or location-based insights are licensed from external suppliers. Such data are supplied “as is", may be incomplete or out of date and are subject to change without notice.
2. Verification required
Prospective purchasers must verify critical matters, including but not limited to planning permission, title boundaries, public rights of way, environmental constraints, acreage, services, access and VAT status, through their own inspections, specialist surveys, legal advisers and the selling agent before relying on the information or entering into any contract.
3. No warranty or liability
LandSale gives no warranty, express or implied, as to the accuracy, completeness or fitness for any particular purpose of the information displayed. LandSale shall not be liable for any loss, damage, cost or expense arising directly or indirectly from any use of or reliance on such information, save where liability may not be excluded by law.
4. Updates & feedback
If you believe any detail on this listing is inaccurate, please let us know. We will investigate and, where appropriate, update the listing or notify the agent.
© LandSale | Version 1.2 - January 2026
Listing agent
Meacock & Jones, Shenfield
106 Hutton Road, Shenfield, Brentwood, CM15 8NQ
Enquire about this property
Contact Meacock & Jones, Shenfield
106 Hutton Road, Shenfield, Brentwood, CM15 8NQ
View agent profile