Land at Foxglove Road, Almondbury
Description
We are thrilled to present an extraordinary opportunity for those with a vision of creating their perfect home. Located in the highly sought-after area of Almondbury, this self-build plot offers the chance to design and construct a truly exceptional property tailored to your unique tastes and requirements.
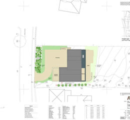
Take the first step towards realising your dream home. An exciting opportunity has arisen to purchase a plot of land in a highly popular location within Almondbury. The proposed plans are for a substantial 4000 sqft property and offer the chance to design and construct a truly exceptional property tailored to your unique tastes and requirements. This is not just a property; it's the opportunity to create your perfect home from the ground up. Make your dream a reality today!
Why Choose a Self-Build?
Customisation: Every aspect of the home, from layout to finishes, can be tailored to suit your lifestyle and preferences.
Quality: Control over the quality of materials and construction ensures a superior build.
Satisfaction: The pride and satisfaction of living in a home that you have helped to design and create are unparalleled.
Act Now – This Opportunity Won't Last!
Opportunities like this in Almondbury are rare and highly coveted. Whether you are an experienced developer or a homeowner looking to create a bespoke residence, this self-build plot offers endless potential.
For more information or to arrange a viewing, please contact us today. Don't miss out on the chance to turn your dream home into a reality in Almondbury's highly popular location.
Additional Information - Planning permission:Application number 2022/62/92372/W passed in November 2023
Tenure: Freehold
What3Words: every.hike.cliff
Agent Notes - 1.MONEY LAUNDERING REGULATIONS: Intending purchasers will be asked to produce identification documentation at a later stage and we would ask for your co-operation in order that there will be no delay in agreeing the sale.
2. General: While we endeavour to make our sales particulars fair, accurate and reliable, they are only a general guide to the property and, accordingly, if there is any point which is of particular importance to you, please contact the office and we will be pleased to check the position for you, especially if you are contemplating travelling some distance to view the property.
3. The measurements indicated are supplied for guidance only and as such must be considered incorrect.
4. Services: Please note we have not tested the services or any of the equipment or appliances in this property, accordingly we strongly advise prospective buyers to commission their own survey or service reports before finalising their offer to purchase.
5. THESE PARTICULARS ARE ISSUED IN GOOD FAITH BUT DO NOT CONSTITUTE REPRESENTATIONS OF FACT OR FORM PART OF ANY OFFER OR CONTRACT. THE MATTERS REFERRED TO IN THESE PARTICULARS SHOULD BE INDEPENDENTLY VERIFIED BY PROSPECTIVE BUYERS OR TENANTS. NEITHER YORKSHIRES FINEST LIMITED NOR ANY OF ITS EMPLOYEES HAS ANY AUTHORITY TO MAKE OR GIVE ANY REPRESENTATION OR WARRANTY WHATEVER IN RELATION TO THIS PROPERTY.
Property details
- Tenure
- Freehold
- Council Tax Band
- Ask Agent
- Date Posted
- 2026-01-31
Utilities & Restrictions
Utilities
- Electricity
- Ask Agent
- Water
- Ask Agent
- Heating
- Ask Agent
- Broadband
- Ask Agent
- Sewerage
- Ask Agent
Rights & Restrictions
- Public Rights of Way
- Ask Agent
- Private Rights of Way
- Ask Agent
- Listed Property
- Ask Agent
- Restrictions
- Ask Agent
Property Features
- Accessibility
- Ask Agent
- Parking
- Ask Agent
- Garden
- Ask Agent
Important notice: Information, maps and tags on this page are supplied by the advertising agent or generated automatically. LandSale has not verified them. Relying on these details is at your own risk, always carry out independent checks before committing to a purchase.
LandSale full disclaimer
Marketing information only - not formal particulars. The details on this website are provided for general guidance and do not constitute an offer or contract. Neither LandSale nor the advertising estate/land agent accepts responsibility for any inaccuracy.
1. Source of information
- Agent-supplied content: Core description, asking price, tenure, measurements, photographs and planning history are uploaded by the appointed agent, who remains solely responsible for their accuracy.
- Automated tags & categorisation: Property type, land-use class, acreage bands and similar labels may be applied by machine-learning models. They are intended as a helpful guide only and may not reflect the property's legal status or permitted use.
- Third-party & enriched data layers: Maps, boundary outlines, planning designations, soil reports, broadband coverage and other environmental or location-based insights are licensed from external suppliers. Such data are supplied “as is", may be incomplete or out of date and are subject to change without notice.
2. Verification required
Prospective purchasers must verify critical matters, including but not limited to planning permission, title boundaries, public rights of way, environmental constraints, acreage, services, access and VAT status, through their own inspections, specialist surveys, legal advisers and the selling agent before relying on the information or entering into any contract.
3. No warranty or liability
LandSale gives no warranty, express or implied, as to the accuracy, completeness or fitness for any particular purpose of the information displayed. LandSale shall not be liable for any loss, damage, cost or expense arising directly or indirectly from any use of or reliance on such information, save where liability may not be excluded by law.
4. Updates & feedback
If you believe any detail on this listing is inaccurate, please let us know. We will investigate and, where appropriate, update the listing or notify the agent.
© LandSale | Version 1.2 - January 2026
Listing agent
Yorkshires Finest, Yorkshire
17 Paul Lane, Flockton Moor, WF4 4BP
Enquire about this property
Contact Yorkshires Finest, Yorkshire
17 Paul Lane, Flockton Moor, WF4 4BP
View agent profile