Robert Street, Milford Haven, Pembrokeshire, SA73
Key Features
- Building opportunity for sale in Milford Haven town centre
- Planning permission conditionally approved: April 2025
- Application reference: 24/1188/PA
- Development plot with permission for a newly built, single-storey, one-bedroom dwelling
- Bungalow-style design
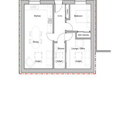
- Proposed accommodation includes:
- Spacious open-plan kitchen and dining area
- Separate lounge (can be used as a second reception room or study)
- Family shower room
- Generous internal and external storage (as shown on plans)
Description
**** BUILDING OPPORTUNITY FOR SALE IN MILFORD HAVEN TOWN CENTRE - PLANNING PERMISSION CONDITIONALLY APPROVED IN APRIL 2025****
Application Reference Number : 24/1188/PA
We are pleased to offer an excellent opportunity to purchase a development plot with condition planning permission for a newly built single-storey, one-bedroom dwelling, ideally located in Milford Haven town centre. Planning permission was approved in April 2025.
The approved plans propose a well-designed bungalow-style home comprising a spacious open-plan kitchen and dining area, along with a separate lounge that could also be utilised as a second reception room or study. The property also benefits from a family shower room, generous internal and external storage as shown on the plans, and off-road parking spaces to the front. With planning there is a large roof space which has been designed to allow for a further two bedrooms.
This is an ideal town-centre opportunity for anyone seeking a low-maintenance, single-level home in a convenient and accessible location.
For further information or to arrange a viewing, please contact us today on .
Property details
- Tenure
- Freehold
- Council Tax Band
- TBC
- Date Posted
- 2026-01-28
Utilities & Restrictions
Utilities
- Electricity
- Ask Agent
- Water
- Ask Agent
- Heating
- Ask Agent
- Broadband
- Ask Agent
- Sewerage
- Ask Agent
Rights & Restrictions
- Public Rights of Way
- Ask Agent
- Private Rights of Way
- Ask Agent
- Listed Property
- Ask Agent
- Restrictions
- Ask Agent
Property Features
- Accessibility
- Ask Agent
- Parking
- Parking Available
- Garden
- Ask Agent
Important notice: Information, maps and tags on this page are supplied by the advertising agent or generated automatically. LandSale has not verified them. Relying on these details is at your own risk, always carry out independent checks before committing to a purchase.
LandSale full disclaimer
Marketing information only - not formal particulars. The details on this website are provided for general guidance and do not constitute an offer or contract. Neither LandSale nor the advertising estate/land agent accepts responsibility for any inaccuracy.
1. Source of information
- Agent-supplied content: Core description, asking price, tenure, measurements, photographs and planning history are uploaded by the appointed agent, who remains solely responsible for their accuracy.
- Automated tags & categorisation: Property type, land-use class, acreage bands and similar labels may be applied by machine-learning models. They are intended as a helpful guide only and may not reflect the property's legal status or permitted use.
- Third-party & enriched data layers: Maps, boundary outlines, planning designations, soil reports, broadband coverage and other environmental or location-based insights are licensed from external suppliers. Such data are supplied “as is", may be incomplete or out of date and are subject to change without notice.
2. Verification required
Prospective purchasers must verify critical matters, including but not limited to planning permission, title boundaries, public rights of way, environmental constraints, acreage, services, access and VAT status, through their own inspections, specialist surveys, legal advisers and the selling agent before relying on the information or entering into any contract.
3. No warranty or liability
LandSale gives no warranty, express or implied, as to the accuracy, completeness or fitness for any particular purpose of the information displayed. LandSale shall not be liable for any loss, damage, cost or expense arising directly or indirectly from any use of or reliance on such information, save where liability may not be excluded by law.
4. Updates & feedback
If you believe any detail on this listing is inaccurate, please let us know. We will investigate and, where appropriate, update the listing or notify the agent.
© LandSale | Version 1.2 - January 2026
Listing agent
FBM, Milford Haven
91 Charles Street, Milford Haven, SA73 2HL
Enquire about this property
Contact FBM, Milford Haven
91 Charles Street, Milford Haven, SA73 2HL
View agent profile