Norton Green, Isle of Wight
Key Features
- IDEAL SELF BUILD OPPORTUNITY
- SERVICED PLOT
- QUIET RURAL HAMLET LOCATION
- PLANNING PERMISSION GRANTED
Description
Nestled within the picturesque hamlet of Norton Green is this good sized, building plot with adjacent services and planning permission to build a four bedroom detached house.
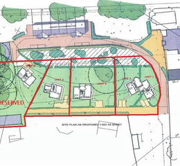
Description - Plot 3, Woodpecker Drive represents an outstanding opportunity for individuals seeking to construct a bespoke residence, thoughtfully designed to accommodate contemporary family living and featuring an elegant combination of materials across its façades. The plot forms part of a select development approved under planning reference 20/00779/FUL (PP-08650316), granting permission for the creation of seven distinctive detached properties. Current planning consent allows for a dwelling of approximately 168 square metres, positioned on the largest plot within the development.
Location - The hamlet of Norton Green, much of which lies within a designated Conservation Area, enjoys a secluded setting approximately one mile from the village of Freshwater, which offers a comprehensive range of shops, services, and amenities. The surrounding area boasts several attractive beaches, extensive protected downland and coastal walks, as well as the SSSI-designated Afton Nature Reserve and the Yar Estuary. Additionally, the harbour town of Yarmouth, with its mainland ferry connections and renowned sailing facilities, is located within a five-minute drive, making this a highly desirable and conveniently situated location.
Viewings - Strictly by appointment with the selling agent Spence Willard
IMPORTANT NOTICE 1. Particulars: These particulars are not an offer or contract, nor part of one. You should not rely on statements by Spence Willard in the particulars or by word of mouth or in writing ("information") as being factually accurate about the property, its condition or its value. Neither Spence Willard nor any joint agent has any authority to make any representations about the property, and accordingly any information given is entirely without responsibility on the part of the agents, seller(s) or lessor(s).2. Photos etc: The photographs show only certain parts of the property as they appeared at the time they were taken. Areas, measurements and distances given are approximate only. 3. Regulations etc: Any reference to alterations to, or use of, any part of the property does not mean that any necessary planning, building regulations or other consent has been obtained. A buyer or lessee must find out by inspection or in other ways that these matters have been properly dealt with and that all information is correct. 4. VAT: The VAT position relating to the property may change without notice.
Property details
- Tenure
- Freehold
- Council Tax Band
- Ask Agent
- Date Posted
- 2026-01-29
Utilities & Restrictions
Utilities
- Electricity
- Ask Agent
- Water
- Ask Agent
- Heating
- Ask Agent
- Broadband
- Ask Agent
- Sewerage
- Ask Agent
Rights & Restrictions
- Public Rights of Way
- Ask Agent
- Private Rights of Way
- Ask Agent
- Listed Property
- Ask Agent
- Restrictions
- Ask Agent
Property Features
- Accessibility
- Ask Agent
- Parking
- Ask Agent
- Garden
- Ask Agent
Important notice: Information, maps and tags on this page are supplied by the advertising agent or generated automatically. LandSale has not verified them. Relying on these details is at your own risk, always carry out independent checks before committing to a purchase.
LandSale full disclaimer
Marketing information only - not formal particulars. The details on this website are provided for general guidance and do not constitute an offer or contract. Neither LandSale nor the advertising estate/land agent accepts responsibility for any inaccuracy.
1. Source of information
- Agent-supplied content: Core description, asking price, tenure, measurements, photographs and planning history are uploaded by the appointed agent, who remains solely responsible for their accuracy.
- Automated tags & categorisation: Property type, land-use class, acreage bands and similar labels may be applied by machine-learning models. They are intended as a helpful guide only and may not reflect the property's legal status or permitted use.
- Third-party & enriched data layers: Maps, boundary outlines, planning designations, soil reports, broadband coverage and other environmental or location-based insights are licensed from external suppliers. Such data are supplied “as is", may be incomplete or out of date and are subject to change without notice.
2. Verification required
Prospective purchasers must verify critical matters, including but not limited to planning permission, title boundaries, public rights of way, environmental constraints, acreage, services, access and VAT status, through their own inspections, specialist surveys, legal advisers and the selling agent before relying on the information or entering into any contract.
3. No warranty or liability
LandSale gives no warranty, express or implied, as to the accuracy, completeness or fitness for any particular purpose of the information displayed. LandSale shall not be liable for any loss, damage, cost or expense arising directly or indirectly from any use of or reliance on such information, save where liability may not be excluded by law.
4. Updates & feedback
If you believe any detail on this listing is inaccurate, please let us know. We will investigate and, where appropriate, update the listing or notify the agent.
© LandSale | Version 1.2 - January 2026
Listing agent
Spence Willard, Freshwater
The Old Bank Tennyson Road Freshwater PO40 9AB
Enquire about this property
Contact Spence Willard, Freshwater
The Old Bank Tennyson Road Freshwater PO40 9AB
View agent profile