Arkley Lane, Arkley, Hertfordshire, EN5
Key Features
- Development Opportunity
- Planning Permission Granted
- To Comprise:
- 6 Bedrooms
- 5 Bathrooms
- 3 Receptions
- Plus Outhouse
- Tranquil Setting
- Further Options Available
Description
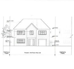
** DEVELOPMENT OPPORTUNITY WITH PLANNING PERMISSION FOR A NEW DETACHED HOUSE PLUS OUTHOUSE **
Planning permission has been granted for a new house incorporating a lift of circa 3,773sqft plus an outhouse. There is also a second option to create a new house of circa 6,244sqft with a basement.
The site is located in the prestigious and sought-after North-London area of Arkley in a private, idyllic and peaceful country lane, (a no-through road), central London can be reached within thirty minutes by car. A number of nearby train stations include Totteridge, Mill Hill and Barnet, also within 5 miles of both the M1 and M25 motorways providing easy access to all of London's airports.
Schools including Haberdasher's Aske's, Mill Hill, Dame Alice, Aldenham, Belmont, Lochinver and Queen Elizabeth's provide top class education in the area. Many schools operate their coach service through Arkley.
Local Authority: Barnet
Band: G
Tenure: Freehold
Property details
- Tenure
- Ask Agent
- Council Tax Band
- G
- Date Posted
- 2026-01-29
Energy Performance Certificate
Energy Efficiency Rating
Based on UK Energy Performance Certificate standards (EU Directive 2002/91/EC)
Utilities & Restrictions
Utilities
- Electricity
- Ask Agent
- Water
- Ask Agent
- Heating
- Ask Agent
- Broadband
- Ask Agent
- Sewerage
- Ask Agent
Rights & Restrictions
- Public Rights of Way
- Ask Agent
- Private Rights of Way
- Ask Agent
- Listed Property
- Ask Agent
- Restrictions
- Ask Agent
Property Features
- Accessibility
- Ask Agent
- Parking
- Ask Agent
- Garden
- Ask Agent
Important notice: Information, maps and tags on this page are supplied by the advertising agent or generated automatically. LandSale has not verified them. Relying on these details is at your own risk, always carry out independent checks before committing to a purchase.
LandSale full disclaimer
Marketing information only - not formal particulars. The details on this website are provided for general guidance and do not constitute an offer or contract. Neither LandSale nor the advertising estate/land agent accepts responsibility for any inaccuracy.
1. Source of information
- Agent-supplied content: Core description, asking price, tenure, measurements, photographs and planning history are uploaded by the appointed agent, who remains solely responsible for their accuracy.
- Automated tags & categorisation: Property type, land-use class, acreage bands and similar labels may be applied by machine-learning models. They are intended as a helpful guide only and may not reflect the property's legal status or permitted use.
- Third-party & enriched data layers: Maps, boundary outlines, planning designations, soil reports, broadband coverage and other environmental or location-based insights are licensed from external suppliers. Such data are supplied “as is", may be incomplete or out of date and are subject to change without notice.
2. Verification required
Prospective purchasers must verify critical matters, including but not limited to planning permission, title boundaries, public rights of way, environmental constraints, acreage, services, access and VAT status, through their own inspections, specialist surveys, legal advisers and the selling agent before relying on the information or entering into any contract.
3. No warranty or liability
LandSale gives no warranty, express or implied, as to the accuracy, completeness or fitness for any particular purpose of the information displayed. LandSale shall not be liable for any loss, damage, cost or expense arising directly or indirectly from any use of or reliance on such information, save where liability may not be excluded by law.
4. Updates & feedback
If you believe any detail on this listing is inaccurate, please let us know. We will investigate and, where appropriate, update the listing or notify the agent.
© LandSale | Version 1.2 - January 2026
Listing agent
Statons New Homes Showcase, Barnet
204 High Street, Hadley Green, EN5 5SZ
Enquire about this property
Contact Statons New Homes Showcase, Barnet
204 High Street, Hadley Green, EN5 5SZ
View agent profile