Sidney Road, Birkenhead, Wirral
- Land size
- 0.21 acres
Key Features
- Development Opportunity
- Formally with full planning permission
- 0.212 Acres
- Cleared land
- Great access to transport links
- Close to Birkenhead town centre
Description
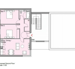
Development Opportunity! A site measuring 0.212 acres, formally with full planning approved for 5 x apartments and associated communal gardens and allocated parking. Located close to Mersey Park, Birkenhead with great transport links to road and train line transport links.
Title: MS352142 (Freehold)
Site Area - 0.212 acres
Planning Permission - APP/22/00514 Erection of part 2/ part 3 storey block to provide 5no. apartments and all associated works.
Approved April 2022 which has since lapsed.
Local Authority - Wirral Borough Council
For further details and additional information; including potential rentals and sale prices please call Karl Tatler Estate Agents, Prenton Office.
Property details
- Tenure
- Ask Agent
- Council Tax Band
- TBC
- Date Posted
- 2026-01-29
Utilities & Restrictions
Utilities
- Electricity
- Ask Agent
- Water
- Ask Agent
- Heating
- Ask Agent
- Broadband
- Ask Agent
- Sewerage
- Ask Agent
Rights & Restrictions
- Public Rights of Way
- Ask Agent
- Private Rights of Way
- Ask Agent
- Listed Property
- Ask Agent
- Restrictions
- Ask Agent
Property Features
- Accessibility
- Ask Agent
- Parking
- Parking Available
- Garden
- Ask Agent
Important notice: Information, maps and tags on this page are supplied by the advertising agent or generated automatically. LandSale has not verified them. Relying on these details is at your own risk, always carry out independent checks before committing to a purchase.
LandSale full disclaimer
Marketing information only - not formal particulars. The details on this website are provided for general guidance and do not constitute an offer or contract. Neither LandSale nor the advertising estate/land agent accepts responsibility for any inaccuracy.
1. Source of information
- Agent-supplied content: Core description, asking price, tenure, measurements, photographs and planning history are uploaded by the appointed agent, who remains solely responsible for their accuracy.
- Automated tags & categorisation: Property type, land-use class, acreage bands and similar labels may be applied by machine-learning models. They are intended as a helpful guide only and may not reflect the property's legal status or permitted use.
- Third-party & enriched data layers: Maps, boundary outlines, planning designations, soil reports, broadband coverage and other environmental or location-based insights are licensed from external suppliers. Such data are supplied “as is", may be incomplete or out of date and are subject to change without notice.
2. Verification required
Prospective purchasers must verify critical matters, including but not limited to planning permission, title boundaries, public rights of way, environmental constraints, acreage, services, access and VAT status, through their own inspections, specialist surveys, legal advisers and the selling agent before relying on the information or entering into any contract.
3. No warranty or liability
LandSale gives no warranty, express or implied, as to the accuracy, completeness or fitness for any particular purpose of the information displayed. LandSale shall not be liable for any loss, damage, cost or expense arising directly or indirectly from any use of or reliance on such information, save where liability may not be excluded by law.
4. Updates & feedback
If you believe any detail on this listing is inaccurate, please let us know. We will investigate and, where appropriate, update the listing or notify the agent.
© LandSale | Version 1.2 - January 2026
Listing agent
Karl Tatler Estate Agents, Prenton
347 Woodchurch Road, Prenton, CH42 8PE
Enquire about this property
Contact Karl Tatler Estate Agents, Prenton
347 Woodchurch Road, Prenton, CH42 8PE
View agent profile