New Build, London Road, Leigh-on-sea,
Description
- New Build Site in Leigh-On-Sea
- 9 Apartments with Planning Permission
- Stunning Penthouse with Wrap-Around Balcony
- Two Commercial Units
- All Apartments Boast Private Balconies
- Allocated Parking Spaces for Apartments and Commercial Units
- Prime Location near Leigh-On-Sea Broadway
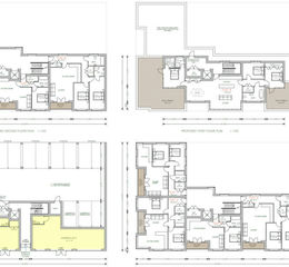
The ground floor hosts two spacious commercial units, Unit 1 spanning 856 sqft and Unit 2 covering 664 sqft, making it the perfect space for businesses to thrive. On the first floor, you'll discover four beautifully designed apartments, ranging from cozy one-bedroom flats to spacious two-bedroom residences. Moving up to the second floor, an additional four apartments await, offering the same variety of comfortable and contemporary living spaces. The crowning jewel of this development is the third-floor penthouse, boasting three bedrooms and a sun terrace, perfect for luxurious living.
**Location Overview:**
Situated in close proximity to Leigh-On-Sea Broadway, this property offers residents not only a beautiful living space but also the convenience of being well-connected. Enjoy easy access to the London Fenchurch Street line, ensuring swift journeys into central London, making it ideal for commuters, also within walking distance to the array of shops, cafes, bars and restaurants that Leigh On Sea has to offer.
- Apartment 1: 790 sqft - Two Bedroom
- Apartment 2: 788 sqft - Two Bedroom
- Apartment 3: 551 sqft - One Bedroom
- Apartment 4: 983 sqft - Two Bedroom
- Apartment 5: 790 sqft - Two Bedroom
- Apartment 6: 814 sqft - Two Bedroom
- Apartment 7: 551 sqft - One Bedroom
- Apartment 8: 983 sqft - Two Bedroom
- Apartment 9 Penthouse: 1237 Sqft - Three Bedroom
Commercial Units -
Unit 1 : 856 sqft
Unit 2 : 664 sqft
Apartments 7486sqft or 695.5m2
Commercial Units 1520 sqft or 141m2
CIL Payment - £66,657.22
Planning Permission - 23/00187/FUL
GDV Pricing Schedule on Request
**Property Overview:**
This remarkable new build site on London Road in Leigh-On-Sea offers an exceptional opportunity for both residential and commercial investors. With nine apartments featuring private balconies and a breathtaking penthouse with a sun terrace, alongside two versatile commercial units, it's a property that stands out in a prime location. Conveniently located near Leigh-On-Sea Broadway and offering easy access to London's Fenchurch Street line, this development combines modern living with accessibility, making it an ideal choice for those seeking both comfort and convenience. Contact us today to explore the potential of this exceptional property.
Property details
- Tenure
- Freehold
- Council Tax Band
- Ask Agent
- Date Posted
- 2026-01-29
Utilities & Restrictions
Utilities
- Electricity
- Ask Agent
- Water
- Ask Agent
- Heating
- Ask Agent
- Broadband
- Ask Agent
- Sewerage
- Ask Agent
Rights & Restrictions
- Public Rights of Way
- Ask Agent
- Private Rights of Way
- Ask Agent
- Listed Property
- Ask Agent
- Restrictions
- Ask Agent
Property Features
- Accessibility
- Ask Agent
- Parking
- Parking Available
- Garden
- Ask Agent
Important notice: Information, maps and tags on this page are supplied by the advertising agent or generated automatically. LandSale has not verified them. Relying on these details is at your own risk, always carry out independent checks before committing to a purchase.
LandSale full disclaimer
Marketing information only - not formal particulars. The details on this website are provided for general guidance and do not constitute an offer or contract. Neither LandSale nor the advertising estate/land agent accepts responsibility for any inaccuracy.
1. Source of information
- Agent-supplied content: Core description, asking price, tenure, measurements, photographs and planning history are uploaded by the appointed agent, who remains solely responsible for their accuracy.
- Automated tags & categorisation: Property type, land-use class, acreage bands and similar labels may be applied by machine-learning models. They are intended as a helpful guide only and may not reflect the property's legal status or permitted use.
- Third-party & enriched data layers: Maps, boundary outlines, planning designations, soil reports, broadband coverage and other environmental or location-based insights are licensed from external suppliers. Such data are supplied “as is", may be incomplete or out of date and are subject to change without notice.
2. Verification required
Prospective purchasers must verify critical matters, including but not limited to planning permission, title boundaries, public rights of way, environmental constraints, acreage, services, access and VAT status, through their own inspections, specialist surveys, legal advisers and the selling agent before relying on the information or entering into any contract.
3. No warranty or liability
LandSale gives no warranty, express or implied, as to the accuracy, completeness or fitness for any particular purpose of the information displayed. LandSale shall not be liable for any loss, damage, cost or expense arising directly or indirectly from any use of or reliance on such information, save where liability may not be excluded by law.
4. Updates & feedback
If you believe any detail on this listing is inaccurate, please let us know. We will investigate and, where appropriate, update the listing or notify the agent.
© LandSale | Version 1.2 - January 2026
Listing agent
Gilbert and Rose Commercial, Essex Commercial
1333-1335 London Road, Leigh-On-Sea, SS9 2AD
Enquire about this property
Contact Gilbert and Rose Commercial, Essex Commercial
1333-1335 London Road, Leigh-On-Sea, SS9 2AD
View agent profile