Northgate, Pinchbeck, PE11 3TA
- Land size
- 1.07 acres
Description
LOCATION
** New Build development - Very pleasant semi-rural setting with field views - Land area approximately 4,349m2 - Additional land available for paddocks- by separate negotiation **
The land and buildings are located at Wisteria Farm, Northgate, approximately 1 mile from Pinchbeck village centre heading towards West Pinchbeck. Pinchbeck offers a good variety of local shops and amenities including Butchers, ´Spar´ shops, Pharmacy, Doctors surgery, Take-aways and Hairdressers, as well as a Primary School, and also lies only 2 miles from Spalding, which then provides further Shopping and leisure facilities, as well as good access to Peterborough, where onward fast train journeys are available to London Kings Cross (within 50 minutes). Spalding Railway Station also connects to Lincoln and Doncaster and beyond to the North.
DESCRIPTION
The site extends to approximately 4,349m2 and includes the entrance roadway and is shown edged red on the attached Promap plan included in these Particulars (for identification purposes only). Wisteria House, which lies adjacent to part of the site, is in separate ownership.
NOTES:
- The purchaser will be responsible for the costs of removing all existing buildings.
- The purchaser will be required to fence the West and North boundaries with Lincolnshire Post and 3 Rail fencing within 3 months of purchase. All hedging must be set 1.5m inside the fenced boundaries, and Trees planted no closer than 5m inside the fenced boundaries.
- A Right of access to the Pumping Station is reserved over the access roadway at all times.
- The vendor will cease to use the existing access upon completion of a sale.
- There are additional parcels of land to the east and west which could be available for sale by separate negotiation - outlined green and blue. A development overage will apply to these areas.
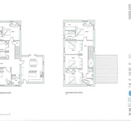
Full Planning Consent was granted by South Holland District Council - Reference No: H14-0810-23 on 6th December 2023, for the buildings to be demolished and the land being developed for 3 detached Executive homes. A copy of the formal Planning Consent is available from the Council´s website - - or is available from the Agent´s Spalding Office. Included in these Particulars is a copy of the plans determined by the Planning Application which show the designs of the properties.
NB : There are a number of pre-commencement conditions attached to the planning applications and the purchaser will be responsible for compliance with these and all costs associated with all planning conditions.
SERVICES
Mains electricity and water are available to the site. However, proposed purchasers must check the availability by making their own enquiries with the relevant Utility providers. Mains drainage is available in Northgate.
TERMS
R. Longstaff & Co LLP, their clients and any joint agents accept no responsibility for any statement that may be made in these particulars. They do not form part of any offer or contract and must not be relied upon as statements or representations of fact. They are not authorised to make or give any representations or warranties in relation to the property either here or elsewhere, either on their own behalf or on behalf of their client(s) or otherwise. All areas, measurements or distances are approximate. All text, photographs and plans are for guidance only and are not necessarily comprehensive. It should not be assumed that the property has all necessary planning, building regulation or other consents, and no guarantee is given for any apparatus, services, equipment, or facilities, being connected nor in working order. Purchasers must satisfy themselves of these by inspection or otherwise.
PLANNING
Full Planning Consent was granted by South Holland District Council - Reference No: H14-0810-23 on 6th December 2023, showing the land developed for three detached houses. A copy of the formal Planning Consent is available from the Council´s website - - or is available from the Agent´s Spalding Office. Included in these Particulars is a copy of the plans determined by the Planning Application which show the designs of the properties.
NB : There are a number of pre-commencement conditions attached to the planning applications and the purchaser will be responsible for compliance with all planning conditions, and for all costs associated thereto.
Any queries in respect of Planning matters should be addressed direct to South Holland District Council - Planning Department - CALL: EMAIL:
OTHER
SERVICES Mains electricity and water are presently connected to the site, however, proposed purchasers must check the availability of services they require by making their own enquiries with the relevant Utility providers. Mains drainage is available in Northgate via a Vacuum pumped mains drainage system, the Pumping Station for which is located adjacent to the entrance of the site.
LOCAL AUTHORITIES Any queries in respect of Planning matters should be addressed direct to South Holland District Council - Planning Department - CALL:
County & Highways: Lincolnshire County Council, County Offices, Newland, Lincoln LN1 1YL
CALL:
Electricity: National Grid - New Supplies - Customer Application Team, Tollend Road, Tipton, DY4 0HH CALL:
Water & Sewerage: Anglian Water Customer Services, PO Box 10642, Harlow, Essex, CM20 9HA CALL:
VIEWING
Viewings are by appointment with a copy of particulars to hand. We make every effort to produce accurate and reliable details but if there are any points you would like to discuss prior to making your inspection, please contact our office. We suggest you contact us to check the availability of this property prior to travelling to the area in any case.
Property details
- Tenure
- Freehold
- Council Tax Band
- Ask Agent
- Date Posted
- 2026-01-29
Utilities & Restrictions
Utilities
- Electricity
- Ask Agent
- Water
- Ask Agent
- Heating
- Ask Agent
- Broadband
- Ask Agent
- Sewerage
- Ask Agent
Rights & Restrictions
- Public Rights of Way
- Ask Agent
- Private Rights of Way
- Ask Agent
- Listed Property
- Ask Agent
- Restrictions
- Ask Agent
Property Features
- Accessibility
- Ask Agent
- Parking
- Ask Agent
- Garden
- Garden
Market Value Analysis
Based on land listings in East Midlands (1+ acres).
Important notice: Information, maps and tags on this page are supplied by the advertising agent or generated automatically. LandSale has not verified them. Relying on these details is at your own risk, always carry out independent checks before committing to a purchase.
LandSale full disclaimer
Marketing information only - not formal particulars. The details on this website are provided for general guidance and do not constitute an offer or contract. Neither LandSale nor the advertising estate/land agent accepts responsibility for any inaccuracy.
1. Source of information
- Agent-supplied content: Core description, asking price, tenure, measurements, photographs and planning history are uploaded by the appointed agent, who remains solely responsible for their accuracy.
- Automated tags & categorisation: Property type, land-use class, acreage bands and similar labels may be applied by machine-learning models. They are intended as a helpful guide only and may not reflect the property's legal status or permitted use.
- Third-party & enriched data layers: Maps, boundary outlines, planning designations, soil reports, broadband coverage and other environmental or location-based insights are licensed from external suppliers. Such data are supplied “as is", may be incomplete or out of date and are subject to change without notice.
2. Verification required
Prospective purchasers must verify critical matters, including but not limited to planning permission, title boundaries, public rights of way, environmental constraints, acreage, services, access and VAT status, through their own inspections, specialist surveys, legal advisers and the selling agent before relying on the information or entering into any contract.
3. No warranty or liability
LandSale gives no warranty, express or implied, as to the accuracy, completeness or fitness for any particular purpose of the information displayed. LandSale shall not be liable for any loss, damage, cost or expense arising directly or indirectly from any use of or reliance on such information, save where liability may not be excluded by law.
4. Updates & feedback
If you believe any detail on this listing is inaccurate, please let us know. We will investigate and, where appropriate, update the listing or notify the agent.
© LandSale | Version 1.2 - January 2026
Listing agent
Longstaff Chartered Surveyors, Spalding
5 New Road, Spalding, PE11 1BS
Enquire about this property
Contact Longstaff Chartered Surveyors, Spalding
5 New Road, Spalding, PE11 1BS
View agent profile