Derby Road, Stanley, DE7
- Bedrooms
- 3
Key Features
- Good-sized building plot with stunning open countryside views
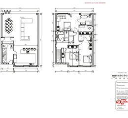
- Planning permission obtained for a three bedroom detached home ERE/0625/0010
- Rural village location
- Central to Nottingham and Derby
- Great transport links
- Perfect countryside walks right on your doorstep
Description
- A fantastic opportunity to acquire a good-sized building plot in rural village location, with planning permission for a three bedroom detached home with ample parking for multiple cars with stunning open views to the rear.
Location - The plot is situated in this desirable Derbyshire village location, yet remaining within easy reach of nearby amenities and transport links, including Ilkeston train station, also fantastic neighbouring towns and villages including West Hallam, Morley, Breadsall and Oakwood to name a few . There is also easy access to the nearby cities of Nottingham and Derby which provide a wide variety of both national and independent retailers. The property is situated within easy reach of fantastic nearby walks and open countryside, making this an ideal family property. Within the village itself, there is also easy access to popular nearby schooling and children's play park.
Services - We believe services are within the vicinity, however interested parties should make their own enquiries.
Planning Permission - The site has planning permission, granted by Erewash borough council for a three bedroom detached home with ample parking area for multiple cars.
Permission granted Ref; ERE/0625/0010
All copies are available upon request, or via the Local Planning Authority website.
Tenure And Possession - The land is sold freehold, with vacant possession upon completion.
Viewing - The land may be viewed at any reasonable time when in possession of a copy of these particulars. Please park carefully.
Method Of Sale - This property is to be sold by private treaty.
Disclaimer
In accordance with current legal requirements, all prospective purchasers are required to undergo an Anti-Money Laundering (AML) check. An administration fee of £40 per property will apply. This fee is payable after an offer has been accepted and must be settled before a memorandum of sale can be issued.
Property details
- Tenure
- Freehold
- Council Tax Band
- Ask Agent
- Date Posted
- 2026-01-29
Utilities & Restrictions
Utilities
- Electricity
- Ask Agent
- Water
- Ask Agent
- Heating
- Ask Agent
- Broadband
- Ask Agent
- Sewerage
- Ask Agent
Rights & Restrictions
- Public Rights of Way
- Ask Agent
- Private Rights of Way
- Ask Agent
- Listed Property
- Ask Agent
- Restrictions
- Ask Agent
Property Features
- Accessibility
- Ask Agent
- Parking
- Parking Available
- Garden
- Ask Agent
Important notice: Information, maps and tags on this page are supplied by the advertising agent or generated automatically. LandSale has not verified them. Relying on these details is at your own risk, always carry out independent checks before committing to a purchase.
LandSale full disclaimer
Marketing information only - not formal particulars. The details on this website are provided for general guidance and do not constitute an offer or contract. Neither LandSale nor the advertising estate/land agent accepts responsibility for any inaccuracy.
1. Source of information
- Agent-supplied content: Core description, asking price, tenure, measurements, photographs and planning history are uploaded by the appointed agent, who remains solely responsible for their accuracy.
- Automated tags & categorisation: Property type, land-use class, acreage bands and similar labels may be applied by machine-learning models. They are intended as a helpful guide only and may not reflect the property's legal status or permitted use.
- Third-party & enriched data layers: Maps, boundary outlines, planning designations, soil reports, broadband coverage and other environmental or location-based insights are licensed from external suppliers. Such data are supplied “as is", may be incomplete or out of date and are subject to change without notice.
2. Verification required
Prospective purchasers must verify critical matters, including but not limited to planning permission, title boundaries, public rights of way, environmental constraints, acreage, services, access and VAT status, through their own inspections, specialist surveys, legal advisers and the selling agent before relying on the information or entering into any contract.
3. No warranty or liability
LandSale gives no warranty, express or implied, as to the accuracy, completeness or fitness for any particular purpose of the information displayed. LandSale shall not be liable for any loss, damage, cost or expense arising directly or indirectly from any use of or reliance on such information, save where liability may not be excluded by law.
4. Updates & feedback
If you believe any detail on this listing is inaccurate, please let us know. We will investigate and, where appropriate, update the listing or notify the agent.
© LandSale | Version 1.2 - January 2026
Listing agent
Hortons, National
11 Brook Park Offices, Gaddesby Lane, Rearsby, LE7 4ZB
Enquire about this property
Contact Hortons, National
11 Brook Park Offices, Gaddesby Lane, Rearsby, LE7 4ZB
View agent profile