The Woodlands, Whitchurch, BS14
Key Features
- 950.76m2 Plot
- Planning Permission
- 5 Bed Detached House
- Orchard Views
- Quiet Location
- Development Opportunity
Description
CJ Hole are delighted to offer for sale Plot B The Woodlands, presenting a rare opportunity to acquire an individual building plot set within a desirable and well-established residential location, ideal for those seeking to create a bespoke home.
A fantastic opportunity to acquire a substantial plot of approximately 950.76m², positioned between two neighbouring plots of equal size. Quietly tucked away from busy roads, this attractive setting offers a wonderful sense of privacy while still being within easy reach of local amenities and nearby towns.
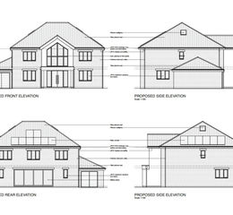
Full planning permission has already been granted for a large five-bedroom detached family home featuring a triple driveway, garage, and a spacious rear garden, allowing a buyer to move straight ahead with an impressive build. The proposed layout offers generous living areas and ample outdoor space, ideal for a growing family or those seeking a bespoke forever home.
Full plans can be found under planning application reference: 25/03390/VAR .
To the rear, the site enjoys a beautiful outlook across an orchard and open fields where horses and donkeys graze, providing a lovely rural backdrop and a genuine sense of countryside living. The peaceful position and natural surroundings create a rare lifestyle opportunity that feels both secluded and scenic.
An exceptional chance to create a substantial property in a quiet, established location with planning already in place, ready for someone’s vision to become reality.
Located in a quiet, rural area on the outskirts of Whitchurch, this plot is situated approximately 10 miles from Bath and 4 miles from Bristol City Centre. There is easy access to both cities with Bristol and Bath road only being a short distance away. Whitchurch has a number of local amenities such as shops, pubs, a supermarket, Sports Centre and Primary Schools, perfect for a growing family.
Property details
- Tenure
- Freehold
- Council Tax Band
- TBC
- Date Posted
- 2026-01-29
Utilities & Restrictions
Utilities
- Electricity
- Ask Agent
- Water
- Ask Agent
- Heating
- Ask Agent
- Broadband
- Ask Agent
- Sewerage
- Ask Agent
Rights & Restrictions
- Public Rights of Way
- Ask Agent
- Private Rights of Way
- Ask Agent
- Listed Property
- Ask Agent
- Restrictions
- Ask Agent
Property Features
- Accessibility
- Ask Agent
- Parking
- Parking Available
- Garden
- Garden
Important notice: Information, maps and tags on this page are supplied by the advertising agent or generated automatically. LandSale has not verified them. Relying on these details is at your own risk, always carry out independent checks before committing to a purchase.
LandSale full disclaimer
Marketing information only - not formal particulars. The details on this website are provided for general guidance and do not constitute an offer or contract. Neither LandSale nor the advertising estate/land agent accepts responsibility for any inaccuracy.
1. Source of information
- Agent-supplied content: Core description, asking price, tenure, measurements, photographs and planning history are uploaded by the appointed agent, who remains solely responsible for their accuracy.
- Automated tags & categorisation: Property type, land-use class, acreage bands and similar labels may be applied by machine-learning models. They are intended as a helpful guide only and may not reflect the property's legal status or permitted use.
- Third-party & enriched data layers: Maps, boundary outlines, planning designations, soil reports, broadband coverage and other environmental or location-based insights are licensed from external suppliers. Such data are supplied “as is", may be incomplete or out of date and are subject to change without notice.
2. Verification required
Prospective purchasers must verify critical matters, including but not limited to planning permission, title boundaries, public rights of way, environmental constraints, acreage, services, access and VAT status, through their own inspections, specialist surveys, legal advisers and the selling agent before relying on the information or entering into any contract.
3. No warranty or liability
LandSale gives no warranty, express or implied, as to the accuracy, completeness or fitness for any particular purpose of the information displayed. LandSale shall not be liable for any loss, damage, cost or expense arising directly or indirectly from any use of or reliance on such information, save where liability may not be excluded by law.
4. Updates & feedback
If you believe any detail on this listing is inaccurate, please let us know. We will investigate and, where appropriate, update the listing or notify the agent.
© LandSale | Version 1.2 - January 2026
Listing agent
CJ Hole, Brislington
46 Sandy Park Road, Brislington, Bristol, BS4 3PF
Enquire about this property
Contact CJ Hole, Brislington
46 Sandy Park Road, Brislington, Bristol, BS4 3PF
View agent profile