The Dairy Barn, Manor Farm, Wilshaw, Holmfirth
- Bedrooms
- 5
- Bathrooms
- 3
Key Features
- Farmyard development
Description
NOW WITH A BENEFIT OF A GARGAE AND IT’S OWN ACCESS THIS PROPERTY IS SET IN A DELIGHTFUL VILLAGE LOCATION AND FARMYARD DEVELOPMENT OF PARTICULARLY HIGH STANDARD. THIS FIVE BEDROOMED THREE STORY BARN HAS A HUGE AMOUNT OF ACCOMMODATION THAT MIGHT NOT FIRST BE ESTABLISHED AT A GLANCE, HOWEVER, WHEN VIEWED THE SUBSTANTIAL ACCOMMODATION AND THE HIGH QUALITY OF THE CONVERSION, IT WILL BECOME APPARENT. THERE ARE ENCLOSED LAWN GARDENS TO THE FRONT AND ENCLOSED COURTYARD GARDENS TO THE REAR, WITH GARAGE AND DRIVEWAY PARKING.
This home briefly comprises an impressive entrance hall, downstairs w.c., lounge, family room / home office, impressive dining kitchen with glazed doors out to gardens, utility room. With four bedrooms, bedroom one with en-suite, Bedroom two with en-suite and dressing room, bedrooms three and four, served by a Jack and Jill en-suite, Bedroom five to the top floor level acting as a second sitting room / hobby space. All in this wonderful rural location, Dairy Barn must be viewed to be fully appreciated and understood, as indeed is the setting.
EPC Rating: D
ENTRANCE HALL
The timber glazed door gives access through to the entrance hallway. This entrance hallway has beautiful timber bordered effect floor. The hallway is particularly impressive, having a very high ceiling height up to the very top of the. Ceiling height at the upper level there is a chandelier point and a beautiful staircase with oak and glazed balustrading. There is a useful under stair storage cupboard and a doorway gives access through to the downstairs w.c.
DOWNSTAIRS W.C
This has a low level w.c. and stylish wash hand basin, obscure glazed window and the inset spotlighting to the ceiling.
LOUNGE (3.96m x 6.48m)
Doorway leads through to the lounge. This, as the photograph suggests, is a particularly impressive room. It has windows to the front and rear, providing a good amount of natural light, and a particularly pleasant view out over the property’s gardens to the front, courtesy of a large barn door window, which is of an enormous size. The room has two ceiling light points and under floor heating, which is to be found throughout the ground floor of the property. From the lounge a doorway leads through to the Family room / Home Office.
FAMILY ROOM / HOME OFFICE (2.44m x 6.48m)
This, once again, is of a good size as a chandelier point, provision for wall mounted television, display plinth and broad and particularly tall window once again giving a lovely outlook over the property’s lawned gardens.
DINING / KITCHEN (4.17m x 5.87m)
This large and impressive room once again has windows to both the front and rear, twin windows overlook the property’s lawn gardens, and there are two glazed doors that lead out to the enclosed courtyard style garden. The dining kitchen is fitted with a wealth of units, these being at both the high and low level, have a fabulous amount of quartz working surface and this quartz working surface extends to form a breakfast bar with seating for approximately four. There is a stylish ceramic one-and-a-half bowl sink unit with stylish mixer tap over. There is an integrated dishwasher, integrated wine fridge, integrated Induction hob with splash back and glazed and stainless-steel extractor found above. There's also a wine storage, integrated double ovens and integrated fridge and freezer. The kitchen also has inset spotlighting to the ceiling, chandelier point above the breakfast bar, provision for wall mounted television and as a continuation of the very attractive flooring.
UTILITY ROOM
The utility room has units at a low level, providing storage space, plumbing for automatic washing machine, working surface stainless steel sink unit. It is also home to the property’s hot water tank and gas fired central heating boiler.
LANDING
This has windows providing a good amount of natural light and inset spotlighting to the ceiling. It also features the staircase rising to the top floor, landing, details of which are to follow.
BEDROOM ONE (4.14m x 5.87m)
A large double bedroom with window giving a pleasant outlook to the front provision for wall mounted television, inset spotlighting to the ceiling, attractive door similar to be found throughout the property gives access through to the en-suite.
EN-SUITE (1.88m x 3.05m)
The en-suite is fitted with a three-piece suite in white comprises pedestal wash hand basin, low level w.c. panelled bath with high quality chrome fittings, particularly to the shower above with glazed screen. Combination central heating radiator / heated towel rail in chrome, shaver point, obscure glazed window, extractor fan and inset spotlighting to the ceiling, ceramic tiled flooring and ceramic tiling to the full ceiling height.
BEDROOM THREE (2.84m x 5.92m)
This good-sized room once again has a pleasant outlook to the front, two ceiling light points and has provision for a wall mounted television. It also has a doorway giving access to an en-suite. This en-suite is shared with bedroom four.
EN-SUITE TO BEDROOM THREE & FOUR
The en-suite is beautifully fitted out as the photograph suggests, and the floor layout plan indicates its size. It has ceramic tile flooring, tiling to the half-height and full height around the large shower. There is a low level w.c., vanity unit with wash hand basin and mixer tap, inset spotlighting, combination central heating radiator / heated towel in chrome and extractor fan.
BEDROOM FOUR
Bedroom four is a pleasant room with twin windows giving a pleasant outlet to the front and having two ceiling light points.
LANDING
A staircase once again with oak handrail and glazing gives access up to the top floor landing. Here a doorway leads through to bedroom two.
BEDROOM TWO (3.96m x 5.87m)
With a dressing room and en-suite, this bedroom could be considered as the principal bedroom if so desired. It has provision for wall mounted television, inset spotlighting to the high and angled ceiling, three Velux windows provide a good amount of natural light and a broad opening leads to the dressing room area.
DRESSING ROOM (2.82m x 3.15m)
Once again with Velux window, inset spotlighting and from here a doorway leads through to the en-suite.
EN-SUITE BEDROOM TWO (2.62m x 2.82m)
This is a particularly good size and has ceramic tiling to the half height and full height around the shower area itself. The shower is of a good size and fitted with chrome fittings, there is a low level w.c., vanity unit with wash hand basin and mixer tap over, combination central heating, radiator, heated towel rail, inset spotlight, extractor fan and shaver socket.
BEDROOM FIVE / SECOND SITTING ROOM (4.14m x 5.79m)
The bedroom across the landing is bedroom five / Second sitting room. This once again, is a very large, versatile room which has provision for wall mounted television. It will make an ideal cinema room /games room / home office or indeed, whatever people may decide. There is inset spotlighting to the high angled ceiling, two Velux windows, and all is presented to a high standard.
ADDITIONAL INFORMATION
The properly has gas fired, central heating, external lighting, underfloor heating to the ground floor level. It has been subject to a full renovation and conversion scheme of high quality of local builders of high repute. The property has double glazing. Carpets, curtains and certain other extras may be available by separate negotiation.
Garden
Externally the property forms part of the delightful Manor Farm development, this development is a much-admired project of conversion and new build in years to come. The barns are in a delightful courtyard and have a further courtyard that provides a good amount of parking, turning and visitor parking space. Dairy Barn has two allocated parking spaces, and the pedestrian pathway gives access to the enclosed gardens to the front. These gardens to the front are lawned and have a delightful pathway giving access to the entrance door to the rear. As the photograph suggests, there is a further courtyard style garden with high attractive stone walling and this with gravelled surface is a particularly safe outdoor space.
Parking - Allocated parking
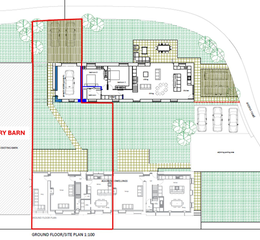
Dairy Barn has two allocated parking spaces along with a garage that is currently being applied for planning. Please see plan to demonstrate it's location.
Property details
- Tenure
- Freehold
- Council Tax Band
- Ask Agent
- Date Posted
- 2026-01-29
Energy Performance Certificate
Energy Efficiency Rating
Based on UK Energy Performance Certificate standards (EU Directive 2002/91/EC)
Utilities & Restrictions
Utilities
- Electricity
- Ask Agent
- Water
- Ask Agent
- Heating
- Ask Agent
- Broadband
- Ask Agent
- Sewerage
- Ask Agent
Rights & Restrictions
- Public Rights of Way
- Ask Agent
- Private Rights of Way
- Ask Agent
- Listed Property
- Ask Agent
- Restrictions
- Ask Agent
Property Features
- Accessibility
- Ask Agent
- Parking
- Off-Street Parking
- Garden
- Private Garden
Important notice: Information, maps and tags on this page are supplied by the advertising agent or generated automatically. LandSale has not verified them. Relying on these details is at your own risk, always carry out independent checks before committing to a purchase.
LandSale full disclaimer
Marketing information only - not formal particulars. The details on this website are provided for general guidance and do not constitute an offer or contract. Neither LandSale nor the advertising estate/land agent accepts responsibility for any inaccuracy.
1. Source of information
- Agent-supplied content: Core description, asking price, tenure, measurements, photographs and planning history are uploaded by the appointed agent, who remains solely responsible for their accuracy.
- Automated tags & categorisation: Property type, land-use class, acreage bands and similar labels may be applied by machine-learning models. They are intended as a helpful guide only and may not reflect the property's legal status or permitted use.
- Third-party & enriched data layers: Maps, boundary outlines, planning designations, soil reports, broadband coverage and other environmental or location-based insights are licensed from external suppliers. Such data are supplied “as is", may be incomplete or out of date and are subject to change without notice.
2. Verification required
Prospective purchasers must verify critical matters, including but not limited to planning permission, title boundaries, public rights of way, environmental constraints, acreage, services, access and VAT status, through their own inspections, specialist surveys, legal advisers and the selling agent before relying on the information or entering into any contract.
3. No warranty or liability
LandSale gives no warranty, express or implied, as to the accuracy, completeness or fitness for any particular purpose of the information displayed. LandSale shall not be liable for any loss, damage, cost or expense arising directly or indirectly from any use of or reliance on such information, save where liability may not be excluded by law.
4. Updates & feedback
If you believe any detail on this listing is inaccurate, please let us know. We will investigate and, where appropriate, update the listing or notify the agent.
© LandSale | Version 1.2 - January 2026
Listing agent
Simon Blyth, Holmfirth
Fairfield House 29 Hollowgate, Holmfirth, HD9 2DG
Enquire about this property
Contact Simon Blyth, Holmfirth
Fairfield House 29 Hollowgate, Holmfirth, HD9 2DG
View agent profile