Burwash Road, Heathfield, East Sussex, TN21
Description
GUIDE PRICE £500,000 TO £600,000
WD/2022/0067/F
PP-10518560_F - Planning Portal reference
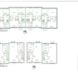
MAIN SPECIFICATIONS: ATTENTION PROPERTY DEVELOPERS * A RESIDENTIAL DEVELOPMENT SITE IN THE PROCESS OF OBTAINING PLANING PERMISSION POSSIBLY FOR 4 TERRACED THREE BEDROOMED HOUSES * EACH UNIT OF APPROXIMATELY 1000 SQUARE FEET * PRELIMINARY DESIGN SHOWS PARKING FOR NUMEROUS CARS AND REAR GARDENS.
DESCRIPTION: A potential residential development site for 4 terraced three bedroomed houses presently in the process of going for planning permission.
The houses are to be of an attractive Sussex style design and are to currently have parking set out in front of the development. Behind they are to have gardens.
Internally, these attractive currently submitted plans show the accommodation to comprise of an entrance hall, cloakroom, a kitchen, an open plan sitting room / dining room, a landing with three bedrooms leading off. The main bedroom one is to have an ensuite shower room, with the other two bedrooms benefitting from a family bathroom / shower room.
SITUATION: The development site currently being submitted for planning is known as the Heathfield Car Wash Site Burwash Road Heathfield.
INTERESTED PARTIES WHO WISH TO EXPRESS AN INTEREST TO OFFER PRIOR TO PLANNING POSSIBLY BEING APPROVED:
Early interest is recommended to be put forward to us the agent subject on a subject to planning basis in relation to the current planning in submission.
However, this is not to say that the existing site could also be purchased with its current use and planning. Although, we must make it clear the guide price would not be altering should a buyer be interested to acquire the site as it is.
AGENTS NOTE: Please note that these details have been prepared as a general guide and do not form part of a contract. We have not carried out a detailed survey, nor tested the services, appliances and specific fittings. Room sizes are approximate and should not be relied upon. Any verbal statements or information given about this property, again, should not be relied on and should not form part of a contract or agreement to purchase.
VIEWING STRICTLY BY APPOINTMENT WITH THE AGENT NEVILLE AND NEVILLE
Property details
- Tenure
- Freehold
- Council Tax Band
- TBC
- Date Posted
- 2026-01-29
Utilities & Restrictions
Utilities
- Electricity
- Ask Agent
- Water
- Ask Agent
- Heating
- Ask Agent
- Broadband
- Ask Agent
- Sewerage
- Ask Agent
Rights & Restrictions
- Public Rights of Way
- Ask Agent
- Private Rights of Way
- Ask Agent
- Listed Property
- Ask Agent
- Restrictions
- Ask Agent
Property Features
- Accessibility
- Ask Agent
- Parking
- Parking Available
- Garden
- Garden
Important notice: Information, maps and tags on this page are supplied by the advertising agent or generated automatically. LandSale has not verified them. Relying on these details is at your own risk, always carry out independent checks before committing to a purchase.
LandSale full disclaimer
Marketing information only - not formal particulars. The details on this website are provided for general guidance and do not constitute an offer or contract. Neither LandSale nor the advertising estate/land agent accepts responsibility for any inaccuracy.
1. Source of information
- Agent-supplied content: Core description, asking price, tenure, measurements, photographs and planning history are uploaded by the appointed agent, who remains solely responsible for their accuracy.
- Automated tags & categorisation: Property type, land-use class, acreage bands and similar labels may be applied by machine-learning models. They are intended as a helpful guide only and may not reflect the property's legal status or permitted use.
- Third-party & enriched data layers: Maps, boundary outlines, planning designations, soil reports, broadband coverage and other environmental or location-based insights are licensed from external suppliers. Such data are supplied “as is", may be incomplete or out of date and are subject to change without notice.
2. Verification required
Prospective purchasers must verify critical matters, including but not limited to planning permission, title boundaries, public rights of way, environmental constraints, acreage, services, access and VAT status, through their own inspections, specialist surveys, legal advisers and the selling agent before relying on the information or entering into any contract.
3. No warranty or liability
LandSale gives no warranty, express or implied, as to the accuracy, completeness or fitness for any particular purpose of the information displayed. LandSale shall not be liable for any loss, damage, cost or expense arising directly or indirectly from any use of or reliance on such information, save where liability may not be excluded by law.
4. Updates & feedback
If you believe any detail on this listing is inaccurate, please let us know. We will investigate and, where appropriate, update the listing or notify the agent.
© LandSale | Version 1.2 - January 2026
Listing agent
Neville & Neville Estate Agents, Cowbeech
Forge Meadow Hammer Lane, Cowbeech, BN27 4JL
Enquire about this property
Contact Neville & Neville Estate Agents, Cowbeech
Forge Meadow Hammer Lane, Cowbeech, BN27 4JL
View agent profile