Booth Lane, Moston, Sandbach, CW11 3PY
Key Features
- Freehold Development Land
- Situated in Moston, Sanbach
- Surrounded by a Wealth of New Housing
- Full Planning for 11 no houses
- Cheshire East Planning Ref: 25/0240/FUL
- Idyllic and Affluent Location
- 1 no 2 Bedroom & 1 no 3 Bedroom Cottages
- 7 no 3 Bedroom Dwellings
- 2 no 2 Bedroom Dwellings
Description
Yew Tree Farm presents an exceptional freehold residential development opportunity located in the highly sought-after and affluent village of Moston, Sandbach. The site benefits from full planning permission (Cheshire East Planning Reference: 25/0240/FUL) for the construction of 11 high-quality dwellings, comprising:
Conversion of a Grade II Listed Building into:
- One two-bedroom cottage
- One three-bedroom cottage
New build dwellings including:
- Seven three-bedroom houses
- Two two-bedroom houses
This thoughtfully designed scheme sympathetically integrates modern new-build housing with the sensitive restoration of a charming listed building, creating a distinctive and characterful development in an idyllic semi-rural location.
The surrounding area is characterised by established residential development and open countryside, offering an attractive setting for families and professionals alike.
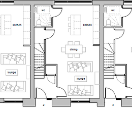
The scheme in detail provides:
Plots 1-3:
A row of 3 bedroom houses to include ground floor open plan living with bi-fold doors leading out to the gardens providing kitchen, diner, living room and w/c. At first floor are 2 bedrooms, family bathroom and master with en-suite.
Plots 4-6:
A row of 2 x 2 bedroom houses and 1 x 3 bedroom house to include:
Plot 4 & 5 - Ground floor open plan living with patio doors leading out to the gardens providing kitchen, diner, living room and w/c. At first floor is a double bedroom, family bathroom and master with en-suite.
Plot 6- Ground floor open plan living with bi-fold doors leading out to the gardens providing kitchen, diner, living room and w/c. At first floor are 2 bedrooms, family bathroom and master with en-suite.
Plots 7-9:
A row of 3 bedroom houses to include:
Plot 7 - Ground floor open plan living with bi-fold doors leading out to the gardens providing kitchen, diner, living room and w/c. At first floor is bedroom 1 & master leading to a jack and jill master bathroom. The loft offers bedroom 3 with en-suite.
Plot 8 & 9 - Ground floor open plan living with bi-fold doors leading out to the gardens providing kitchen, diner, living room and w/c. At first floor are 2 bedrooms, family bathroom and master with en-suite.
Yew Tree Farm House - Ground floor provides open plan living with bi-fold doors leading out to the gardens providing kitchen, diner, living room and w/c. At first floor is bedroom 1, family bathroom and master with en-suite. At second floor is bedroom 3 with a snug.
Yew Tree Cottage - Ground floor provides kitchen, open plan living room / diner, bedroom 1 and shower room. At first floor is the master bedroom with en-suite.
Situated on Booth Lane in Moston, Yew Tree Farm enjoys an enviable position within the wider Sandbach area of Cheshire East. Sandbach is renowned for its historic charm, vibrant market town atmosphere and excellent connectivity.
- Transport Links: The site offers convenient access to major road networks, including the M6 (Junction 17), providing direct routes to Manchester, Liverpool, and Birmingham. Sandbach railway station offers regular services to Crewe and Manchester.
- Local Amenities: The area is well-served by an array of local shops, highly regarded schools, leisure facilities, and nearby open countryside, providing an appealing blend of town and rural living.
- Affluent Surroundings: The development is positioned within a thriving residential area that has seen significant growth, surrounded by other successful housing schemes which underpin the location"s desirability and demand.
Property details
- Tenure
- Freehold
- Council Tax Band
- TBC
- Date Posted
- 2026-01-29
Utilities & Restrictions
Utilities
- Electricity
- Ask Agent
- Water
- Ask Agent
- Heating
- Ask Agent
- Broadband
- Ask Agent
- Sewerage
- Ask Agent
Rights & Restrictions
- Public Rights of Way
- Ask Agent
- Private Rights of Way
- Ask Agent
- Listed Property
- Ask Agent
- Restrictions
- Ask Agent
Property Features
- Accessibility
- Ask Agent
- Parking
- Ask Agent
- Garden
- Garden
Important notice: Information, maps and tags on this page are supplied by the advertising agent or generated automatically. LandSale has not verified them. Relying on these details is at your own risk, always carry out independent checks before committing to a purchase.
LandSale full disclaimer
Marketing information only - not formal particulars. The details on this website are provided for general guidance and do not constitute an offer or contract. Neither LandSale nor the advertising estate/land agent accepts responsibility for any inaccuracy.
1. Source of information
- Agent-supplied content: Core description, asking price, tenure, measurements, photographs and planning history are uploaded by the appointed agent, who remains solely responsible for their accuracy.
- Automated tags & categorisation: Property type, land-use class, acreage bands and similar labels may be applied by machine-learning models. They are intended as a helpful guide only and may not reflect the property's legal status or permitted use.
- Third-party & enriched data layers: Maps, boundary outlines, planning designations, soil reports, broadband coverage and other environmental or location-based insights are licensed from external suppliers. Such data are supplied “as is", may be incomplete or out of date and are subject to change without notice.
2. Verification required
Prospective purchasers must verify critical matters, including but not limited to planning permission, title boundaries, public rights of way, environmental constraints, acreage, services, access and VAT status, through their own inspections, specialist surveys, legal advisers and the selling agent before relying on the information or entering into any contract.
3. No warranty or liability
LandSale gives no warranty, express or implied, as to the accuracy, completeness or fitness for any particular purpose of the information displayed. LandSale shall not be liable for any loss, damage, cost or expense arising directly or indirectly from any use of or reliance on such information, save where liability may not be excluded by law.
4. Updates & feedback
If you believe any detail on this listing is inaccurate, please let us know. We will investigate and, where appropriate, update the listing or notify the agent.
© LandSale | Version 1.2 - January 2026
Listing agent
Lester & Bingley, Mansfield
Unit 2A, Sherwood Oaks Close, Sherwood Oaks Business Park, Mansfield, NG18 4TB
Enquire about this property
Contact Lester & Bingley, Mansfield
Unit 2A, Sherwood Oaks Close, Sherwood Oaks Business Park, Mansfield, NG18 4TB
View agent profile