St. Philips Road, Cambridge
- Bedrooms
- 2
- Bathrooms
- 2
Description
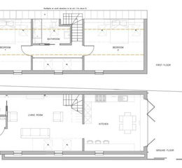
An opportunity to purchase a building plot in the heart of the vibrant Romsey area of the city, benefitting from detailed planning consent to erect a stylish 1.5 storey two or three bedroom self-build dwelling
The Site - The northern boundary of the site runs along St Philips Road. Access to the site is over a pedestrian footpath. On the eastern boundary, a footpath provides the access to the rear garden of 76 St Philips Road. On the western boundary is the garden of 50 Hemingford Road, and the southern boundary backs onto the garden of 48 Hemingford Road.
The properties on the northern side of this area are predominantly two-storey terraced houses, facing St Philips Rd. Some of the properties are set back from the pedestrian footpath. The southern side has two street facing properties adjacent to the site.
Planning Consent - Detailed planning consent for 1 No. 1.5 storey self-build dwellinghouse under Greater Cambridge Shared Planning reference: 24/01861/FUL approved on 12th February 2025.
Gross internal Area of the dwelling is approximately 1,300 sq.ft
The plot previously benefitted from outline planning permission for 1 No. one and a half storey dwellinghouse with no matters reserved.22/00265/OUT decided on 14th March 2023
New Homes - Please contact Cheffins New Homes team for more information on the local market and resale values in the area
Location - The plot is located in the highly sought-after Romsey area of the city, just a stone's throw from the vibrant Mill Road with its range of independent shops and restaurants and a short walk or cycle from Cambridge station.
Property details
- Tenure
- Freehold
- Council Tax Band
- TBC
- Date Posted
- 2026-01-28
Utilities & Restrictions
Utilities
- Electricity
- Ask Agent
- Water
- Ask Agent
- Heating
- Ask Agent
- Broadband
- Ask Agent
- Sewerage
- Ask Agent
Rights & Restrictions
- Public Rights of Way
- Ask Agent
- Private Rights of Way
- Ask Agent
- Listed Property
- Ask Agent
- Restrictions
- Ask Agent
Property Features
- Accessibility
- Ask Agent
- Parking
- Ask Agent
- Garden
- Garden
Important notice: Information, maps and tags on this page are supplied by the advertising agent or generated automatically. LandSale has not verified them. Relying on these details is at your own risk, always carry out independent checks before committing to a purchase.
LandSale full disclaimer
Marketing information only - not formal particulars. The details on this website are provided for general guidance and do not constitute an offer or contract. Neither LandSale nor the advertising estate/land agent accepts responsibility for any inaccuracy.
1. Source of information
- Agent-supplied content: Core description, asking price, tenure, measurements, photographs and planning history are uploaded by the appointed agent, who remains solely responsible for their accuracy.
- Automated tags & categorisation: Property type, land-use class, acreage bands and similar labels may be applied by machine-learning models. They are intended as a helpful guide only and may not reflect the property's legal status or permitted use.
- Third-party & enriched data layers: Maps, boundary outlines, planning designations, soil reports, broadband coverage and other environmental or location-based insights are licensed from external suppliers. Such data are supplied “as is", may be incomplete or out of date and are subject to change without notice.
2. Verification required
Prospective purchasers must verify critical matters, including but not limited to planning permission, title boundaries, public rights of way, environmental constraints, acreage, services, access and VAT status, through their own inspections, specialist surveys, legal advisers and the selling agent before relying on the information or entering into any contract.
3. No warranty or liability
LandSale gives no warranty, express or implied, as to the accuracy, completeness or fitness for any particular purpose of the information displayed. LandSale shall not be liable for any loss, damage, cost or expense arising directly or indirectly from any use of or reliance on such information, save where liability may not be excluded by law.
4. Updates & feedback
If you believe any detail on this listing is inaccurate, please let us know. We will investigate and, where appropriate, update the listing or notify the agent.
© LandSale | Version 1.2 - January 2026
Listing agent
Cheffins Residential, Cambridge
1 & 2 Clifton Road, Cambridge, CB1 7EA
Enquire about this property
Contact Cheffins Residential, Cambridge
1 & 2 Clifton Road, Cambridge, CB1 7EA
View agent profile