Kings Road, Llandybie, Ammanford, SA18 2TN
Key Features
- Building Plot
- Full Planning Permission Granted
- Planning Ref: PL/03847
- Sought After Location
- Dormer Bungalow
Description
AN OPPORTUNITY TO PURCHASE A BUILDING PLOT IN A SOUGHT AFTER LOCATION.
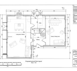
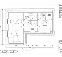
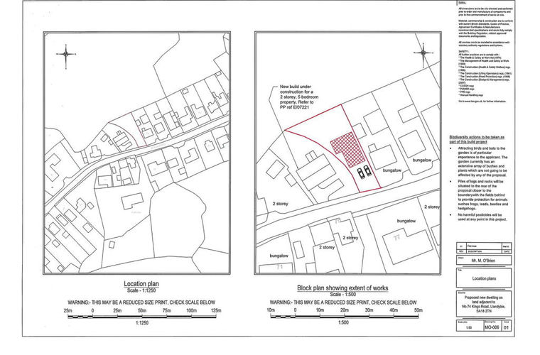
A freehold building plot with full planning permission granted on 31/8/2022, planning reference PL/03847 for a detached dormer dwelling situated in a sought after location on Kings Road in the village of Llandybie. There are services available subject to the necessary connection charges.
The village of Llandybie offers good basic amenities such as a Co-op, bakery, hairdressers and beauty salon, public houses, restaurants, places of worship, public transport, primary school and more. The main shopping and leisure facilities are located at Ammanford town centre. Access to the M4 motorway is via junction 49 at Pont Abraham.
Building Plot:
A building plot located in a sought after location on Kings Road in the village of Llandybie.
Planning Permission:
Full planning permission has been granted for a detached dormer bungalow granted on 31/8/2022, planning reference PL/03847.
Services:
We are advised mains services are available subject to the necessary connection charges. Prospective purchasers should make their own enquires regarding the costs involved.
Tenure:
Freehold.
Council Tax:
N/A
Broadband/Mobile Phone Coverage:
There is basic broadband and mobile phone coverage in the area.
Disclaimer:
Every care has been taken with the preparation of particulars however please note room dimensions and floor plan's should not be relied upon and any appliances or services listed on these details have not been tested.
Property details
- Tenure
- Freehold
- Council Tax Band
- Ask Agent
- Date Posted
- 2026-01-28
Utilities & Restrictions
Utilities
- Electricity
- Ask Agent
- Water
- Ask Agent
- Heating
- Ask Agent
- Broadband
- Ask Agent
- Sewerage
- Ask Agent
Rights & Restrictions
- Public Rights of Way
- Ask Agent
- Private Rights of Way
- Ask Agent
- Listed Property
- Ask Agent
- Restrictions
- Ask Agent
Property Features
- Accessibility
- Ask Agent
- Parking
- Ask Agent
- Garden
- Ask Agent
Important notice: Information, maps and tags on this page are supplied by the advertising agent or generated automatically. LandSale has not verified them. Relying on these details is at your own risk, always carry out independent checks before committing to a purchase.
LandSale full disclaimer
Marketing information only - not formal particulars. The details on this website are provided for general guidance and do not constitute an offer or contract. Neither LandSale nor the advertising estate/land agent accepts responsibility for any inaccuracy.
1. Source of information
- Agent-supplied content: Core description, asking price, tenure, measurements, photographs and planning history are uploaded by the appointed agent, who remains solely responsible for their accuracy.
- Automated tags & categorisation: Property type, land-use class, acreage bands and similar labels may be applied by machine-learning models. They are intended as a helpful guide only and may not reflect the property's legal status or permitted use.
- Third-party & enriched data layers: Maps, boundary outlines, planning designations, soil reports, broadband coverage and other environmental or location-based insights are licensed from external suppliers. Such data are supplied “as is", may be incomplete or out of date and are subject to change without notice.
2. Verification required
Prospective purchasers must verify critical matters, including but not limited to planning permission, title boundaries, public rights of way, environmental constraints, acreage, services, access and VAT status, through their own inspections, specialist surveys, legal advisers and the selling agent before relying on the information or entering into any contract.
3. No warranty or liability
LandSale gives no warranty, express or implied, as to the accuracy, completeness or fitness for any particular purpose of the information displayed. LandSale shall not be liable for any loss, damage, cost or expense arising directly or indirectly from any use of or reliance on such information, save where liability may not be excluded by law.
4. Updates & feedback
If you believe any detail on this listing is inaccurate, please let us know. We will investigate and, where appropriate, update the listing or notify the agent.
© LandSale | Version 1.2 - January 2026
Listing agent
Calow Evans, Ammanford
38 College Street, Ammanford, SA18 3AF
Enquire about this property
Contact Calow Evans, Ammanford
38 College Street, Ammanford, SA18 3AF
View agent profile