Hammond Drive, Ramsey, Harwich, Essex, CO12
Description
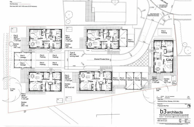
PLOT OF LAND FOR SALE - HAMMOND DRIVE, RAMSEY, ESSEX. PRICE £500,000. A unique opportunity to purchase a plot of land with detailed planning permission for 3 x three bedroomed DETACHED BUNGALOWS with SINGLE GARAGE.
The plot will be in a quiet cul-de-sac location located off Hammond drive, being within access to the Two Village primary school, Dovercourt town centre and A120.
All details can be viewed under Tendring District Council Public Access site - planning permission number 20/00342/FUL link to site is:
For easy reference Plot 1,2 & 3 on the block plan are on offer. Plots 4 & 5 are being retained by the current owner.
Footings are already in place.
Roadway to be provided at the buyer’s cost.
For further information and to discuss this prospect in further detail contact .
Property details
- Tenure
- Ask Agent
- Council Tax Band
- TBC
- Date Posted
- 2026-01-28
Utilities & Restrictions
Utilities
- Electricity
- Ask Agent
- Water
- Ask Agent
- Heating
- Ask Agent
- Broadband
- Ask Agent
- Sewerage
- Ask Agent
Rights & Restrictions
- Public Rights of Way
- Ask Agent
- Private Rights of Way
- Ask Agent
- Listed Property
- Ask Agent
- Restrictions
- Ask Agent
Property Features
- Accessibility
- Ask Agent
- Parking
- Parking Available
- Garden
- Ask Agent
Important notice: Information, maps and tags on this page are supplied by the advertising agent or generated automatically. LandSale has not verified them. Relying on these details is at your own risk, always carry out independent checks before committing to a purchase.
LandSale full disclaimer
Marketing information only - not formal particulars. The details on this website are provided for general guidance and do not constitute an offer or contract. Neither LandSale nor the advertising estate/land agent accepts responsibility for any inaccuracy.
1. Source of information
- Agent-supplied content: Core description, asking price, tenure, measurements, photographs and planning history are uploaded by the appointed agent, who remains solely responsible for their accuracy.
- Automated tags & categorisation: Property type, land-use class, acreage bands and similar labels may be applied by machine-learning models. They are intended as a helpful guide only and may not reflect the property's legal status or permitted use.
- Third-party & enriched data layers: Maps, boundary outlines, planning designations, soil reports, broadband coverage and other environmental or location-based insights are licensed from external suppliers. Such data are supplied “as is", may be incomplete or out of date and are subject to change without notice.
2. Verification required
Prospective purchasers must verify critical matters, including but not limited to planning permission, title boundaries, public rights of way, environmental constraints, acreage, services, access and VAT status, through their own inspections, specialist surveys, legal advisers and the selling agent before relying on the information or entering into any contract.
3. No warranty or liability
LandSale gives no warranty, express or implied, as to the accuracy, completeness or fitness for any particular purpose of the information displayed. LandSale shall not be liable for any loss, damage, cost or expense arising directly or indirectly from any use of or reliance on such information, save where liability may not be excluded by law.
4. Updates & feedback
If you believe any detail on this listing is inaccurate, please let us know. We will investigate and, where appropriate, update the listing or notify the agent.
© LandSale | Version 1.2 - January 2026
Listing agent
Harwich Village Homes, Harwich
Tower House, 300 Main Road, Harwich, CO12 3PJ
Enquire about this property
Contact Harwich Village Homes, Harwich
Tower House, 300 Main Road, Harwich, CO12 3PJ
View agent profile