Pius Drove, Upwell, Wisbech
- Bedrooms
- 11
- Bathrooms
- 5
Description
LOCATION The property is located on the north east side of Pius Drove in the popular West Norfolk village of Upwell. Upwell is an historic village with a population of around 3,000 people and lies between Wisbech and Downham Market.
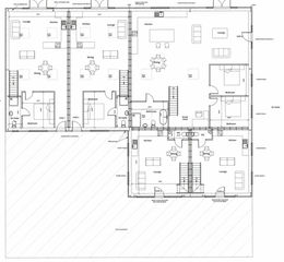
DESCRIPTION An L-shaped agricultural barn of steel frame construction with concrete floor and profiled sheet steel walls and roof extending to approximately 372.8m2 (Subject to Measured Survey). Front canopy and concrete apron.
PLANNING Approval for five residential dwellings under Class Q of the Town and Country Planning (General Permitted Development (England) Order 2015 was confirmed by the Borough Council of King's Lynn and West Norfolk on 25th July 2024 under Reference 24/01027/PACU3. The approved plans provide for five two storey dwellings with four being 2 Bedroom and one being 3 Bedroom. Copies of the plans are available on the Borough Council website or from the Agent. Whilst the Borough Council of King's Lynn and West Norfolk has adopted CIL, they have confirmed that this development will not require a CIL payment if carried out as currently approved.
POSSESSION The property is offered For Sale Freehold with Vacant Possession upon completion.
BOUNDARIES The plan is for illustrative purposes only. The Buyer will be deemed to have full knowledge of all boundaries.
ACCESS Access to the property will be via a right of way over the existing driveway to be shared with the farm and others.
PLAN AND AREAS This Brochure has been prepared as accurately as possible, based upon Ordnance Survey plans. The plan has been prepared for Identification Purposes only and, although they are believed to be correct, their accuracy is not guaranteed.
WAYLEAVES, EASEMENTS AND RIGHTS OF WAY The property is offered subject to all existing rights, including rights of way whether private or public, light, support, drainage, water and electricity supply and other rights, easements, quasi easements and all wayleaves whether referred to or not in this Brochure.
VIEWING Viewing is strictly by appointment with the Agent. The Health and Safety of those viewing is the responsibility of the individual undertaking the viewing. Neither the Seller nor the Agent accept any responsibility for damage or injury to persons or property as a result of viewing the property and parties do so entirely at their own risk.
AGENT'S NOTES
1. The approved plans provide for the demolition of part of the front canopy together with the adjoining building. This work is to be carried out by the Buyer at their own expense.
2. The separation of the current electricity and water supply to the building from the retained yard will be at the expense of the Buyer.
DIRECTIONS From Wisbech take the A1101 south out of Wisbech sign posted Ely. Follow the road to Outwell and at the mini roundabout just past Bloom & Wake's garage take the third exit (A1101) towards Upwell and Welney. Follow this road through Outwell to Upwell and take the turning on your right sign posted Friday Bridge. The property can be found on the right hand side.
What3Words: ///general.brink.trio
Property details
- Tenure
- Freehold
- Council Tax Band
- Ask Agent
- Date Posted
- 2026-01-29
Utilities & Restrictions
Utilities
- Electricity
- Ask Agent
- Water
- Ask Agent
- Heating
- Ask Agent
- Broadband
- Ask Agent
- Sewerage
- Ask Agent
Rights & Restrictions
- Public Rights of Way
- Ask Agent
- Private Rights of Way
- Ask Agent
- Listed Property
- Ask Agent
- Restrictions
- Ask Agent
Property Features
- Accessibility
- Ask Agent
- Parking
- Parking Available
- Garden
- Garden
Important notice: Information, maps and tags on this page are supplied by the advertising agent or generated automatically. LandSale has not verified them. Relying on these details is at your own risk, always carry out independent checks before committing to a purchase.
LandSale full disclaimer
Marketing information only - not formal particulars. The details on this website are provided for general guidance and do not constitute an offer or contract. Neither LandSale nor the advertising estate/land agent accepts responsibility for any inaccuracy.
1. Source of information
- Agent-supplied content: Core description, asking price, tenure, measurements, photographs and planning history are uploaded by the appointed agent, who remains solely responsible for their accuracy.
- Automated tags & categorisation: Property type, land-use class, acreage bands and similar labels may be applied by machine-learning models. They are intended as a helpful guide only and may not reflect the property's legal status or permitted use.
- Third-party & enriched data layers: Maps, boundary outlines, planning designations, soil reports, broadband coverage and other environmental or location-based insights are licensed from external suppliers. Such data are supplied “as is", may be incomplete or out of date and are subject to change without notice.
2. Verification required
Prospective purchasers must verify critical matters, including but not limited to planning permission, title boundaries, public rights of way, environmental constraints, acreage, services, access and VAT status, through their own inspections, specialist surveys, legal advisers and the selling agent before relying on the information or entering into any contract.
3. No warranty or liability
LandSale gives no warranty, express or implied, as to the accuracy, completeness or fitness for any particular purpose of the information displayed. LandSale shall not be liable for any loss, damage, cost or expense arising directly or indirectly from any use of or reliance on such information, save where liability may not be excluded by law.
4. Updates & feedback
If you believe any detail on this listing is inaccurate, please let us know. We will investigate and, where appropriate, update the listing or notify the agent.
© LandSale | Version 1.2 - January 2026
Listing agent
Maxey Grounds, Wisbech
1-3 South Brink Wisbech PE13 1JA
Enquire about this property
Contact Maxey Grounds, Wisbech
1-3 South Brink Wisbech PE13 1JA
View agent profile