Development And Refurbishment Opportunity, Waltham Road, Scartho, Grimsby
- Land size
- 0.73 acres
Description
A unique opportunity to acquire three historic cottages and a parcel of land with Outline Planning Permission for the construction of up to four new dwellings.
Located in the heart of Scartho this 0.73 acre site will appeal to a creative developer/investor who can envisage flexible options to perhaps refurbish and sell the existing cottages or retain them for rental income. The new build houses could equally be considered for sale or let depending upon the buyers vision. The availability of this historic site really is a chance not to miss.
THE SITE/COTTAGES
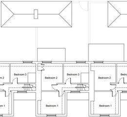
Situated just off Scartho roundabout the area of the site for new build was formerly home to the Scartho Scout Group premises and the permission granted includes authorisation for the demolition of the existing scout buildings. The Outline Planning Permission, granted on appeal, shows an illustrative layout of four houses in a semi detached/terrace format each with two vehicle parking spaces. Due to the Permission being Outline only, it will be the buyers responsibility to commission detailed designs, obtain full planning approval, apply for Building Regulation approval etc following the purchase.
The existing cottages, believed to originate from 1911, form part of the Scartho Conservation Area and are positioned overlooking Scartho Roundabout. The delightful historic homes have been rental properties and are fitted out accordingly. Each offers scope and potential for updating, refurbishment and possible enlargement subject to obtaining the necessary consents. There are garages at the rear plus additional outbuildings. The brief specification details for each cottage are as follows:-
NO.2
Entrance Hall
Lounge: 12'5" x 13'10"
Kitchen: 12'5" x 8'0" with black painted units
Rear Annex: 14'0" x 6'10"
Bathroom: (ground floor) 10'0" x 4'5" with a white suite
Three first floor bedrooms: 12'4" x 9'10", 12'4" x 11'13" max and 11'5" x 8'9"
Outside: Brick outbuilding
NO.4
Entrance Hall
Lounge: 12'3" x 13'10"
Kitchen: 12'4" x 7'10" with worktops and sink
Lean to Annex: 11'10" x 5'7"
Bathroom: (ground floor) 10'0" x 4'5" with a white suite
Three first floor bedrooms: 12'4" x 9'10", 12'4" x 9'10" max and 11'4" x 9'0"
Outside: Large brick outbuilding
NO.6
Entrance Hall
Lounge: 12'5" x 13'10"
Kitchen: 12'7" x 7'0"
Bathroom: (ground floor) 10'0" x 4'5" with a white suite
Three first floor bedrooms: 12'6" x 10'0", 12'2" x 10'0" max and 11'4" x 8'9"
Outside: Wash house, coal house and store
PLANNING PERMISSION
A hybrid application for Full Planning Permission to demolish existing buildings and for Outline Planning Permission for the erection of up to four dwellings was granted on appeal on 3rd February 2025. The original application, the appeal decision letter and all accompanying documents can be seen on the North East Lincolnshire Planning website using Reference DM/0942/23/FUL. The existing cottages are not covered by the Planning Application as these are, of course, existing dwellings positioned adjacent to the application site which itself extends to around 0.19 hectares.
TENURE
The two elements of the site (ie the former Scout Hut grounds and the cottages) are held under separate Titles at the Land Registry, the Scout Hut being HS365215 and the cottages being HS361219. The whole site is being offered for sale as one entity and the tenure is understood to be Freehold. All cottages are vacant.
SERVICES
Mains, gas, water, electricity and drainage are believed to be already connected to the existing properties and/or available to the development site. It will be the purchasers responsibility to establish the availability of all required services prior to their commitment to purchase.
The whole site will be sold on an 'as seen' basis and it will be the purchasers responsibility to demolish the existing Scout Hut premises prior to any development and/or construction commences.
LOCATION
The village of Scartho provides an excellent range of facilities including a variety of retailers, hot food takeaways, a health centre, a popular bar and a well regarded Public House, The Rose and Crown. The Diana Princess of Wales Hospital is close by and regular buses serve the general area.
PURCHASE PROCEDURE
Prospective purchasers are invited to submit their bids in excess of £600,000 in writing (or by email) for consideration by the vendors. The following information must be provided please within the written offer:-
1. Name and address of prospective purchaser.
2. The amount offered - this must be for an exact amount and not calculable by reference to other bids.
3. Explanation of funding procedure e.g cash buyer, mortgage or loan raised against other assets.
4. Whether the purchase is linked to the successful sale of any other property, and if so, the progress of the linked sale.
5. Details of which Solicitors will represent the purchasers.
6. Any conditions attached to the offer such as the requirement to obtain an alternative planning permission before payment in full of the amount offered. Please note that such conditional bids will generally be looked on less favourably than unconditional bids.
VIEWING
By appointment with the Agents on Grimsby 311000.
INFORMATION PACK
Prospective purchasers should review the information pack prior to making an offer.
Property details
- Tenure
- Freehold
- Council Tax Band
- Ask Agent
- Date Posted
- 2026-01-29
Utilities & Restrictions
Utilities
- Electricity
- Ask Agent
- Water
- Ask Agent
- Heating
- Ask Agent
- Broadband
- Ask Agent
- Sewerage
- Ask Agent
Rights & Restrictions
- Public Rights of Way
- Ask Agent
- Private Rights of Way
- Ask Agent
- Listed Property
- Ask Agent
- Restrictions
- Ask Agent
Property Features
- Accessibility
- Ask Agent
- Parking
- Parking Available
- Garden
- Garden
Important notice: Information, maps and tags on this page are supplied by the advertising agent or generated automatically. LandSale has not verified them. Relying on these details is at your own risk, always carry out independent checks before committing to a purchase.
LandSale full disclaimer
Marketing information only - not formal particulars. The details on this website are provided for general guidance and do not constitute an offer or contract. Neither LandSale nor the advertising estate/land agent accepts responsibility for any inaccuracy.
1. Source of information
- Agent-supplied content: Core description, asking price, tenure, measurements, photographs and planning history are uploaded by the appointed agent, who remains solely responsible for their accuracy.
- Automated tags & categorisation: Property type, land-use class, acreage bands and similar labels may be applied by machine-learning models. They are intended as a helpful guide only and may not reflect the property's legal status or permitted use.
- Third-party & enriched data layers: Maps, boundary outlines, planning designations, soil reports, broadband coverage and other environmental or location-based insights are licensed from external suppliers. Such data are supplied “as is", may be incomplete or out of date and are subject to change without notice.
2. Verification required
Prospective purchasers must verify critical matters, including but not limited to planning permission, title boundaries, public rights of way, environmental constraints, acreage, services, access and VAT status, through their own inspections, specialist surveys, legal advisers and the selling agent before relying on the information or entering into any contract.
3. No warranty or liability
LandSale gives no warranty, express or implied, as to the accuracy, completeness or fitness for any particular purpose of the information displayed. LandSale shall not be liable for any loss, damage, cost or expense arising directly or indirectly from any use of or reliance on such information, save where liability may not be excluded by law.
4. Updates & feedback
If you believe any detail on this listing is inaccurate, please let us know. We will investigate and, where appropriate, update the listing or notify the agent.
© LandSale | Version 1.2 - January 2026
Listing agent
Martin Maslin, Grimsby
4-6 Abbey Walk, Grimsby, DN31 1NB
Enquire about this property
Contact Martin Maslin, Grimsby
4-6 Abbey Walk, Grimsby, DN31 1NB
View agent profile